Für Sanierer: zentralere + zeitsparendere 3er-WG geht nicht!

Wohnung - Etage, 1110 Wien,Simmering


Beschreibung der Immobilie

Für Sanierer: zentralere + zeitsparendere 3er-WG geht nicht!

Super Gelegenheit für Sanierer und Anleger mit WG-Vermietungs-Know-how. Sanierungsbedürftige, zentral begehbare 3-Zi-Wohnung zu Top-Quadratmeterpreis. Spitzenrendite möglich.





3D TOUR:



Verschaffen Sie sich einen perfekten Ersteindruck von den Räumlichkeiten mit unserer virtuellen Tour:





Klicken Sie hier zu unserer 3D-Tour





LAGE:



Sehr zeitsparend - optimal angebunden, U + S-Bahn, Straßenbahn und Bus in unmittelbarer Nähe. Man ist von hier rasch in der Innenstadt, am Flughafen, Hauptbahnhof, bei Autobahnen aber auch in Freizeitgebieten.



Super Infrastruktur und Freizeitwert - Zentralste Lage des 11. Bezirks. Perfekte Nahversorgungs-Infrastruktur durch EKZ und Hauptstrasse direkt vor der Türe.  Hoher Freizeitwert in Naherholungsgebieten, wie Wiener Prater oder Laaerberg, die rasch erreichbar sind.





OBJEKTBESCHREIBUNG UND AUSSTATTUNG:



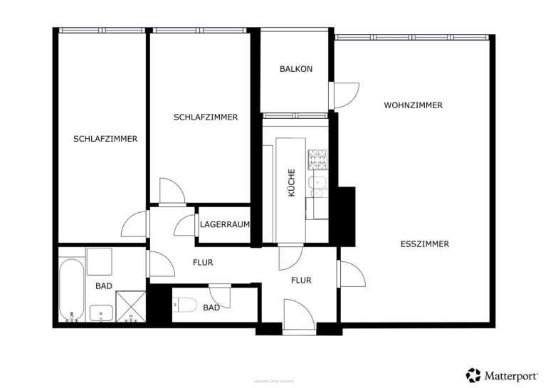
Renditemaschine als 3er-WG - die Wohnung bietet sich auf Grund ihrer zentralen Lage und ihres Grundrisses ideal als 3er-WG-Anlegerwohnung an. Da sie umfassenden Sanierungsbedarf hat, kann im Rahmen der Sanierung auf die speziellen Bedürfnisse von WGs Rücksicht genommen werden. Alle Räume sind über den Vorraum zentral begehbar. Wohnzimmer (von dem Begegnungszone abgeteilt werden könnte), 2 Schlafzimmer, separate Küche, separates WC, Bad mit Wanne + Dusche sowie Waschmaschinenanschluß, Abstellraum und Loggia. 





SONSTIGES:



Tolle Lebensqualität im Herzen von Simmering: Insgesamt bieten die Lage und Entwicklung des Grätzls, die überzeugende Anbindung, der Grundriss und Entwicklungsmöglichkeiten der Wohnung sowie Infrastruktur und Freizeitwert tolle Lebensqualität. Es steht ein geräumiges Kellerabteil sowie ein Kinderwagen- und Fahrradabstellraum sowie eine Waschküche im Haus zur Verfügung.





Nähere Details, sowie eine virtuelle 3D Tour, erhalten Sie in Ihrem persönlichen Expose auf Anfrage!



Es wird auf ein persönliches / wirtschaftliches Naheverhältnis zum Eigentümer hingewiesen.


Wir weisen darauf hin, dass zwischen dem Vermittler und dem zu vermittelnden Dritten ein familiäres oder wirtschaftliches Naheverhältnis besteht.


Der Vermittler ist als Doppelmakler tätig.

Herr Mag. Norbert Brigelhuber, Mobil: +43 664 9122958, Mail: n.brigelhuber@advanta.at, steht für ein persönliches Gespräch sowie für einen Besichtigungstermin gerne zur Verfügung.

Infrastruktur / Entfernungen

Gesundheit
Arzt <500m
Apotheke <500m
Klinik <1.000m
Krankenhaus <3.000m

Kinder & Schulen
Schule <500m
Kindergarten <500m
Universität <2.000m
Höhere Schule <2.000m

Nahversorgung
Supermarkt <500m
Bäckerei <500m
Einkaufszentrum <500m

Sonstige
Geldautomat <500m
Bank <500m
Post <500m
Polizei <500m

Verkehr
Bus <500m
U-Bahn <500m
Straßenbahn <500m
Bahnhof <500m
Autobahnanschluss <1.500m

Angaben Entfernung Luftlinie / Quelle: OpenStreetMap

Eckdaten Objektnr. 6660

Art: Wohnung - Etage
Land: Österreich
Baujahr: 1977
Zustand: Teil_vollrenovierungsbed
Alter: Neubau
Kaufpreis: 199.000,00
Provision: 3% des Kaufpreises zzgl. 20% USt.
Betriebskosten: 164,68 €
MwSt Gesamt: 16,47 €
Nutzfläche: 81,00 m²
Zimmer: 3
Bäder: 1
WC: 1
Immobilie merken Exposé

Ausstattung

Gas, Etagenheizung, Personenaufzug, Dusche, Badewanne


Immobilie anfragen


Ihre persönliche Beratung

ADVANTA – Immobilienvermittlungs GmbH

Mag. Norbert Brigelhuber

ADVANTA – Immobilienvermittlungs GmbH

T +43 1 409 84 00

H +43 664 9122958