St. Georgen MITTE - ein Standort - viele Möglichkeiten

Wohnung - Dachgeschoß, 4880 St. Georgen im Attergau , Attergauer Straße


Wir, die Firma Neuwog errichten in Zusammenarbeit mit dem regionalen Partner Atticon in der Attergauer Straße Nr 13 und 15 in 4880 St. Georgen im Attergau eine Immobile in hervorragender Lage. Mitten im Zentrum nur wenige Gehminuten vom Bahnhof entfernt, genießen Sie eine optimale Anbindung an den öffentlichen Verkehr. Die Lage des Projektes besticht durch seine Nähe zum Attersee ( in 5 Autominuten erreichbar) und auch mit Ihrer sehr guten Autobahnanbindung nach Salzburg. Wir als Bauträger, sind bemüht in den Gewerbeflächen des Objektes Ärzte für eine optimale Gesundheitsvorsorge unterzubringen. Hier wohnen oder arbeiten Sie zentral und komfortabel!

Beschreibung der Immobilie

St. Georgen MITTE - ein Standort - viele Möglichkeiten

Willkommen in Ihrem neuen Zuhause – einer traumhaften Dachgeschosswohnung im malerischen St. Georgen im Attergau!



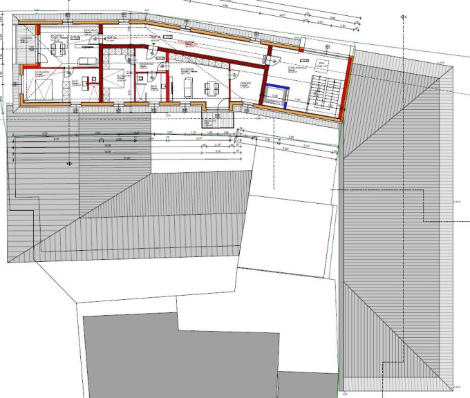
Diese exklusive 3-Zimmer-Wohnung im 3. Stock bietet Ihnen auf großzügigen 69,21 m² alles, was das Herz begehrt. Als Erstbezug können Sie sich auf eine moderne und hochwertige Ausstattung freuen, die keine Wünsche offenlässt. Hier haben Sie die Möglichkeit, in ein neues Kapitel Ihres Lebens zu starten und die Vorzüge einer stilvollen Wohnatmosphäre zu genießen.



Der lichtdurchflutete Wohnbereich ist das Zentrum dieser Wohnung und lädt zum Verweilen ein. Die Kombination aus edlen Fliesen und warmem Parkett sorgt für eine harmonische und einladende Stimmung. Von hier aus gelangen Sie auf den schönen Westbalkon, der Ihnen nicht nur einen herrlichen Ausblick, sondern auch die Möglichkeit bietet, die Abendsonne in vollen Zügen zu genießen. Stellen Sie sich vor, wie Sie nach einem langen Tag auf Ihrem Balkon entspannen und die Ruhe der Umgebung in vollen Zügen auskosten.



Die Wohnung verfügt über zwei weitere helle Zimmer, die vielseitig genutzt werden können – ob als Schlafzimmer, Arbeitszimmer oder Gästezimmer, hier ist alles möglich. Das Bad mit Fenster und Dusche bietet Ihnen den perfekten Rückzugsort, um den Tag entspannt ausklingen zu lassen.



Ein weiteres Highlight ist der praktische Wasch- und Trockenraum, der Ihnen zusätzlichen Komfort und Flexibilität im Alltag bietet. Selbstverständlich gehört auch eine Garage zur Wohnung, die Ihnen nicht nur Sicherheit für Ihr Fahrzeug, sondern auch zusätzlichen Stauraum bietet.



Hier wohnen Sie nicht nur in einer wunderschönen Wohnung, sondern auch in einer lebenswerten Umgebung, die Ihnen alles bietet, was Sie für den Alltag benötigen.



Zögern Sie nicht, Ihre Traumwohnung in St. Georgen im Attergau zu besichtigen und lassen Sie sich von diesem einzigartigen Angebot begeistern! Ihr neues Zuhause wartet auf Sie!


Hinweis gemäß Energieausweisvorlagegesetz: Ein Energieausweis wurde vom Eigentümer bzw. Verkäufer, nach unserer Aufklärung über die generell geltende Vorlagepflicht, sowie Aufforderung zu seiner Erstellung noch nicht vorgelegt. Daher gilt zumindest eine dem Alter und der Art des Gebäudes entsprechende Gesamtenergieeffizienz als vereinbart. Wir übernehmen keinerlei Gewähr oder Haftung für die tatsächliche Energieeffizienz der angebotenen Immobilie.

Infrastruktur / Entfernungen

Gesundheit
Arzt <475m
Apotheke <100m
Klinik <2.075m

Kinder & Schulen
Schule <325m
Kindergarten <425m

Nahversorgung
Supermarkt <250m
Bäckerei <700m

Sonstige
Bank <250m
Geldautomat <250m
Post <325m
Polizei <475m

Verkehr
Bus <225m
Bahnhof <300m
Autobahnanschluss <1.550m

Angaben Entfernung Luftlinie / Quelle: OpenStreetMap

Eckdaten Objektnr. 4417/1620

Art: Wohnung - Dachgeschoß
Land: Österreich
Zustand: Erstbezug
Alter: Neubau
Kaufpreis: 340.000,00
Wohnfläche: 69,21 m²
Grundstücksfl.: 1.357,20 m²
Zimmer: 3
Bäder: 1
WC: 1
Balkone: 1
Keller: 4,63 m²
Immobilie merken Exposé

Ausstattung

Parkett, Fliesen, Personenaufzug, Westbalkon, Bad mit Fenster, Dusche, Garage, Wasch/Trockenraum


Immobilie anfragen


Ihre persönliche Beratung

Neuwog Immobilien GmbH

Bmstr. Georg Altmüller

NEUWOG Immobilientreuhand und Liegenschaftserrichtungs GmbH

T +43 7227 2005340

H +43 676 3388238