St. Georgen MITTE - ein Standort - viele Möglichkeiten

Büro / Praxis , 4880 St. Georgen im Attergau , Attergauer Straße


Wir, die Firma Neuwog errichten in Zusammenarbeit mit dem regionalen Partner Atticon in der Attergauer Straße Nr 13 und 15 in 4880 St. Georgen im Attergau eine Immobile in hervorragender Lage. Mitten im Zentrum nur wenige Gehminuten vom Bahnhof entfernt, genießen Sie eine optimale Anbindung an den öffentlichen Verkehr. Die Lage des Projektes besticht durch seine Nähe zum Attersee ( in 5 Autominuten erreichbar) und auch mit Ihrer sehr guten Autobahnanbindung nach Salzburg. Wir als Bauträger, sind bemüht in den Gewerbeflächen des Objektes Ärzte für eine optimale Gesundheitsvorsorge unterzubringen. Hier wohnen oder arbeiten Sie zentral und komfortabel!

Beschreibung der Immobilie

St. Georgen MITTE - ein Standort - viele Möglichkeiten

Willkommen in Ihrem neuen Büro oder Ihrer neuen Praxis in der charmanten Marktgemeinde St. Georgen im Attergau! Diese attraktive Immobilie im Erdgeschoss bietet Ihnen die perfekte Kombination aus modernem Komfort und einer hervorragenden Lage.



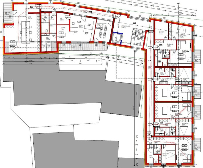
Mit einem großzügigen Raumangebot von drei hellen Zimmern ist Ihr neues Domizil ideal für unterschiedlichste Nutzungsarten. Ob als Büro, Praxis oder sogar als Co-Working-Space – hier haben Sie die Möglichkeit, Ihre Visionen zu verwirklichen. Der Erstbezug garantiert Ihnen die neuesten Standards in Sachen Ausstattung und Design, sodass Sie sofort einziehen und loslegen können.



Besonders hervorzuheben sind die beiden großzügigen Balkone, der nicht nur für eine angenehme Atmosphäre sorgt, sondern auch ideal ist, um frische Luft zu schnappen und entspannte Pausen im Freien zu genießen. Die durchdachte Raumaufteilung umfasst zudem drei WCs, was den Komfort für Ihre Mitarbeiter und Kunden erheblich steigert.



Die hochwertigen Fliesen im gesamten Raum sorgen für eine moderne und pflegeleichte Oberfläche, während der Personenaufzug den Zugang zum Gebäude für alle Nutzer erleichtert. Egal ob Sie eine Garage für Ihr Fahrzeug benötigen oder einen praktischen Wasch- und Trockenraum – hier wurde an alles gedacht. Zudem stehen Ihnen ein Fahrradraum und ein Abstellraum zur Verfügung, um zusätzlichen Platz für Ihre Utensilien zu schaffen.



Die Lage dieser Immobilie ist einfach unschlagbar. St. Georgen im Attergau bietet nicht nur eine hohe Lebensqualität, sondern auch eine hervorragende Verkehrsanbindung. Der Bus und der Bahnhof sind schnell erreichbar, was es Ihren Kunden und Mitarbeitern erleichtert, Sie zu besuchen.



Nutzen Sie diese einmalige Gelegenheit, Ihre Geschäftsidee in einer modernen und einladenden Umgebung zu realisieren. Überzeugen Sie sich selbst von den Vorzügen dieser Immobilie und vereinbaren Sie noch heute einen Besichtigungstermin. Wir freuen uns darauf, Ihnen Ihr zukünftiges Büro oder Ihre Praxis in St. Georgen im Attergau vorzustellen!


Hinweis gemäß Energieausweisvorlagegesetz: Ein Energieausweis wurde vom Eigentümer bzw. Verkäufer, nach unserer Aufklärung über die generell geltende Vorlagepflicht, sowie Aufforderung zu seiner Erstellung noch nicht vorgelegt. Daher gilt zumindest eine dem Alter und der Art des Gebäudes entsprechende Gesamtenergieeffizienz als vereinbart. Wir übernehmen keinerlei Gewähr oder Haftung für die tatsächliche Energieeffizienz der angebotenen Immobilie.

Infrastruktur / Entfernungen

Gesundheit
Arzt <475m
Apotheke <100m
Klinik <2.075m

Kinder & Schulen
Schule <325m
Kindergarten <425m

Nahversorgung
Supermarkt <250m
Bäckerei <700m

Sonstige
Bank <250m
Geldautomat <250m
Post <325m
Polizei <475m

Verkehr
Bus <225m
Bahnhof <300m
Autobahnanschluss <1.550m

Angaben Entfernung Luftlinie / Quelle: OpenStreetMap

Eckdaten Objektnr. 4417/1622

Art: Büro / Praxis
Land: Österreich
Zustand: Erstbezug
Alter: Neubau
Kaufpreis: 770.000,00
Nutzfläche: 181,04 m²
Verkaufsfläche: 181,04 m²
Bürofläche: 181,04 m²
Zimmer: 3
WC: 3
Balkone: 2
Immobilie merken Exposé

Ausstattung

Personenaufzug, Westbalkon, Garage, Wasch/Trockenraum


Immobilie anfragen


Ihre persönliche Beratung

Neuwog Immobilien GmbH

Bmstr. Georg Altmüller

NEUWOG Immobilientreuhand und Liegenschaftserrichtungs GmbH

T +43 7227 2005340

H +43 676 3388238