Neuwertige Terrassenwohnung mit Garten in 1230 Wien - Ihr neues Zuhause wartet!
Wohnung
- Terrassenwohnung,
1230
Wien
,
Levasseurgasse
Diese charmante Terrassenwohnung in der Levasseurgasse 1230 Wien besticht durch ihre ideale Lage. In unmittelbarer Nähe finden Sie alles, was das Herz begehrt: Arzt, Apotheke und Klinik für Ihre Gesundheit, Schulen und Kindergärten für die Kleinen sowie zahlreiche Einkaufsmöglichkeiten wie Supermärkte und Bäckereien. Auch Geldautomaten und Banken sind schnell erreichbar. Die Anbindung an öffentliche Verkehrsmittel, Bus und Bahnhof, sorgt für eine bequeme Mobilität in die Innenstadt und darüber hinaus.
Beschreibung der Immobilie
Neuwertige Terrassenwohnung mit Garten in 1230 Wien - Ihr neues Zuhause wartet!
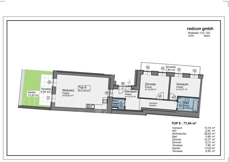
Willkommen in Ihrer neuen Traumwohnung im charmanten 23. Bezirk von Wien! Diese neuwertige Terrassenwohnung bietet nicht nur eine großzügige Fläche von 69,28 m², sondern auch ein durchdachtes Raumkonzept, das Ihnen ein modernes und komfortables Wohnen ermöglicht.
Mit drei lichtdurchfluteten Zimmern und einer offenen Wohnküche ist diese Wohnung der perfekte Rückzugsort für Singles, Paare oder kleine Familien. Der durchdachte Grundriss sorgt für eine angenehme Wohnatmosphäre und schafft einen harmonischen Fluss zwischen den verschiedenen Bereichen der Wohnung.
Besonders hervorzuheben ist die einladende Terrasse, die Ihnen einen wunderschönen Ausblick ins Grüne bietet. Hier können Sie entspannte Stunden im Freien verbringen, den Alltagsstress hinter sich lassen und die Natur genießen. Der Garten rundet das Angebot ab und bietet zusätzlichen Raum für Freizeitaktivitäten oder einfach zum Entspannen.
Die hochwertige Ausstattung dieser Wohnung lässt keine Wünsche offen. Fliesen und Parkett sorgen nicht nur für eine ansprechende Optik, sondern auch für ein angenehmes Wohngefühl. Eine Fußbodenheizung und die moderne Luftwärmepumpe garantieren Ihnen eine wohlige Wärme in den kühleren Monaten. Das stilvolle Badezimmer mit Badewanne lädt zum Entspannen und Wohlfühlen ein.
Die hervorragende Verkehrsanbindung mit Bus und Bahnhof ermöglicht Ihnen eine schnelle Erreichbarkeit der Wiener Innenstadt und der umliegenden Stadtteile. Sie sind umgeben von einer perfekten Infrastruktur – Arzt, Apotheke, Klinik, Schule, Kindergarten, Supermarkt und Bäckerei befinden sich in unmittelbarer Nähe und bieten Ihnen alles, was Sie für den täglichen Bedarf benötigen.
Für nur 1.465, 48€ Miete pro Monat zzgl. 111,47 € akonto Heizung WW KW haben Sie die Möglichkeit, in dieser attraktiven Wohnung in einer der beliebtesten Lagen Wiens zu wohnen. Lassen Sie sich diese Gelegenheit nicht entgehen und vereinbaren Sie noch heute einen Besichtigungstermin. Ihre neue Heimat erwartet Sie!
Bitte beachten Sie, dass Anfragen ausschließlich per Mail beantwortet werden.
Wir weisen darauf hin, dass zwischen dem Vermittler und dem zu vermittelnden Dritten ein familiäres oder wirtschaftliches Naheverhältnis besteht.
Infrastruktur / Entfernungen
Gesundheit
Arzt <1.000m
Apotheke <250m
Klinik <500m
Krankenhaus <1.750m
Kinder & Schulen
Schule <250m
Kindergarten <500m
Universität <4.750m
Höhere Schule <4.500m
Nahversorgung
Supermarkt <250m
Bäckerei <250m
Einkaufszentrum <1.750m
Sonstige
Geldautomat <250m
Bank <250m
Post <1.750m
Polizei <1.500m
Verkehr
Bus <250m
U-Bahn <1.750m
Straßenbahn <2.000m
Bahnhof <500m
Autobahnanschluss <2.250m
Angaben Entfernung Luftlinie / Quelle: OpenStreetMap
Eckdaten Objektnr. 33840
| Art: | Wohnung - Terrassenwohnung |
| Land: | Österreich |
| Zustand: | Neuwertig |
| Alter: | Neubau |
| Gesamtmiete: | 1.465,48 € |
| Kaltmiete (netto): | 1.177,76 € |
| Kaltmiete: | 1.332,25 € |
| Betriebskosten: | 154,49 € |
| MwSt Gesamt: | 133,23 € |
| Nutzfläche: | 69,28 m² |
| Zimmer: | 3 |
| Bäder: | 1 |
| WC: | 1 |
| Terrassen: | 1 |
| Garten: | 13,20 m² |
| Heizwärmebedarf: | B 40,60 kWh/m²a |
| fGEE: | A 0,79 |
Ausstattung
Fliesen, Parkett, Fußbodenheizung, Zentralheizung, Wohnküche / offene Küche, Ostbalkon, Badewanne
Ihre persönliche Beratung
Die Friedrich Makler
Friedrich Immobilienmanagement GmbH
T +43 (1) 402 8000 5000