Optimal geschnittene 3 Zimmerwohnung mit Loggia
Wohnung
,
2353
Guntramsdorf
Beschreibung der Immobilie
Optimal geschnittene 3 Zimmerwohnung mit Loggia
Inmitten einer ruhigen Wohngegend befindet sich diese optimal geschnittene 3-Zimmer-Wohnung, die nun zur Vermietung steht.Die Wohnung befindet sich im 3.Stock ohne Lift. Dank ihrer sonnigen Ausrichtung nach Süden wird die Wohnung das ganze Jahr über von natürlichem Licht durchflutet. Das komplette Haus wurde 2025/2026 thermisch saniert und die Wohnung frisch renoviert. (neuer Energieausweis in Arbeit)
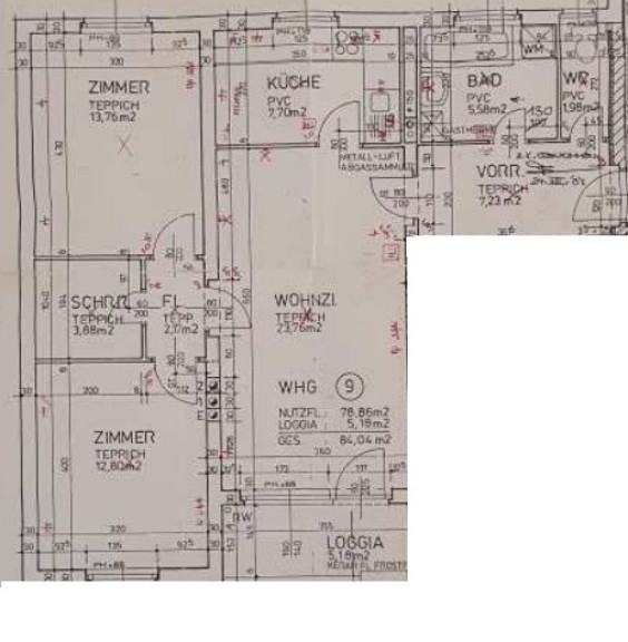
Der Grundriss ca.84m² gliedert sich wie folgt:
- einladender Vorraum mit Gaderobe
- möblierte Küche mit neuen Einbaugeräten
- Wohnzimmer ca. 23,76m² mit direktem Loggia-Zugang ca. 5,18m²
- Schlafzimmer ca. 13,76m²
- weiteres Zimmer ca. 12,80m²
- Badezimmer mit Dusche, Doppelwaschbecken und WM-Anschluss
- separates WC
- Kellerabteil
- inkl. PKW-Stellplatz
Mietdauer: 5 Jahre
Kaution: 3.750,-
Alle Wohnräume sind mit einem schönen Parkettboden verlegt.
Lage:
Die Wohnung befindet sich in einer schönen Gegend von Guntramsdorf mit exzellenter Anbindung, Einkaufsmöglichkeiten, Schulen und Parks. Auch zahlreiche Teiche sowie der Ozean befinden sich in unmittelbarer Nähe. Genießen Sie die Vorzüge einer ruhigen Umgebung und gleichzeitig die Nähe zu allen Annehmlichkeiten des täglichen Bedarfs (Apotheke, Spar, usw.). Direkt vor der Haustür befinden sich viele Freizeitmöglichkeiten unter anderem ein Radweg.
Eckdaten Objektnr. 141/81469
| Art: | Wohnung |
| Land: | Österreich |
| Gesamtmiete: | 1.250,00 € |
| Kaltmiete (netto): | 993,31 € |
| Betriebskosten: | 234,26 € |
| MwSt Gesamt: | 22,43 € |
| Wohnfläche: | 84,04 m² |
| Zimmer: | 3 |
| Bäder: | 1 |
| WC: | 1 |
| Heizwärmebedarf: | C 83,00 kWh/m²a |
| fGEE: | D 1,86 |
Ausstattung
Gas, Etagenheizung
Ihre persönliche Beratung
Dieser Makler ist ein offizielles Mitglied des IR – ir.at Mehr Erfahren
