Geschäftslokal mit großen Schaufenstern in der Leonhardstraße – vielseitig nutzbar!

Einzelhandel , 8010 Graz


Die Straßenbahnhaltestellen der Linien 1 und 7 befinden sich direkt vor der Tür und sorgen für eine optimale Anbindung. In unmittelbarer Nähe finden Sie zahlreiche Geschäfte und Restaurants, die die Attraktivität des Standorts zusätzlich erhöhen.

Beschreibung der Immobilie

Geschäftslokal mit großen Schaufenstern in der Leonhardstraße – vielseitig nutzbar!

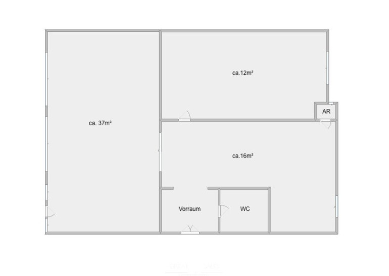
Dieses Geschäftslokal in der Leonhartstraße mit rund 69,94m² bietet Ihnen eine Vielzahl von Nutzungsmöglichkeiten – ideal für ein kleines Geschäft, eine Werkstatt, ein Büro oder als Therapiezentrum.



Gastronomische Nutzung ist nicht möglich.



Die Räumlichkeiten überzeugen mit einem großzügigen Eingangsbereich von ca. 37,62 m² und zwei großen Schaufenstern – ideal, um Ihre Produkte oder Dienstleistungen ansprechend zu präsentieren. Im hinteren Bereich befindet sich ein separates Zimmer von ca. 12,13 m², das sich perfekt als Büro oder Arbeitsraum eignet. Ergänzt wird das Angebot durch eine kleine Küche mit Aufenthaltsbereich, ein WC, einen Abstellraum sowie einen zusätzlichen Abstellraum im Stiegenhaus und einen zweiten Eingang.



Diese flexibel gestaltbaren Räumlichkeiten bieten Ihnen die Möglichkeit, Ihre individuellen Ideen umzusetzen und eine kreative Arbeitsumgebung in zentraler Lage zu schaffen.



Raumaufteilung:



  • Eingangsbereich mit zwei großen Schaufenstern
  • Großzügiger Raum mit ca. 37,62 m²
  • Separates Zimmer mit ca. 12,13 m²
  • WC
  • Vorraum mit zweitem Eingang
  • Küche mit Aufenthaltsbereich
  • Abstellraum
  • Zusätzlicher Abstellraum im Stiegenhaus




Für weitere Informationen oder zur Vereinbarung eines Besichtigungstermins stehe ich Ihnen gerne zur Verfügung.



​​​​​​​Bitte prüfen Sie auch Ihren SPAM-Ordner, falls Sie keine Antwort auf Ihre Anfrage von uns erhalten!



Bitte beachten Sie, dass wir aufgrund unserer Nachweispflicht gegenüber dem Abgeber nur Anfragen beantworten können, die Ihren vollständigen Namen und eine Telefonnummer enthalten.



Ich freue mich auf Ihre Anfrage!




Wir weisen darauf hin, dass zwischen dem Vermittler und dem zu vermittelnden Dritten ein familiäres oder wirtschaftliches Naheverhältnis besteht.


Der Vermittler ist als Doppelmakler tätig.

Infrastruktur / Entfernungen

Gesundheit
Arzt <500m
Apotheke <500m
Klinik <500m
Krankenhaus <1.500m

Kinder & Schulen
Schule <500m
Kindergarten <500m
Universität <500m
Höhere Schule <1.000m

Nahversorgung
Supermarkt <500m
Bäckerei <500m
Einkaufszentrum <1.000m

Sonstige
Geldautomat <500m
Bank <500m
Post <500m
Polizei <1.000m

Verkehr
Bus <500m
Straßenbahn <500m
Autobahnanschluss <5.000m
Bahnhof <1.500m
Flughafen <10.000m

Angaben Entfernung Luftlinie / Quelle: OpenStreetMap

Eckdaten Objektnr. 7314/640

Art: Einzelhandel
Land: Österreich
Alter: Altbau
Kaufpreis: 225.000,00
Provision: 8.100,00 € inkl. 20% USt.
Betriebskosten: 171,62 €
MwSt Gesamt: 34,32 €
Nutzfläche: 69,94 m²
Zimmer: 2,50
WC: 1
Heizwärmebedarf:  E  161,26 kWh/m²a
Immobilie merken Exposé

Ausstattung

Dielenboden, Fernwärme, Teeküche


Immobilie anfragen


Ihre persönliche Beratung

GS Great Sales Immobilien GmbH

Oliver Sgerm

Golden Service GmbH | Great Sales - Premium Immobilienvermittlung

T +43 316 44 50 05

H +43 660 81 90 748