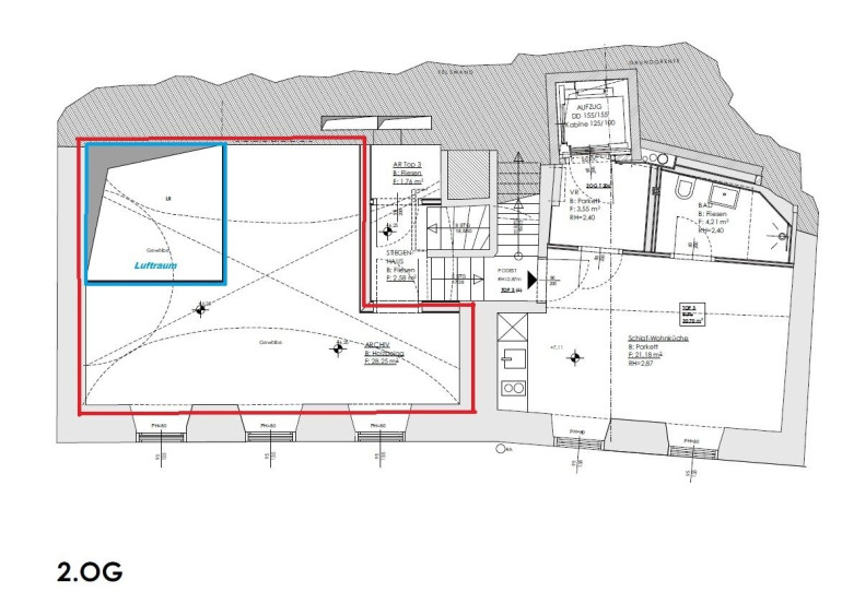
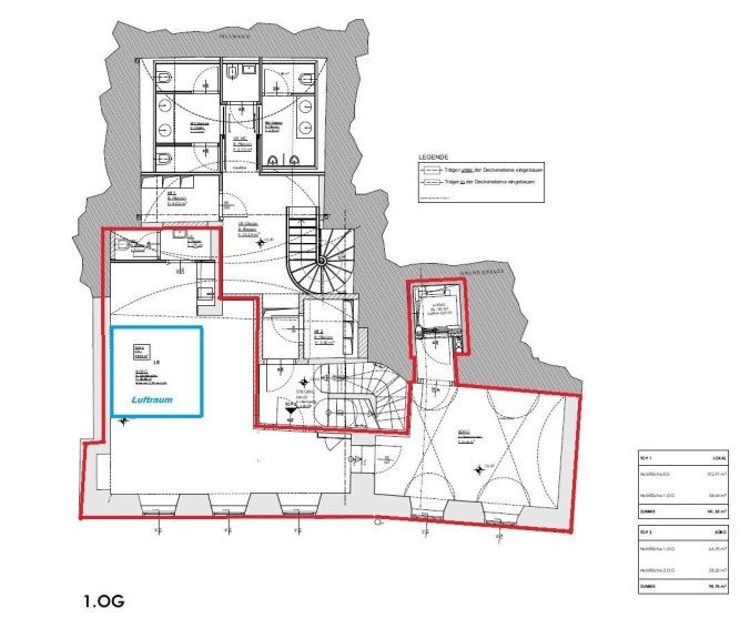
Büro mit Galerie in historischem Altbau

Büro / Praxis , 5020 Salzburg


Die gegenständliche Liegenschaft befindet sich in unmittelbarer Nähe der Salzach, verkehrsbegünstigt am Rande der Salzburger Altstadt. Der Hanuschplatz sowie die S-Bahn-Station Mülln befinden sich in Gehweite wodurch eine optimale Anbindung an den öffentlichen Verkehr gewährleistet wird.

Beschreibung der Immobilie

Büro mit Galerie in historischem Altbau

Die zur Vermietung kommende Bürofläche bietet auf etwa 95m² ein außergewöhnliches Arbeitsumfeld in historischem Ambiente. 



In einem gepflegtem Mehrparteienhaus am Rande der historischen Altstadt verteilt sie sich über zwei Ebenen, die durch eine offen gestaltete Galerie miteinander verbunden sind. 



Die Gewölbedecken verleihen den Räumen einen unverwechselbaren Charakter. 



Im unteren Büroteil sind Anschlüsse für eine kleine Teeküche und ein kürzlich saniertes WC vorhanden.



Der Einzug von Netzwerkkabeln ist bereits vorbereitet. Auch Stauraum für einen kleinen Server ist im Bedarfsfall vorhanden.



Wir haben Ihr Interesse geweckt? Zögern Sie nicht uns zur Vereinbarung einer Besichtigung zu kontaktieren. 










Hinweis gemäß Energieausweisvorlagegesetz: Ein Energieausweis wurde vom Eigentümer bzw. Verkäufer, nach unserer Aufklärung über die generell geltende Vorlagepflicht, sowie Aufforderung zu seiner Erstellung noch nicht vorgelegt. Daher gilt zumindest eine dem Alter und der Art des Gebäudes entsprechende Gesamtenergieeffizienz als vereinbart. Wir übernehmen keinerlei Gewähr oder Haftung für die tatsächliche Energieeffizienz der angebotenen Immobilie.


Wir weisen darauf hin, dass zwischen dem Vermittler und dem zu vermittelnden Dritten ein familiäres oder wirtschaftliches Naheverhältnis besteht.


Der Vermittler ist als Doppelmakler tätig.

Infrastruktur / Entfernungen

Gesundheit
Arzt <500m
Apotheke <1.000m
Klinik <1.000m
Krankenhaus <1.000m

Kinder & Schulen
Schule <500m
Kindergarten <500m
Universität <500m
Höhere Schule <500m

Nahversorgung
Supermarkt <500m
Bäckerei <500m
Einkaufszentrum <1.000m

Sonstige
Bank <500m
Geldautomat <500m
Post <500m
Polizei <1.000m

Verkehr
Bus <500m
Bahnhof <1.000m
Autobahnanschluss <3.000m
Flughafen <3.000m

Angaben Entfernung Luftlinie / Quelle: OpenStreetMap

Eckdaten Objektnr. 6004/240

Art: Büro / Praxis
Land: Österreich
Zustand: Modernisiert
Alter: Altbau
Kaltmiete (netto): 2.000,00 €
Kaltmiete: 2.401,57 €
Provision: 3 Bruttomonatsmieten zzgl. 20% USt.
Betriebskosten: 401,57 €
Heizkosten: 68,43 €
MwSt Gesamt: 494,00 €
Bürofläche: 94,95 m²
Immobilie merken Exposé

Ausstattung

Parkett, Zentralheizung, Personenaufzug, Teeküche


Immobilie anfragen


Ihre persönliche Beratung

UK Immobilien GmbH

Mag. Jakob Kleibel

UK Immobilien GmbH

T +43 662 877 549 - 11

H +43 664 1960 682

F +43 662 877 549 - 9