360 TOUR // DACHGESCHOß TERRASSEN-WOHNUNG

Wohnung , 1040 Wien


Beschreibung der Immobilie

360 TOUR // DACHGESCHOß TERRASSEN-WOHNUNG

TERRASSENWOHNUNG nahe WIEDNER HAUPTSTRASSE



Diese im letzten Liftstock = Dachgeschoß eines klassischen Jahrhundertwendehauses gelegene Mietwohnung bietet folgende



Raumaufteilung:

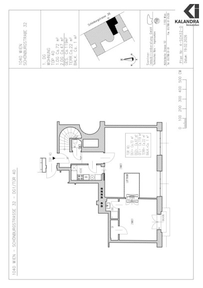
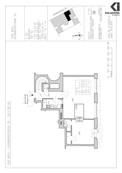
1.Ebene:

Vorraum, Wohn-& Eßzimmer mit direktem Ausgang zur innenhofseitigen Terrasse, teils offene Küche, zwei Schlafzimmer, Wannenbad mit WC.

2.Ebene:

Galeriezimmer mit Ausgang auf die Dachterrasse



Ausstattung:

- durchgehend massiver Eichen-Parkettboden,

- Einbauküche mit weißen Fronten und Einbaugeräten,

- moderne Badezimmerausstattung (weiß/ grau verfliest)

- Galerie mit Bullaugenfenster,

- Hauszentralheizung (Fernwärme)



Das monatliche Heizkosten-Akonto von zur Zeit € 179,06,- inkl. 20% USt. ist gesondert zu bezahlen.



Angeboten wird ein unbefristetets Mietverhältnis mit einjährigem, mieterseitigen Kündigungsverzicht.



____________________



TERRACE APARTMENT next to WIEDNER HAUPTSTRASSE



This apartment is located on the top floor with elevator of a turn of the century building, built out on 2 stories and offers the following



Layout:

1st level:

anteroom, living & dining room with direct exit to the terrace facing the inner courtyard, open kitchen, two bedrooms, bathroom with tub and toilet,

2nd level:

gallery room with exit to the roof terrace



Equipment:

- livingrooms with solid oak parquet flooring,

- fitted kitchen with white fronts and built-in appliances,

- modern bathroom equipment (white/ grey tiled)

- gallery,

- central house heating system (district heating)



The monthly heating costs prepayment of € 166,- inclusive 20% tax has to be paid additionally.



An unlimited contract with a one-year, tenant-side waiver of termination is been offered.


Der Immobilienmakler erklärt, dass er – entgegen dem in der Immobilienwirtschaft üblichen Geschäftsgebrauch des Doppelmaklers – einseitig nur für den Vermieter tätig ist.

Infrastruktur / Entfernungen

Gesundheit
Arzt <500m
Apotheke <500m
Klinik <1.000m
Krankenhaus <1.000m

Kinder & Schulen
Schule <500m
Kindergarten <500m
Universität <500m
Höhere Schule <1.000m

Nahversorgung
Supermarkt <500m
Bäckerei <500m
Einkaufszentrum <500m

Sonstige
Geldautomat <500m
Bank <500m
Post <500m
Polizei <1.000m

Verkehr
Bus <500m
U-Bahn <500m
Straßenbahn <500m
Bahnhof <500m
Autobahnanschluss <3.000m

Angaben Entfernung Luftlinie / Quelle: OpenStreetMap

Eckdaten Objektnr. 18584

Art: Wohnung
Land: Österreich
Baujahr: 1900
Zustand: Neuwertig
Gesamtmiete: 2.395,00
Kaltmiete (netto): 1.903,89 €
Kaltmiete: 2.177,27 €
Provision: Gemäß Erstauftraggeberprinzip bezahlt der Abgeber die Provision.
Betriebskosten: 273,38 €
MwSt Gesamt: 217,73 €
Wohnfläche: 120,00 m²
Zimmer: 4
Bäder: 2
WC: 2
Terrassen: 1
Heizwärmebedarf:  C  77,00 kWh/m²a
Immobilie merken Exposé

Ausstattung

Zentralheizung, Personenaufzug


Immobilie anfragen


Ihre persönliche Beratung

KALANDRA Immobilien Robert Kalandra e.U.

Mag. Robin Kalandra

KALANDRA Immobilien Robert Kalandra e.U.

T +43-1533326913

H +43-69911804004

F +43-1-533-32-69-20