Eigentumswohnung in Rottenmann mit Loggia

Wohnung , 8786 Rottenmann


in Rottenmann, sonnige und ruhige Lage

Beschreibung der Immobilie

Eigentumswohnung in Rottenmann mit Loggia

Objektbeschreibung



Diese modern renovierte Wohnung befindet sich in einer sonnigen und ruhigen Lage in Rottenmann und ist sofort verfügbar. Der perfekte Rückzugsort für alle, die Wert auf Komfort und eine angenehme Wohnatmosphäre legen.



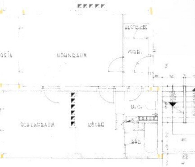
Raumaufteilung



Die Wohnung bietet eine durchdachte Raumaufteilung, die sowohl Funktionalität als auch Gemütlichkeit vereint:



  • Vorraum: Der einladende Vorraum schafft einen harmonischen Übergang zu den weiteren Wohnräumen.
  • Schlafzimmer: Ruhig gelegen, bietet das Schlafzimmer ausreichend Platz für Ihre individuelle Gestaltung.
  • Wohnzimmer: Das gemütliche Wohnzimmer ist mit einem Heizofen ausgestattet und lädt zu entspannten Stunden ein. Zudem haben Sie hier direkten Zugang zur ostseitigen Loggia, die Ihnen zahlreiche Stunden im Freien ermöglicht.
  • Küche: Die neuwertige Einbauküche ist modern gestaltet und bietet ausreichend Stauraum sowie alle notwendigen Geräte für das Kochen. Zusätzlich ist ein Essplatz integriert, der sich ideal für gemeinsame Mahlzeiten eignet.
  • Badezimmer: Das Badezimmer ist mit einer Badewanne und einem Fenster ausgestattet und sorgt für eine angenehme Atmosphäre.
  • WC: Separates WC für zusätzlichen Komfort.
  • Abstellraum: Praktischer Abstellraum für zusätzlichen Stauraum.
  • Kellerabteil: Ein separates Kellerabteil gehört ebenfalls zur Wohnung.


Heizung



Die Wohnung verfügt über eine Infrarotheizung sowie einen gemütlichen Heizofen, der für wohlige Wärme sorgt und Ihnen Flexibilität in der Heizgestaltung bietet.



Besonderheiten



  • Zweitwohnsitzfähigkeit: Diese Immobilie ist ideal für alle, die eine Zweitwohnung suchen, sei es für Ferien oder als Wochenenddomizil.
  • Ruhige Lage: Die Wohnung befindet sich in einer ruhigen Umgebung, die dennoch eine gute Anbindung an das öffentliche Leben bietet.


Die Umgebung: Die Stadt Rottenmann bietet eine gute Infrastruktur mit Einkaufsmöglichkeiten, Schulen und Freizeitangeboten. Hier erleben Sie das ländliche Leben in Kombination mit den Annehmlichkeiten einer Stadt.



Die nahegelegenen Regionen Kaiserau und Hohentauern sind wahre Paradiese für Naturliebhaber und Sportbegeisterte. Ob Wandern, Skifahren, Radfahren oder einfach nur die Natur genießen – die beeindruckende Berglandschaft und die zahlreichen Freizeitmöglichkeiten laden zu Outdoor-Abenteuern ein. 



Für Wintersportbegeisterte ist dieses Wohnhaus ein wahres Paradies. Die renommierten Skigebiete Hauser Kaibling, die Dachstein-Tauern Region, Schladming, Planneralm, Riesneralm und die Tauplitz sind schnell erreichbar und bieten Ihnen erstklassige Pistenverhältnisse. Auch die nahegelegenen Skigebiete in Oberösterreich, wie Hinterstoder und Wurzeralm, laden zu unvergesslichen Skiabenteuern ein. Und für entspannende Ausflüge erreichen Sie das wunderschöne Salzkammergut mit seinen glitzernden Seen in nur ca. 50 Minuten.

Im Sommer laden die umliegenden Wander- und Klettergebiete und der Golf- und Landklub Ennstal in Weißenbach bei Liezen sowie der Golf- und Countryclub  Schloss Pichlarn im nahen Irdning, zu sportlicher Betätigung und Erholung ein.

In nur 25 Autominuten erreichen Sie die beeindruckende Gesäuse Region, ein Paradies für Naturliebhaber. Hier erwarten Sie atemberaubende Landschaften des Nationalparks Gesäuse und das Stift Admont mit der größten Klosterbibliothek der Welt. 



Fazit



Diese modern renovierte Eigentumswohnung in Rottenmann vereint gemütliches Wohnen mit und Lebensqualität. Genießen Sie die ruhige und sonnige Lage, die Ihnen sowohl Entspannung als auch zahlreiche Freizeitmöglichkeiten bietet. Lassen Sie sich diese Chance nicht entgehen und vereinbaren Sie noch heute einen Besichtigungstermin!


Der Vermittler ist als Doppelmakler tätig.

Infrastruktur / Entfernungen

Gesundheit
Arzt <500m
Apotheke <1.000m
Krankenhaus <1.500m
Klinik <10.000m

Kinder & Schulen
Schule <1.000m
Kindergarten <500m

Nahversorgung
Supermarkt <1.000m
Bäckerei <8.000m
Einkaufszentrum <9.000m

Sonstige
Geldautomat <500m
Bank <500m
Post <500m
Polizei <10.000m

Verkehr
Bus <500m
Autobahnanschluss <1.000m
Bahnhof <1.000m

Angaben Entfernung Luftlinie / Quelle: OpenStreetMap

Eckdaten Objektnr. 11045

Art: Wohnung
Land: Österreich
Baujahr: 1961
Alter: Neubau
Kaufpreis: 93.000,00
Provision: 3% des Kaufpreises zzgl. 20% USt.
Betriebskosten: 93,13 €
MwSt Gesamt: 12,38 €
Wohnfläche: 58,99 m²
Zimmer: 2
Bäder: 1
WC: 1
Heizwärmebedarf:  D  134,00 kWh/m²a
fGEE:  D  2,04
Immobilie merken Exposé

Ausstattung

Elektro, Heizofen, Einbauküche, Westbalkon, Badewanne, Bad mit Fenster


Immobilie anfragen


Ihre persönliche Beratung

wohn4you Immobilien Bacher & Steininger Immobilienmakler KG

Hans Jürgen Bacher

wohn4you Immobilien Bacher & Steininger Immobilienmakler KG

T +43 3612 25080

H +43 676 49 756 73

F +43 3612 25081