EDUART-Die Kunst des Wohnens: Hochwertiger 3-Zimmer NEUBAU-ZWEITBEZUG mit ca. 8m² Balkon! (8/12)

Wohnung , 1180 Wien


Beschreibung der Immobilie

EDUART-Die Kunst des Wohnens: Hochwertiger 3-Zimmer NEUBAU-ZWEITBEZUG mit ca. 8m² Balkon! (8/12)

Zur befristeten Vermietung gelangt diese helle, toll aufgeteilte und sehr hochwertig ausgestattete ca. 69 m² große 3-Zimmer Neubauwohnung mit Balkon in einem jetzt fertiggestellten, einzigartigen Neubau in toller Lage des 18. Wiener Gemeindebezirk gelegen!



Das Projekt:



"Ein Gebäude das in seiner Gestaltung und Ausführung neue Maßstäbe in der Wiener Neubaukultur setzt. "Ein Kunstwerk in dem man wohnen kann."



Beim Projekt EDUART handelt es sich um einen außergewöhnlichen Neubau bestehend aus drei Trakten mit Tiefgarage, welcher nicht nur durch seine flexiblen und intelligent geplanten Grundrisse und die großzügige Planung von Balkon/Loggien- Garten und Terrassenflächen, sondern auch durch seine sehr gute Lage in der Nähe von Kutschkermarkt und Schubertpark besticht. 



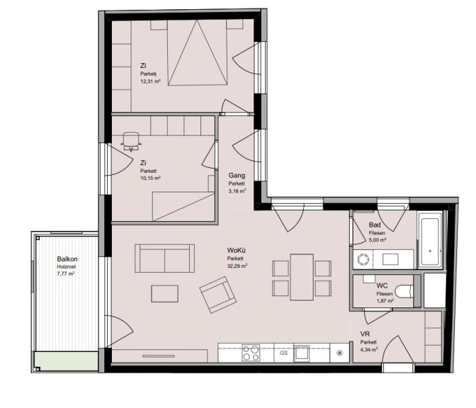
Raumaufteilung: Haus 8 Top 12



  • Vorraum 
  • getrenntes WC 
  • Badezimmer mit Wanne
  • Wohnküche
  • Balkon 
  • Schlafzimmer 
  • Schlafzimmer 


 (siehe Plan und Fotos vor Erstvermietung)



Die Lage:



Nahe der Eduardgasse 6-10 sind sämtliche Einkaufsmöglichkeiten des täglichen Bedarfs in Gehentfernung vorhanden; Freizeit- und Sporteinrichtungen, Restaurants als auch Ärzte in fußläufiger Entfernung erreichbar; infrastrukturelle Einrichtungen (Kindergärten, Schulen, …) innerhalb des Bezirks vorhanden. 



Highlights in der Umgebung: 



  - Kutschkermarkt



  - Schubertpark



  - Privatklinik Währing



  - Türkenschanzpark



  - Währingerstrasse



  - uvm.



Öffentliche Verkehrsmittel: Straßenbahnlinie 42 & 9 (Station „Eduardgasse“) in unmittelbarer Nähe (unter 100m), U6-Station „Währinger Straße- Volksoper“ in rd. 450m und damit fußläufiger Entfernung (rd. 6 min)



Individualverkehr: über Währinger Gürtel, Kreuzgasse und Antonigasse erreichbar.



Die Ausstattung:



Das Projekt EDUART vereint eine sehr gute Lage mit einer sehr guten Qualität des Bauwerks. Die aufwändig gestaltete Fassade lässt bereits vermuten: hier wurde mit Bedacht auf Materialen gearbeitet. Dieses Qualitätsversprechen zieht sich konsequent durch das gesamte Bauwerk und findet sich auch in jeder einzelnen Wohnung wieder.



Jede Wohnung ist nicht nur mit einer Freifläche ausgestattet, sondern weißt auch hochwertige Materialien als auch Ausstattung aus:



- elektrische Jalousien



- Fußbodenheizung



- Badezimmer mit Qualitätsarmaturen 



- voll ausgestattete Küche mit  hochwertigen Markengeräten



- Kellerabteil



- uvm.



Das Haus selbst verfügt neben Waschküche, Fahrradabstellraum, großzügigen Fahrrardstehern im Freien, Kinderwagenraum, Postboxen und nachhaltigen Grünanlagengestaltungkonzept auch über eine eigene Laufbahn/Gemeinschaftsterrasse am Dach des Hofgebäudes. Darüber hinaus stehen in der hauseigenen Tiefgarage PKW als auch Motorradstellplätze zur Verfügung (gegen Aufpreis).



Der Preis:



Die monatliche Gesamtmiete (inkl. Betriebskosten, Heizkosten, Warmwasser und Ust.) beträgt 1.839,13 €



Das Haus verfügt über eine großzügige Tiefgarage. Die Anmietung eines Stellplatzes kostet monatlich 120,00 € inkl. BK und USt. 



Die Vermietung erfolgt befristet auf 5 Jahre. 



Mietbeginn: 01.06.2026



Kaution: 5.097,00 €





Das Kleingedruckte:



Wir weisen ausdrücklich auf unser wirtschaftliches Naheverhältnis mit dem Abgeber/ der Abgeberin hin! 



Wir sind in unserer Position als Vermittler als Doppelmakler tätig. 



Für die Erstellung des Mietvertrags in ein Honorar in der Höhe von 180€ an die Hausverwaltung zu entrichten.



Alle hier veröffentlichen Informationen basieren auf den uns von dem Abgeber/ der Abgeberin zur Verfügung gestellten Informationen und wurden nicht selbst erhoben.



Unsere Allgemeinen Geschäftsbedingungen können Sie sowohl in dem Ihnen zugesandten Expose einsehen als auch auf unserer Homepage. Wir weisen ausdrücklich darauf hin, dass diese AGBs Vertragsinhalt werden.



Der Schutz von personenbezogenen Daten ist uns wichtig und auch gesetzlich gefordert. Die Verarbeitung Ihrer personenbezogenen Daten erfolgt nach den datenschutzrechtlichen Bestimmungen. Auf unserer Homepage (unter Datenschutzinformation) finden Sie eine Übersicht die Sie über die wichtigsten Aspekte der Verarbeitung personenbezogener Daten informieren soll.



Irrtum und Änderungen vorbehalten. 


Wir weisen darauf hin, dass zwischen dem Vermittler und dem zu vermittelnden Dritten ein familiäres oder wirtschaftliches Naheverhältnis besteht.


Der Immobilienmakler erklärt, dass er – entgegen dem in der Immobilienwirtschaft üblichen Geschäftsgebrauch des Doppelmaklers – einseitig nur für den Vermieter tätig ist.

Infrastruktur / Entfernungen

Gesundheit
Arzt <500m
Apotheke <500m
Klinik <500m
Krankenhaus <1.000m

Kinder & Schulen
Schule <500m
Kindergarten <500m
Universität <1.000m
Höhere Schule <1.000m

Nahversorgung
Supermarkt <500m
Bäckerei <500m
Einkaufszentrum <1.000m

Sonstige
Geldautomat <500m
Bank <500m
Post <500m
Polizei <500m

Verkehr
Bus <500m
U-Bahn <500m
Straßenbahn <500m
Bahnhof <500m
Autobahnanschluss <3.000m

Angaben Entfernung Luftlinie / Quelle: OpenStreetMap

Eckdaten Objektnr. 62946

Art: Wohnung
Land: Österreich
Baujahr: 2022
Zustand: Gepflegt
Alter: Neubau
Gesamtmiete: 1.839,13
Kaltmiete (netto): 1.385,58 €
Kaltmiete: 1.544,55 €
Provision: Gemäß Erstauftraggeberprinzip bezahlt der Abgeber die Provision.
Betriebskosten: 158,97 €
Heizkosten: 120,15 €
MwSt Gesamt: 174,43 €
Wohnfläche: 69,00 m²
Zimmer: 3
Bäder: 1
WC: 1
Balkone: 1
Heizwärmebedarf: 25,10 kWh/m²a
fGEE: 0,85
Immobilie merken Exposé

Ausstattung

Fliesen, Parkett, Einbauküche, Personenaufzug, Westbalkon, Badewanne


Immobilie anfragen


Ihre persönliche Beratung

Adonia Realitätenvermittlung GmbH

Projektvermarktung

Adonia Immobilien GmbH

T + 43 676 637 24 96