Erstklassige Lage - Erstbezug Büroetage OG3 nach Sanierung in 5020 Salzburg
Büro / Praxis
- Bürofläche,
5020
Salzburg
,
Markus-Sittikus-Straße 12
Die Liegenschaft in der Markus-Sittikus-Straße 12 befindet sich in zentraler und gefragter Innenstadtlage in unmittelbarer Nähe zum Schloss Mirabell sowie dem Kongresshaus. Die Umgebung ist geprägt von einer hochwertigen Wohn- und Büronutzung bei gleichzeitig ruhiger Straßenlage. Eine ausgezeichnete Anbindung an den öffentlichen regionalen und überregionalen Verkehr ist durch die fußläufig erreichbaren Haltestellen Kongresshaus und Mirabellplatz sowie den Salzburger Hauptbahnhof gegeben. In unmittelbarer Umgebung befinden sich schließlich zahlreiche Gastronomiebetriebe und Nahversorger – ideal für die Mittagspause.
Beschreibung der Immobilie
Erstklassige Lage - Erstbezug Büroetage OG3 nach Sanierung in 5020 Salzburg
Sehr schöne kernsanierte Büro Etage nahe Kongresshaus & Mirabellplatz | in 5020 Salzburg!In bester Salzburger Lage nahe des Schlosses Mirabell und nicht weit von der Altstadt werden in einem repräsentativen Gebäude diese Büroflächen derzeit komplett saniert und auf den neuesten optischen und technischen Stand gebracht.
Für interessierte Mieter ergibt sich hierbei die Möglichkeit, sich bei der Gestaltung noch gut einzubringen und eigene Anforderungen & Wünsche in den Umbau mit einfließen zu lassen.
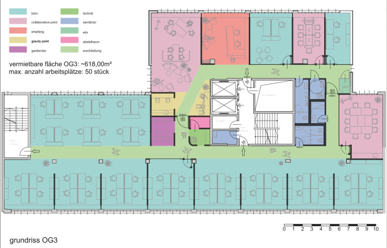
Die verfügbaren Flächen stehen geschoßweise zur Anmietung und reichen von je ca. 449-618 m² pro Stockwerk zu insgesamt 2.168 m² Gesamtfläche auf vier Ebenen.
GEGENSTÄNDLICHE NUTZFLÄCHE
OG 3 - ca. 618 m²
HAUSTECHNIK
Der Zugang zum Gebäude ist ebenso wie die einzelnen Einheiten jeweils mit einer Zutrittskontrolle ausgestattet, sodass nur befugten Personen der Zugang möglich ist.
Eine elektrisch steuerbare außenliegende Beschattung ist südseitig vorgesehen, Lüftung/Heizung über Fancoils und Kühlung mittels Decken-/Wand-Umluftgeräte sorgen stets für die richtige Temperatur und Wohlfühlatmosphäre.
PARKEN
In der hauseigenen Tiefgarage stehen außerdem Parkplätze optional zur Anmietung um € 120,00 netto/Monat zzgl. BK + USt
Fordern Sie jetzt alle Unterlagen an und planen Sie Ihren künftigen Standort vom Rohbau weg mit!
Wir möchten darauf hinweisen, dass es sich bei den angegeben Energieausweiswerten um aktuelle Werte handelt, die nach der Sanierung mindestens gleichwertig oder sogar verbessert sein werden. Bei den Betriebskosten handelt es sich um Schätzwerte.
Eckdaten Objektnr. 505260211_0
| Art: | Büro / Praxis - Bürofläche |
| Land: | Österreich |
| Baujahr: | 1995 |
| Zustand: | Teil_vollsaniert |
| Gesamtmiete: | 14.832,00 € |
| Kaltmiete (netto): | 9.888,00 € |
| Miete / m²: | 16,00 € |
| Provision: | 3 BMM zzgl. 20% USt. |
| Betriebskosten: | 2.472,00 € |
| Bürofläche: | 618,00 m² |
Ausstattung
Fernwärme, Zentralheizung, Personenaufzug, DV-Verkabelung
Ihre persönliche Beratung
Dieser Makler ist ein offizielles Mitglied des IR – ir.at Mehr Erfahren
