2-Zimmer Wohnung nahe Burggasse in 1070 Wien zu mieten
Wohnung
- Etage,
1070
Wien
,
Kaiserstraße 68
Eine hervorragende öffentliche Anbindung wird durch die nahe gelegene U6 sowie zahlreichen Straßenbahn- und Buslinien geboten. Geschäfte des täglichen Bedarf liegen in fußläufiger Entfernung. Die nahe gelegene Mariahilfer Straße bietet unzählige Geschäfte und nette Lokale.
Beschreibung der Immobilie
2-Zimmer Wohnung nahe Burggasse in 1070 Wien zu mieten
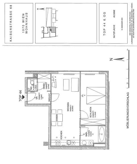
Erstklassige 2-Zimmer Wohnung nahe Burggasse in 1070 Wien zu mietenIn einem attraktiven Neubau in unmittelbarer Nähe zur Burggasse befindet sich im 6. Obergeschoß diese attraktive 2-Zimmer Wohnung mit folgender Aufteilung:
einladendes Vorzimmer mit Garderobenbereich, ostseitiges Wohnzimmer mit offener voll ausgestatteter Küche, Schlafzimmer, modernes Badezimmer, ausgestattet mit Wanne und Waschmaschinenanschluss sowie ein extra WC.
Hochwertige Parkettböden und großzügige Fensterflächen schaffen eine angenehme Atmosphäre. Ein kleines Kellerabteil ist der Wohnung zugeordnet.
Bei den Fotos handelt es sich um Musterfotos einer ähnlichen Wohnung im Haus.
Eckdaten Objektnr. 109268508
| Art: | Wohnung - Etage |
| Land: | Österreich |
| Baujahr: | 2005 |
| Gesamtmiete: | 1.214,35 € |
| Kaltmiete (netto): | 997,48 € |
| Provision: | provisionsfrei für den Mieter |
| Betriebskosten: | 106,47 € |
| Wohnfläche: | 49,52 m² |
| Zimmer: | 2 |
| Bäder: | 1 |
| WC: | 1 |
Ausstattung
Parkett, Fliesen, Zentralheizung, Einbauküche, Personenaufzug, Ostbalkon, Badewanne
Ihre persönliche Beratung
Dieser Makler ist ein offizielles Mitglied des IR – ir.at Mehr Erfahren
