Zentrale 2 Zimmer Wohnung mit Balkon in Innenhoflage - Obere Bahnstraße 53 - Top 08

Wohnung - Etage, 8010 Graz , Obere Bahnstraße 53


zentrale und ruhige Lage - Obere Bahnstraße 53, nahe Stadthalle

Beschreibung der Immobilie

Zentrale 2 Zimmer Wohnung mit Balkon in Innenhoflage - Obere Bahnstraße 53 - Top 08

Diese ruhig gelegene, ca. 43,13 m² große Wohnung befindet sich im 2. Lift-Stock des Hauses Obere Bahnstraße 53 in zentraler Lage, nahe der Stadthalle.



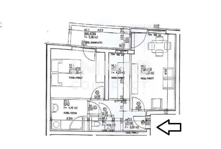
Raumaufteilung: Vorraum, Küche, Wohnzimmer, Schalfzimmer, Badezimmer/Toilette, Kellerabteil, Balkon.



Ausstattung: Die Böden sind in erster Linie mit Laminat ausgestattet. Die Fenster sind aus Kunststoff. Der Küchenbereich ist möbliert. Das Badezimmer ist unter anderem mit einer Dusche und einem Waschmaschinenanschluss ausgestattet. Die Wohnung verfügt über eine Zentralheizung. Ein Kabel-TV-Anschluss und ein Telefonanschluss sind in der Wohnung auch vorhanden.



Parken: "Grüne Zone".



Die Anbindung an des öffentliche Verkehrsnetz ist sehr gut. Einkaufsmöglichkeiten sind in unmittelbarer Nähe vorhanden.



Der Immobilienmakler erklärt, dass er - entgegen dem in der Immobilienwirtschaft üblichen Geschäftsgebrauch des Doppelmaklers - einseitig nur für den Vermieter tätig ist.


Wir weisen darauf hin, dass zwischen dem Vermittler und dem zu vermittelnden Dritten ein familiäres oder wirtschaftliches Naheverhältnis besteht.


Der Immobilienmakler erklärt, dass er – entgegen dem in der Immobilienwirtschaft üblichen Geschäftsgebrauch des Doppelmaklers – einseitig nur für den Vermieter tätig ist.

Infrastruktur / Entfernungen

Gesundheit
Arzt <150m
Apotheke <200m
Klinik <1.075m
Krankenhaus <1.775m

Kinder & Schulen
Schule <450m
Kindergarten <425m
Universität <475m
Höhere Schule <650m

Nahversorgung
Supermarkt <225m
Bäckerei <625m
Einkaufszentrum <1.125m

Sonstige
Geldautomat <225m
Bank <225m
Post <475m
Polizei <475m

Verkehr
Bus <150m
Straßenbahn <150m
Autobahnanschluss <3.775m
Bahnhof <650m
Flughafen <7.750m

Angaben Entfernung Luftlinie / Quelle: OpenStreetMap

Eckdaten Objektnr. 1939/215056

Art: Wohnung - Etage
Land: Österreich
Zustand: Gepflegt
Gesamtmiete: 636,76
Kaltmiete (netto): 345,03 €
Kaltmiete: 524,33 €
Provision: Gemäß Erstauftraggeberprinzip bezahlt der Abgeber die Provision.
Betriebskosten: 179,30 €
Heizkosten: 50,00 €
MwSt Gesamt: 62,43 €
Wohnfläche: 43,13 m²
Zimmer: 2
Bäder: 1
Balkone: 1
Keller: 2,00 m²
Heizwärmebedarf:  B  46,30 kWh/m²a
fGEE:  C  1,07
Immobilie merken Exposé

Ausstattung

Laminatboden, Zentralheizung, Einbauküche, Personenaufzug, Dusche


Immobilie anfragen


Ihre persönliche Beratung

IMMOcontract Immobilien Vermittlung GmbH

Jan Sarkantyu

IMMOcontract Immobilien Vermittlung GmbH

T +43 316 890 800

H +43 664 423 19 13