ROOFTOP GARDENS | Top 10 | Wohnen über den Dächern von Klosterneuburg.

Wohnung - Dachgeschoß, 3400 Klosterneuburg , Tauchnergasse


Beschreibung der Immobilie

ROOFTOP GARDENS | Top 10 | Wohnen über den Dächern von Klosterneuburg.

ROOFTOP GARDENS.

Wohnen mit besten Aussichten.



Über den Dächern Klosterneuburgs entsteht ein Ort, der Weitblick mit Wohnqualität verbindet. In **ROOFTOP GARDENS** entfalten **zwölf exklusive Dachgeschoßwohnungen** ein Lebensgefühl, das Raum zum Aufblühen, Durchatmen und Ankommen schafft. Großzügige Verglasungen öffnen den Blick auf Wien, die umliegenden Weinberge und die historische Altstadt, während private Dachgärten Rückzugsorte schaffen, in denen Natur und Architektur harmonisch miteinander verschmelzen.



Nachhaltig geplant und mit dem **ÖGNI-Gold-Zertifikat** ausgezeichnet, steht dieses Projekt für eine neue Form des Wohnens – klar in der Architektur, durchdacht in der Konzeption und geprägt von zeitloser Eleganz. Hier entsteht ein Zuhause für Menschen, die bewusst leben, Sinn schätzen und Wert auf Qualität legen.



NICE TO KNOW

- 12 exklusive Dachgeschoßwohnungen ohne Dachschrägen

- 50 bis 230 m² Wohnfläche

- Private Dachgärten, Terrassen und Balkone mit Weitblick

- Raumhöhen über 3 Meter in allen Aufenthaltsräumen

- Nachhaltige Energie durch Photovoltaik und Wärmepumpe

- Holz-Alu-Fenster, erlesene Materialien, Premium-Bäder

- 12 Stellplätze mit E-Ladevorbereitung, 30 Fahrradplätze

- Zentrale Lage, fußläufig zu Einkauf, Schulen und Kultur

-Nur 25 Minuten ins Wiener Stadtzentrum



Die zwölf exklusiven Dachgeschoßwohnungen vereinen Weitblick, Ästhetik und nachhaltigen Komfort. Raumhöhen von über drei Metern, großzügige Verglasungen und offene Grundrisse schaffen eine lichte, offene Atmosphäre und betonen das Gefühl von Freiheit über den Dächern der Stadt. Jede Wohnung ist individuell geplant, mit hochwertigen Materialien ausgestattet und so gestaltet, dass Innen- und Außenraum in fließendem Dialog stehen.



Private Dachgärten, Terrassen und Balkone holen das Grün bis in den Wohnbereich und schenken jedem Raum eine besondere Tiefe. Holz-Alu-Fenster, Premium-Bäder und natürliche Materialien unterstreichen den Anspruch an Qualität und Langlebigkeit. Technisch überzeugt das Projekt mit modernster Haustechnik: Luft-Wasser-Wärmepumpen, Photovoltaikanlagen und ein durchdachtes Energiekonzept sorgen für Effizienz, Wirtschaftlichkeit und ein angenehmes Raumklima.



ROOFTOP GARDENS ist ÖGNI-Gold zertifiziert und erfüllt die Anforderungen der EU-Taxonomie – ein sichtbares Zeichen für nachhaltiges, verantwortungsvolles Bauen. Auch in der Mobilität zeigt sich dieser Anspruch: zwölf Pkw-Stellplätze sind für E-Ladestationen vorbereitet, und 30 Fahrradabstellplätze fördern eine moderne, umweltbewusste Lebensweise.



So entsteht ein Wohnort, der Stil, Bewusstsein und Lebensqualität in Einklang bringt – ein Refugium über den Dächern Klosterneuburgs, geschaffen für Menschen mit Blick nach vorn.



ROOFTOP GARDENS liegt im Herzen Klosterneuburgs, wo Stadtleben, Kultur und Natur auf einzigartige Weise ineinandergreifen. Nur wenige Schritte entfernt finden sich charmante Boutiquen, ausgezeichnete Restaurants und traditionelle Heurige, ebenso wie Schulen, Nahversorger und kulturelle Einrichtungen. Das Stift Klosterneuburg und die Babenbergerhalle liegen ebenso in fußläufiger Distanz wie die Ufer der Donau und die umliegenden Weinberge, die zum Spazieren, Laufen oder Verweilen einladen.



Wer das urbane Flair Wiens sucht, erreicht den Stephansplatz in nur 25 Autominuten oder entspannt mit der Bahn vom nahegelegenen Bahnhof Klosterneuburg-Weidling. Damit verbindet ROOFTOP GARDENS die Vorzüge einer lebenswerten Kleinstadt mit der Nähe zur Großstadt – ein Wohnort, der beides ermöglicht: Ankommen und Aufbrechen.

Infrastruktur / Entfernungen

Gesundheit
Arzt <500m
Apotheke <500m
Klinik <4.750m
Krankenhaus <750m

Kinder & Schulen
Schule <500m
Kindergarten <500m
Universität <3.250m
Höhere Schule <6.250m

Nahversorgung
Supermarkt <250m
Bäckerei <500m
Einkaufszentrum <4.000m

Sonstige
Bank <250m
Geldautomat <250m
Post <250m
Polizei <500m

Verkehr
Bus <250m
Straßenbahn <4.500m
U-Bahn <6.750m
Bahnhof <500m
Autobahnanschluss <3.000m

Angaben Entfernung Luftlinie / Quelle: OpenStreetMap

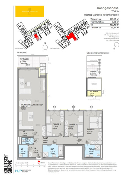
Eckdaten Objektnr. 2150/583133

Art: Wohnung - Dachgeschoß
Land: Österreich
Kaufpreis: 1.350.000,00
Provision: Provision bezahlt der Abgeber.
Wohnfläche: 133,42 m²
Zimmer: 4
Heizwärmebedarf:  B  36,50 kWh/m²a
fGEE:  A++  0,37
Immobilie merken Exposé

Ausstattung

Personenaufzug, Kabel/Satelliten-TV


Immobilie anfragen


Ihre persönliche Beratung

Kollitsch Immobilien NW GmbH

KOLLITSCH Immobilien NW GmbH Ingo Zuzan

Kollitsch Immobilien NW GmbH

T +43 664 78 000 505