Dornbirn: Moderne 2-Zimmer-Wohnung mit großem Garten und Terrasse

Wohnung , 6850 Dornbirn , Thomasbündt


Die Wohnung in Dornbirn überzeugt durch ihre zentrale Lage in Vorarlberg. In unmittelbarer Nähe finden Sie alles für den täglichen Bedarf: Arzt, Apotheke, Schulen und Kindergärten sorgen für eine optimale Familienfreundlichkeit. Supermarkt, Bäckerei und Bank sind schnell erreichbar, während eine gute Anbindung an die öffentlichen Verkehrsmittel, einschließlich Bus und Bahnhof, für Mobilität sorgt. Hier wohnen Sie komfortabel und praktisch!

Beschreibung der Immobilie

Dornbirn: Moderne 2-Zimmer-Wohnung mit großem Garten und Terrasse

Willkommen in Ihrem neuen Zuhause in Dornbirn



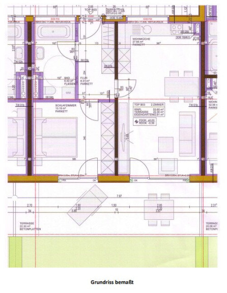
Diese gepflegte Erdgeschosswohnung mit einer Wohnfläche von 53,65 m² bietet eine durchdachte Raumaufteilung und ein modernes Wohnkonzept. Die Wohnung überzeugt durch ihre durchdachte Raumgestaltung und moderne Ausstattung.



Der offen gestaltete Wohnbereich mit integrierter Küche sorgt für ein großzügiges Raumgefühl. Die Einbauküche ist funktional in den Wohnraum integriert.



Die Wohnung ist mit einer Fußbodenheizung ausgestattet, die eine gleichmäßige Wärmeverteilung ermöglicht. Von Wohnbereich aus gelangen Sie auf die Terrasse mit anschließendem Garten, der zusätzlichen Freiraum im Alltag bietet.



Der Zugang zur Wohnung erfolgt bequem über einen Personenaufzug. Zur Immobilie gehören zudem ein Tiefgaragenstellplatz und ein Fahrradraum zur gemeinschaftlichen Nutzung. Die Wohnung ist aktuell bis zum 31.01.2028 vermietet. Falls ein Einzug nicht direkt erwünscht ist, kann man währenddessen Mieteinnahmen generieren und die Wohnung als Investition nützen. Falls das Bedürfnis besteht, früher einzuziehen, besteht ebenso eine Möglichkeit dies für Sie zu ermöglichen. Nehmen Sie diesbezüglich gerne mit unserem Makler, Anastasios Maximos Kontakt auf.



Auch die Lage überzeugt durch ihre gute Infrastruktur. Öffentliche Verkehrsmittel wie Bus und Bahnhof sind rasch erreichbar. Einrichtungen des täglichen Bedarfs – darunter Ärzte, Apotheken, Schulen, Kindergärten, Supermärkte und Bäckereien – befinden sich in unmittelbarer Nähe. Trotz der zentralen Lage bietet das Wohnumfeld eine ruhige Atmosphäre.



Hinweise
Dieses Exposé dient zur Vorabinformation. Alle Angaben nach bestem Wissen und Gewissen, jedoch ohne Gewähr. Tippfehler, Irrtum und Zwischenverkauf vorbehalten. Die Grundrisse dienen lediglich zur Darstellung der Raumaufteilung.


Der Vermittler ist als Doppelmakler tätig.

Infrastruktur / Entfernungen

Gesundheit
Arzt <750m
Apotheke <1.000m
Krankenhaus <1.250m

Kinder & Schulen
Schule <750m
Kindergarten <500m
Universität <1.250m
Höhere Schule <7.750m

Nahversorgung
Supermarkt <750m
Bäckerei <500m
Einkaufszentrum <1.500m

Sonstige
Bank <500m
Geldautomat <500m
Post <1.000m
Polizei <1.500m

Verkehr
Bus <250m
Autobahnanschluss <1.750m
Bahnhof <750m
Flughafen <3.250m

Angaben Entfernung Luftlinie / Quelle: OpenStreetMap

Eckdaten Objektnr. 7763/379

Art: Wohnung
Land: Österreich
Baujahr: 2013
Zustand: Gepflegt
Kaufpreis: 320.000,00
Provision: 3% des Kaufpreises zzgl. 20% USt.
Betriebskosten: 260,68 €
Wohnfläche: 53,65 m²
Zimmer: 2
Bäder: 1
WC: 1
Terrassen: 1
Garten: 42,81 m²
Keller: 6,00 m²
Heizwärmebedarf:  B  41,00 kWh/m²a
fGEE:  A+  0,70
Immobilie merken Exposé

Ausstattung

Erdwärme, Fußbodenheizung, Wohnküche / offene Küche, Einbauküche, Personenaufzug, Südbalkon, Badewanne, Tiefgarage


Immobilie anfragen


Ihre persönliche Beratung

SIMA Immobilien GmbH

Anastasios Maximos

SIMA Immobilien GmbH

T +43 676 7090990

H +43 676 7090990