*** TOP vermietetes ANLAGENOBJEKT - Ärztepraxis **** mit 5,34 % Rendite !!!

Büro / Praxis - Praxis, 8020 Graz,14.Bez.:Eggenberg , Gaswerkstraße


Die Wohnung in der Gaswerkstraße 8020 Graz besticht durch ihre zentrale Lage und hervorragende Anbindung. In unmittelbarer Nähe befinden sich zahlreiche Einrichtungen des täglichen Bedarfs, darunter Arzt, Apotheke und mehrere Schulen. Auch eine Universität ist schnell erreichbar. Supermärkte, Bäckereien und Geldautomaten befinden sich gleich um die Ecke. Öffentliche Verkehrsmittel wie Bus und Straßenbahn sind fußläufig erreichbar, was eine optimale Mobilität gewährleistet.

Beschreibung der Immobilie

*** TOP vermietetes ANLAGENOBJEKT - Ärztepraxis **** mit 5,34 % Rendite !!!

Zum Verkauf gelangt ein attraktives Anlagenobjekt in gefragter Grazer Lage. Das Objekt ist an eine Arztpraxis langfristig vermietet und stellt damit eine äußerst interessante Kapitalanlage dar. Das Objekt stellt eine interessante Kapitalanlage mit stabilen und planbaren Mieteinnahmen dar und eignet sich ideal für Anleger, die Wert auf eine nachhaltige und risikoarme Investition legen.



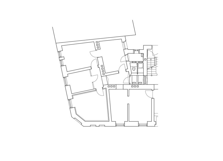
Die Praxis verfügt über eine funktionale Raumaufteilung mit großzügigem Empfangsbereich, mehreren Behandlungsräumen, Wartebereich sowie entsprechenden Nebenräumen. Die Räumlichkeiten sind gepflegt und den Anforderungen eines modernen Praxisbetriebs entsprechend ausgestattet. Die durchdachte Gestaltung ermöglich einen effizienten Arbeitsablauf und bietet sowohl Patienten als auch dem Praxisteam eine angenehme Atmosphäre. Ein wesentlicher Vorteil dieser Immobilie ist das langfristig bestehende Mietverhältnis mit einer etablierten Arztpraxis, wodurch eine kontinuierliche Einnahmesituation gewährleistet wird. Medizinische Einrichtungen gelten als besonders stabile Mieter, da sie in der Regel langfristig an ihren Standort gebunden sind.



Ein wesentlicher Vorteil dieser Liegenschaft ist die hervorragende infrastrukturelle Lage. Öffentliche Verkehrsmittel wie Bus und Straßenbahn sind fußläufig erreichbar und bieten eine ausgezeichnete Anbindung an das Grazer Stadtzentrum sowie weitere Stadtteile. Einrichtungen des täglichen Bedarfs – darunter Supermärkte, Bäckereien, Apotheken, Schulen und Kindergärten – befinden sich in unmittelbarer Umgebung. Dadurch ist eine optimale Versorgung für Patienten sowie eine hohe Standortattraktivität gegeben.



Dank der Kombination aus solider Vermietung, gefragter Nutzung und guter Lage bietet dieses Objekt eine zukunftssichere Investitionsmöglichkeit mit stabilem Ertragspotenzial. Die Immobilie eignet sich sowohl für erfahrene Kapitalanleger als auch für Investoren, die ihr Portfolio um eine wertbeständige Gewerbeimmobilie erweitern möchten. Die aktuelle monatliche Nettomiete beträgt € 1.111,-





Highlights der Praxis



  • langfristig an eine Arztpraxis vermietet
  • sofortige Mieteinnahmen von € 1.111,- 
  • Rendite von 5,34%
  • Top Infrastruktur und Verkehrsanbindung
  • allgemeiner gepflegter Zustand
  • zukunftssichere Investitionsmöglichkeit




Warten Sie nicht länger und vereinbaren Sie noch heute einen Besichtigungstermin unter +43 66488221902 ! 


Wir weisen darauf hin, dass zwischen dem Vermittler und dem zu vermittelnden Dritten ein familiäres oder wirtschaftliches Naheverhältnis besteht.

Infrastruktur / Entfernungen

Gesundheit
Arzt <250m
Apotheke <1.000m
Klinik <500m
Krankenhaus <1.000m

Kinder & Schulen
Schule <500m
Kindergarten <500m
Universität <750m
Höhere Schule <750m

Nahversorgung
Supermarkt <750m
Bäckerei <250m
Einkaufszentrum <1.750m

Sonstige
Geldautomat <750m
Bank <500m
Post <750m
Polizei <1.000m

Verkehr
Bus <250m
Straßenbahn <750m
Autobahnanschluss <3.500m
Bahnhof <1.000m
Flughafen <9.000m

Angaben Entfernung Luftlinie / Quelle: OpenStreetMap

Eckdaten Objektnr. 7585/19700

Art: Büro / Praxis - Praxis
Land: Österreich
Baujahr: 1912
Zustand: Gepflegt
Kaufpreis: 249.800,00
Provision: 3% des Kaufpreises zzgl. 20% USt.
Betriebskosten: 354,87 €
Heizkosten: 89,46 €
Nutzfläche: 84,40 m²
Zimmer: 5,50
Bäder: 1
WC: 1
Heizwärmebedarf:  D  123,39 kWh/m²a
Immobilie merken Exposé

Ausstattung

Dielenboden, Gas, Zentralheizung, Einbauküche, Bad mit Fenster, Dusche


Immobilie anfragen


Ihre persönliche Beratung

ROTO Immobilien GmbH & Co KG

Beate Budai

ROTO Immobilien Gmbh & Co KG

H +4366488221902