Eigennutzung, Anlage oder Kurzzeitvermietung!

Wohnung , 2700 Wiener Neustadt , Waxriegelgasse 1b


Die Garçonnière in der Waxriegelgasse 2700 Wiener Neustadt besticht durch ihre zentrale Lage. In unmittelbarer Nähe finden Sie alles, was das Herz begehrt: Arzt, Apotheke und Klinik für Ihre Gesundheit, Schulen für die Bildung, Supermärkte und Bäckereien für den täglichen Bedarf sowie Banken und Geldautomaten für Ihre Finanzangelegenheiten. Auch die Anbindung an öffentliche Verkehrsmittel wie Bus und Bahnhof ist hervorragend, sodass Sie schnell und unkompliziert mobil sind. Ideal für Stadtliebhaber und Pendler!

Beschreibung der Immobilie

Eigennutzung, Anlage oder Kurzzeitvermietung!

Willkommen in Ihrer neuen Garçonnière in Wiener Neustadt – einem perfekten Rückzugsort für Singles, Pendler oder als lukrative Anlageimmobilie!



Auch Kurzzeitvermietung (AirBnB) möglich!





Mit einem Kaufpreis von nur 77.870,00 € ist diese Immobilie nicht nur ein attraktives Zuhause, sondern auch eine hervorragende Investitionsmöglichkeit.



Das Haus ist mit einem Personenaufzug ausgestattet, der Ihnen den Zugang zu Ihrem neuen Zuhause erleichtert.



Lage, Lage, Lage – das ist der Schlüssel zu jeder Immobilie. Diese Wohnung befindet sich in einer ruhigen, aber dennoch zentralen Lage in Wiener Neustadt. Sie genießen eine hervorragende Verkehrsanbindung, sowohl durch die nahegelegene Bushaltestelle als auch den Bahnhof, der Ihnen eine schnelle Anbindung an die Stadt und die umliegenden Regionen bietet.



In der unmittelbaren Umgebung finden Sie alles, was das Herz begehrt. Ob Arzt, Apotheke oder Klinik – hier sind Sie bestens versorgt. Schulen und Kindergärten liegen ebenfalls in der Nähe, was die Wohnung besonders attraktiv für junge Familien macht. Für den täglichen Bedarf erreichen Sie Supermärkte und Bäckereien in wenigen Gehminuten.



Es besteht die Möglichkeit, eine Garage um jeweils € 13.000 pro Stück sowie einen Kellerersatzraum um jeweils € 5.000 pro Stück zu erwerben.



ALLE Wohnungen haben Zutritt zur großzügigen Dachterrasse!



Nähere Informationen dazu gern bei einem persönlichen Termin!



Gegen Aufpreis sind folgende Leistungen möglich:



  • Teeküche inkl. Geräten samt Montage und Anschluss
  • Vorbereitung Waschmaschinenanschluss
  • Bohrlöcher spachteln, Grundanstrich in weiß, Türstöcke weiß lackiert sowie neue Türdichtungen




Zögern Sie nicht und vereinbaren Sie noch heute einen Besichtigungstermin. Diese Gelegenheit wird nicht lange auf sich warten lassen! Willkommen in Ihrem neuen Zuhause in Wiener Neustadt!





Kaufpreis: € 77.870,--



Gewährleistung:



Die Verkäuferseite gewährleistet, dass der Vertragsgegenstand ihr unbeschränktes Eigentum und frei von Geldlasten, Bestandrechten und sonstigen Rechten Dritter ist.



Ansonsten wird jede Gewährleistung der Verkäuferseite ausgeschlossen und festgestellt, dass sich dieser Gewährleistungsausschluss sowohl auf bestimmte als auch auf gewöhnlich vorausgesetzte Eigenschaften des Vertragsgegenstandes wie beispielsweise Lage, Größe, Zustand, Abnützung, Widmung, Beschaffenheit, Ertrag und Verwendungsmöglichkeit bezieht.



Aufgrund der Nachweispflicht gegenüber dem Eigentümer ersuchen wir um Verständnis, dass nur Anfragen mit der Angabe der vollständigen Anschrift und Telefonnummer bearbeitet werden können.



Wir weisen auf Ihre 14-tägige Rücktrittsfrist (gemäß § 11 FAGG ) hin. Um Ihre Rechte zu wahren, können nur Anfragen mit vollständigen Kontaktdaten (Name, Adresse, Telefon, Email) beantwortet werden.



Vor Ablauf der 14-tägigen Rücktrittsfrist werden wir gerne für Sie tätig, wenn Sie gesetzeskonform (FAGG) uns ausdrücklich (am einfachsten per E-Mail) dazu auffordern.



Wenn der Kaufvertrag/der Mietvertrag nicht zustande kommt, bleibt unsere Tätigkeit für Sie vollkommen kostenlos.


Hinweis gemäß Energieausweisvorlagegesetz: Ein Energieausweis wurde vom Eigentümer bzw. Verkäufer, nach unserer Aufklärung über die generell geltende Vorlagepflicht, sowie Aufforderung zu seiner Erstellung noch nicht vorgelegt. Daher gilt zumindest eine dem Alter und der Art des Gebäudes entsprechende Gesamtenergieeffizienz als vereinbart. Wir übernehmen keinerlei Gewähr oder Haftung für die tatsächliche Energieeffizienz der angebotenen Immobilie.


Der Vermittler ist als Doppelmakler tätig.

Infrastruktur / Entfernungen

Gesundheit
Arzt <825m
Apotheke <475m
Klinik <975m
Krankenhaus <1.650m

Kinder & Schulen
Schule <275m
Kindergarten <1.075m
Höhere Schule <1.275m
Universität <3.550m

Nahversorgung
Supermarkt <500m
Bäckerei <250m
Einkaufszentrum <1.400m

Sonstige
Bank <550m
Geldautomat <550m
Post <550m
Polizei <900m

Verkehr
Bus <175m
Autobahnanschluss <2.225m
Bahnhof <475m
Flughafen <2.725m

Angaben Entfernung Luftlinie / Quelle: OpenStreetMap

Eckdaten Objektnr. 3147

Art: Wohnung
Land: Österreich
Baujahr: 1998
Möbliert: Teil
Alter: Neubau
Kaufpreis: 77.870,00
Provision: 2.803,32 € inkl. 20% USt.
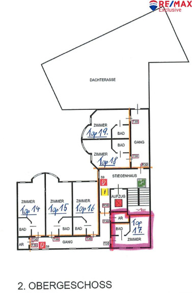
Wohnfläche: 23,96 m²
Zimmer: 1
Bäder: 1
WC: 1
Immobilie merken Exposé

Ausstattung

Gas, Zentralheizung, Personenaufzug, Dusche


Immobilie anfragen


Ihre persönliche Beratung

RE/MAX Exclusive Brugger KG

Claudia Lanz

RE/MAX Exclusive Brugger KG

T +43 2622 32081

H +43 2622 32081