DAS HAFENPORTAL I BÜROFLÄCHE IM 5.OG

Büro / Praxis - Bürofläche, 4020 Linz , Regensburger Straße


Beschreibung der Immobilie

DAS HAFENPORTAL I BÜROFLÄCHE IM 5.OG

Die Zukunft beginnt im Hafen Linz - werden Sie Teil des Projektes! Die wirtschaftliche Spitzenlage im industriellen Herz Österreichs sowie im Zentrum des oberösterreichischen Technologie- und Innovationsclusters verleiht Ihrem Unternehmensstandort nachhaltige Stärke und höchste Attraktivität. Auf ganzen 6 Ebenen bietet das Hafenportal modernste und hochflexible Flächen für Büros und Geschäftsflächen. Dank durchdachter Architektur lassen sich individuelle Raumkonzepte problemlos realisieren – ideal für Unternehmen mit speziellen Anforderungen an Layout und Nutzung.



DETAILS HAFENPORTAL



- insgesamt ca. 18.000 m² Bürofläche (1.OG - 6. OG)

- bereits ca. 2/3 an ein weltweit bekanntes Unternehmen (AAA Rating) vermietet 

- insgesamt ca. 923 m² Geschäftsflächen (EG)

- Raumaufteilung ist individuell teilbar

- Deckenheiz- und Kühlsystem

- Personenlifte

- Fernwärme / Fernkälte

- zusätzliche Lüftung durch Bodeninduktivauslässe

- außenliegende, elektrische Raffstores

- LED Grundbeleuchtung

- Boden: belagsfertiger Doppelboden

- Fenster: Kunststofffenster

- Zutrittssystem: elektronische Schließanlage

- Miete: abhängig von Lage im Objekt bzw. Ausstattung

- Befristung: nach Vereinbarung

- Tiefgaragenstellplatz: EUR 125 zzgl. EUR 25 Betriebskosten



Die Lage an der Regensburger Straße / Industriezeile überzeugt mit exzellenter Verkehrsanbindung: In wenigen Minuten erreicht man die Stadtautobahn A7 und von dort die A1. Auch mit öffentlichen Verkehrsmitteln ist der Standort optimal angebunden: Eine direkt im Gebäude gelegene Bushaltestelle verbindet das Areal in etwa 15 Minuten mit dem Linzer Hauptbahnhof.

Infrastruktur / Entfernungen

Gesundheit
Arzt <1.000m
Apotheke <750m
Klinik <1.750m
Krankenhaus <1.000m

Kinder & Schulen
Kindergarten <250m
Schule <750m
Universität <1.000m
Höhere Schule <1.750m

Nahversorgung
Supermarkt <500m
Bäckerei <1.000m
Einkaufszentrum <2.000m

Sonstige
Bank <750m
Geldautomat <750m
Post <2.000m
Polizei <750m

Verkehr
Bus <250m
Straßenbahn <2.000m
Bahnhof <1.250m
Autobahnanschluss <1.000m
Flughafen <2.250m

Angaben Entfernung Luftlinie / Quelle: OpenStreetMap

Eckdaten Objektnr. 5738/2626

Art: Büro / Praxis - Bürofläche
Land: Österreich
Baujahr: 2024
Zustand: Erstbezug
Alter: Neubau
Kaltmiete (netto): 17.435,52 €
Kaltmiete: 20.595,71 €
Miete / m²: 16,00 €
Provision: 3 Bruttomonatsmieten zzgl. 20% USt.
Betriebskosten: 3.160,19 €
MwSt Gesamt: 4.119,14 €
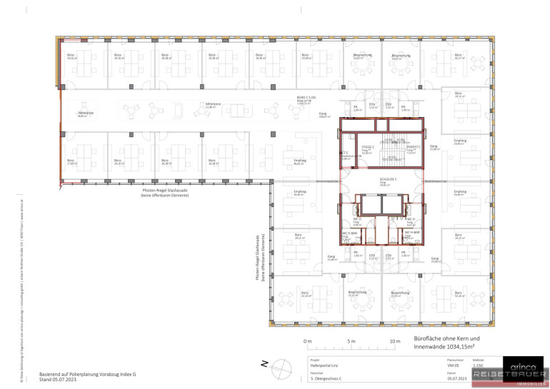
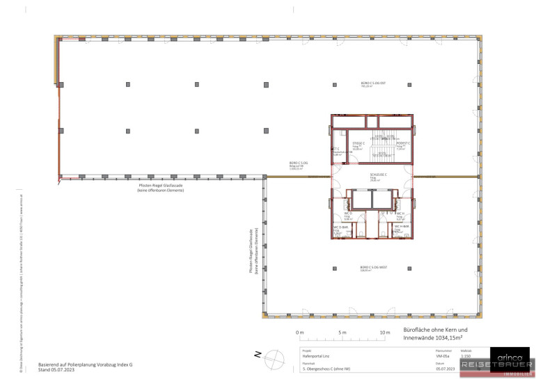
Nutzfläche: 1.089,72 m²
Bürofläche: 1.034,15 m²
Heizwärmebedarf:  B  27,00 kWh/m²a
fGEE:  A  0,71
Immobilie merken Exposé

Ausstattung

Zentralheizung, Personenaufzug


Immobilie anfragen


Ihre persönliche Beratung

Reisetbauer Immobilien GmbH

Fritz Reisetbauer

Reisetbauer Immobilien GmbH

T +43 732 665180

H +43 664 3605605

F +43 732 665180-9