Sanierungsbedürftige Garconniere in ruhiger Lage des 9. Bezirks! Nähe Liechtensteinpark

Wohnung - Etage, 1090 Wien


Beschreibung der Immobilie

Sanierungsbedürftige Garconniere in ruhiger Lage des 9. Bezirks! Nähe Liechtensteinpark

Im Falle der Notwendigkeit einer Fremdfinanzierung Ihrer Wunschimmobilie ermittelt unser Wohnbau-Finanzierungsexperte gerne die optimale Finanzierungslösung und findet das passende Zins- und Konditionsangebot für Sie. Er vergleicht die aktuellen Angebote aller relevanten Banken und Bausparkassen. Der Angebotsvergleich kann aus einem Portfolio von über 120 Banken erfolgen. Das Erstgespräch ist für Sie kostenfrei und unverbindlich, gerne auch bei Ihnen vor Ort. So sparen Sie Ihre wertvolle Zeit und erhalten eine professionelle und unabhängige Finanzierungslösung vom Spezialisten. Sprechen Sie uns wegen eines Termins gerne an!



 



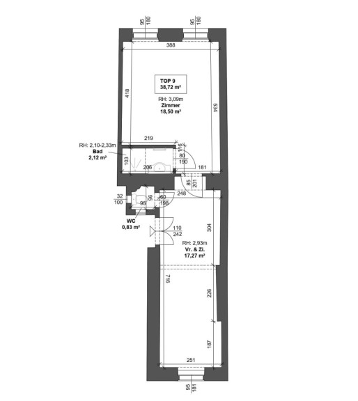
Zum Verkauf gelangt eine sanierungsbedürftige 1-Zimmer-Wohnung in guter Lage im 9. Wiener Gemeindebezirk in einem repräsentativen Altbau. 



Die Wohnung befindet sich im 3. Stock und erstreckt sich über eine Fläche von ca. 39 m². Die Wohnung vereint typischen Albaucharakter mit ca. 3 m hohen Decken. Die Wohnung teilt sich auf in einen großen Wohn-Schlafraum, separatem Vorraum mit Küche sowie separatem Bad inkl. Dusche und separatem WC. Die Wohnung befindet sich in einem sanierungsbedürftigen Zustand, und bietet Raum für individuelle Modernisierungsmöglichkeiten. Insbesondere Installationen,  Bad, WC, Böden sind erneuerungsbedürftig. 



Sie betreten die Immobilie, rechter Hand befindet sich die Küche inkl. Vorraum, die Kücheninstallationen müssen erneuert werden. Links neben der Eingangstür befindet sich ein separates WC, über das Vorzimmer gelangen Sie in ein großes Wohn/Esszimmer, über welches Sie zum Bad inkl. Dusche gelangen. 



Die Lage der Immobilie ist sowohl von der Wohnatmosphäre als auch von der Infrastruktur ausgezeichnet, eine Immobilie mit Entwicklungspotential in Toplage des 9. Bezirks. Das stilvolle Gründerzeithaus mit Altbaucharakter befindet sich in einer ruhigen Wohngegend. In unmittelbarer Umgebung befinden sich viele repräsentative Altbauten, gepflegte Wohnhäuser sowie eine perfekte Infrastruktur mit Nahversorgung und vielen Restaurants, Cafés, Bars, sowie Geschäfte des täglichen Bedarfs sind in unmittelbarer Nähe und fußläufig erreichbar. Auch ist für Bildung (Universitäten, Schulen und Kindergärten) auch Kultur gesorgt. Die Volksoper und das WIFI sind in knapp 5 Minuten zu Fuß erreichbar. Ebenso sind U-Bahnen (U6), Autobusse und Straßenbahnen (Linien 37,38,40,41,42) nur wenige Gehminuten entfernt. Zur Erholung bietet sich der nahe gelegene Liechtensteinpark, aber auch der weitläufige Währinger Park an. Für nähere Informationen zur Infrastruktur, fordern Sie bitte unser Exposé an.



Überzeugen Sie sich selbst von dieser großartigen Immobilie.



Bei den beigefügten Bildern handelt es sich um Symbolfotos einer anderen Wohnung im gleichen Haus.



Gerne lassen wir Ihnen bei ernsthaftem Interesse - vor Kaufanbotlegung - weitere vertraulichen Dokumente zu dieser Liegenschaft zukommen, welche nicht veröffentlicht werden dürfen.



Für Besichtigungen und nähere Informationen stehen wir Ihnen gerne zur Verfügung!



Mag. Viola Wasmuth

national - Tel: 0670 4039361
international - Tel: +43 670 4039361
e-mail: wasmuth@lifestyle-properties.at




Wir weisen darauf hin, dass zwischen dem Vermittler und dem zu vermittelnden Dritten ein familiäres oder wirtschaftliches Naheverhältnis besteht.


Der Vermittler ist als Doppelmakler tätig.

Infrastruktur / Entfernungen

Gesundheit
Arzt <500m
Apotheke <500m
Klinik <500m
Krankenhaus <500m

Kinder & Schulen
Schule <500m
Kindergarten <500m
Universität <500m
Höhere Schule <500m

Nahversorgung
Supermarkt <500m
Bäckerei <500m
Einkaufszentrum <2.000m

Sonstige
Geldautomat <500m
Bank <500m
Post <500m
Polizei <500m

Verkehr
Bus <500m
U-Bahn <500m
Straßenbahn <500m
Bahnhof <500m
Autobahnanschluss <2.000m

Angaben Entfernung Luftlinie / Quelle: OpenStreetMap

Eckdaten Objektnr. 5234

Art: Wohnung - Etage
Land: Österreich
Baujahr: 1898
Zustand: Gepflegt
Alter: Altbau
Kaufpreis: 235.000,00
Provision: 3% des Kaufpreises zzgl. 20% USt.
Betriebskosten: 98,77 €
MwSt Gesamt: 9,88 €
Wohnfläche: 38,72 m²
Zimmer: 1
Bäder: 1
WC: 1
Heizwärmebedarf:  F  216,50 kWh/m²a
fGEE:  E  2,94
Immobilie merken Exposé

Ausstattung

Laminatboden, Gas, Etagenheizung


Immobilie anfragen


Ihre persönliche Beratung

IM Lifestyle Properties GmbH

Mag. Viola Wasmuth

Lifestyle Properties

T +43 1 512 14 84

H +43 670 4039361