Praxis/Büro/Kosmetikstudio mit großem Potenzial | unbefristet | ab sofort

Büro / Praxis - Praxis, 1180 Wien


Beschreibung der Immobilie

Praxis/Büro/Kosmetikstudio mit großem Potenzial | unbefristet | ab sofort

Objektadresse:
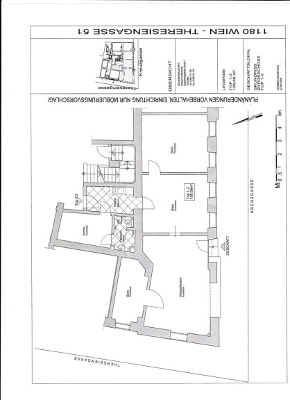
1180 Wien, Theresiengasse 51/Top 1-3 




Zimmeraufteilung:

1 großer Geschäftsraum, 2 separate Zimmer, 1 Kabinett, Küche, Abstellraum, WC 



Eckdaten zum Büro: 



  • unbefristeter Mietvertrag 
  • Mieter muss NICHT vorsteuerabzugsberechtigt sein (Arztpraxis, Psychotherapiepraxis u.ä, Vereine sind WILLKOMMEN)
  • keine Gastronomie - Branche nach Vereinbarung
  • ab sofort verfügbar
  • Küche mit Elektrogeräten vorhanden
  • Erdgeschoss mit direktem Straßenzugang (barrierefrei) 
  • Etagenheizung 
  • Objekt kann nach den eigenen Wünschen/Vorstellungen saniert/gestaltet werden 




Einmalkosten (bei MV-Abschluss zu bezahlen):



  • Kaution: € 4 BMM 
  • Provision € 3 BMM 
  • Mietvertragserrichtungskosten € 200,00 - direkt an die Hausverwaltung zu bezahlen 
  • Mietvertragsvergebührung 








Sollten Sie zu einem bestimmten Thema mehr Informationen wünschen, übermitteln wir diese gerne oder recherchieren für Sie! 



Ich freue mich darauf, Ihnen diese Immobilie persönlich zeigen zu dürfen.





***Für einen Besichtigungstermin bitten wir um Voranmeldung per E-Mail/Anfrage. Wir bitten Sie Ihren Namen und Anschrift anzuführen.***





Aufgrund der Nachweispflicht können wir nur Anfragen mit vollständigen NamenTelefonnummer und Email bearbeiten. Nach Anfrage mit vollständigen Daten erhalten Sie eine Email, in der Sie das Exposé mit Adresse und genaueren Daten herunterladen können. 





Kraft bestehenden Geschäftsgebrauchs weisen wir darauf hin, dass ein wirtschaftliches Naheverhältnis zum Vermieter besteht. Das wirtschaftliche Naheverhältnis ergibt sich aus der regelmäßigen Verbindung. 



Ihre Daten werden nach den Bestimmungen des Datenschutzes vertraulich behandelt. (https://www.immoeko.at/datenschutzinformation) 


Hinweis gemäß Energieausweisvorlagegesetz: Ein Energieausweis wurde vom Eigentümer bzw. Verkäufer, nach unserer Aufklärung über die generell geltende Vorlagepflicht, sowie Aufforderung zu seiner Erstellung noch nicht vorgelegt. Daher gilt zumindest eine dem Alter und der Art des Gebäudes entsprechende Gesamtenergieeffizienz als vereinbart. Wir übernehmen keinerlei Gewähr oder Haftung für die tatsächliche Energieeffizienz der angebotenen Immobilie.

Infrastruktur / Entfernungen

Gesundheit
Arzt <500m
Apotheke <500m
Klinik <500m
Krankenhaus <500m

Kinder & Schulen
Schule <500m
Kindergarten <500m
Universität <1.000m
Höhere Schule <1.000m

Nahversorgung
Supermarkt <500m
Bäckerei <500m
Einkaufszentrum <1.000m

Sonstige
Geldautomat <500m
Bank <500m
Post <500m
Polizei <500m

Verkehr
Bus <500m
U-Bahn <500m
Straßenbahn <500m
Bahnhof <500m
Autobahnanschluss <2.500m

Angaben Entfernung Luftlinie / Quelle: OpenStreetMap

Eckdaten Objektnr. 643

Art: Büro / Praxis - Praxis
Land: Österreich
Zustand: Gepflegt
Alter: Altbau
Kaltmiete (netto): 2.000,00 €
Kaltmiete: 2.240,86 €
Provision: 8.067,10 € inkl. 20% USt.
Betriebskosten: 240,86 €
MwSt Gesamt: 448,17 €
Nutzfläche: 109,09 m²
Zimmer: 4,50
WC: 1
Immobilie merken Exposé

Ausstattung

Fliesen, Gas, Etagenheizung, Einbauküche, Kabel/Satelliten-TV


Immobilie anfragen


Ihre persönliche Beratung

IMMOEKO e.U

Mag. Özge Kocabas

IMMOEKO OG

T 06645245486

H +43 664 524 54 86