2-Zimmer-Wohnung in Villach

Wohnung , 9500 Villach


zentrale Stadtlage, Villach

Beschreibung der Immobilie

2-Zimmer-Wohnung in Villach

2-Zimmer-Wohnung in Villach





Die Wohnung:
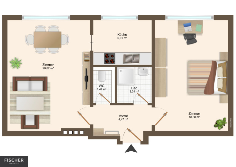
Bei dieser Immobilie handelt es sich um eine gemütliche 2-Zimmer-Wohnung im 2.OG eines Mehrparteienhauses. Die Wohnung bietet rund 54 m² Wohnfläche in einer praktischen sowie modernen Raumaufteilung. Sie betreten die Wohnung über den zentral gelegenen Vorraum, von hier aus gelangen Sie zu dem Badezimmer samt Dusche sowie zu einer separaten Toilette. Aufzug ist in der Wohnanlage keiner vorhanden.

Ein großer gemütlicher Wohnraum, ausgestattet mit schönen Echtholzböden sowie einer großen Süd-Befensterung, bildet wohl das Herzstück dieser Wohnung. Direkt angrenzend befindet sich die offene Küche samt integrierter Einbauküche.

Ein ebenfalls geräumiges Schlafzimmer rundet das Raumkonzept dieser Wohnung nun abschließend ab.



Durch das ältere Baujahr dieser Wohnanlage wurden im Zuge von Sanierungsarbeiten bereits sämtliche Fenster erneuert und die Beheizung erfolgt über einen Anschluss an das Fernwärmenetz. Weitere Sanierungen sind Seitens der Hausverwaltung angedacht, wurden aber in der WEG nocht nicht beschlossen. Im Vorhof der Wohnanlage befindet sich ein freier KFZ-Stellplatz, welcher zu dieser Wohnung gehört, und im Keller befindet sich natürlich ein zugeordnetes Kellerabteil.



Die Lage:
Diese Wohnung befindet sich in sehr zentraler Villacher Stadtlage und bietet alle Vorzüge unserer schönen Draustadt. Das Zentrum sowie die Altstadt von Villach sind in wenigen Gehminuten erreichbar und die umliegende Infrastruktur kann als sehr gut bezeichnet werden.

Im Sinne einer allfälligen Vermietungsabsicht dieser Wohnung, hat diese unter der Bestimmung des WGG zu erfolgen.





Sofortinfo: Peter Fischer +43664/9150295


Der Vermittler ist als Doppelmakler tätig.

Infrastruktur / Entfernungen

Gesundheit
Arzt <500m
Apotheke <1.000m
Klinik <1.000m
Krankenhaus <1.500m

Kinder & Schulen
Schule <1.000m
Kindergarten <500m
Universität <3.000m
Höhere Schule <3.000m

Nahversorgung
Supermarkt <500m
Bäckerei <1.000m
Einkaufszentrum <1.000m

Sonstige
Geldautomat <1.000m
Bank <1.000m
Post <1.000m
Polizei <1.000m

Verkehr
Bus <500m
Bahnhof <1.000m
Autobahnanschluss <3.000m

Angaben Entfernung Luftlinie / Quelle: OpenStreetMap

Eckdaten Objektnr. 1084/3798

Art: Wohnung
Land: Österreich
Baujahr: 1974
Zustand: Teil_vollsaniert
Alter: Altbau
Kaufpreis: 135.000,00
Provision: 3% des Kaufpreises zzgl. 20% USt.
Betriebskosten: 93,42 €
Heizkosten: 65,83 €
MwSt Gesamt: 22,38 €
Wohnfläche: 54,10 m²
Nutzfläche: 54,10 m²
Zimmer: 2
Bäder: 1
WC: 1
Stellplätze: 1
Keller: 6,50 m²
Heizwärmebedarf:  D  103,90 kWh/m²a
fGEE:  C  1,48
Immobilie merken Exposé

Ausstattung

Dielenboden, Fliesen, Parkett, Fernwärme, Einbauküche, Dusche, Parkplatz


Immobilie anfragen


Ihre persönliche Beratung

FISCHER-Immobilien

Peter Fischer

S Real Villach

T +43 (0)664 9150295

H +43 (0)664 9150295