Hofseitige 2-Zimmer-Balkonwohnung in begehrter Lage – Erstbezug BEIM DONAUUFER

Wohnung - Etage, 1210 Wien


Die verkehrsberuhigte Fahrbachgasse liegt in einer charmanten Einbahnstraße mit Übergang zur Begegnungszone und überzeugt durch urbane Erreichbarkeit, die unmittelbare Nähe zur Alten Donau sowie ein gewachsenes Bildungs- und Wohnumfeld mit hoher Lebensqualität. Alles Wesentliche erreichen Sie bequem zu Fuß: - 2 Gehminuten: Verkehrsknoten Bahnhof Wien Floridsdorf (U6, S-Bahn, zahlreiche Straßenbahn- und Buslinien) mit schneller Verbindung in die Innenstadt - 3 Gehminuten: Schulen und Kindergärten entlang der Bildungsmeile Franklinstraße sowie das Floridsdorfer Hallenbad - 4 Gehminuten Interspar, Billa, Müller, Bipa, Bäckereien, Cafés und Restaurants - 7 Gehminuten: Alte Donau  Die Nähe zur Alten Donau macht den Standort besonders attraktiv: durch die weitläufigen Uferwege, Badeplätze und vielfältigen Wassersportmöglichkeiten wird hier Freizeit zum täglichen Luxus. Auch die Donauinsel ist rasch erreichbar und bietet ideale Bedingungen für Sport, Spaziergänge und entspannte Stunden im Grünen. Die hervorragende öffentliche Anbindung ermöglicht eine schnelle Verbindung in alle Teile der Stadt; das Wiener Zentrum erreichen Sie in rund 15 Minuten. Rund um den Franz-Jonas-Platz finden sich darüber hinaus zahlreiche Einkaufsmöglichkeiten, Gastronomieangebote, Ärzte und Dienstleistungen des täglichen Bedarfs.

Beschreibung der Immobilie

Hofseitige 2-Zimmer-Balkonwohnung in begehrter Lage – Erstbezug BEIM DONAUUFER

Bezugsfertiges Wohnen nahe der Alten Donau 



Willkommen im Projekt BEIM DONAUUFER, einem bereits fertiggestellten und sofort beziehbaren Wohnprojekt. Nur wenige Gehminuten vom Ufer der Alten Donau entfernt, vereint das Projekt naturnahe Erholung, zeitgemäße Architektur und eine ausgezeichnete Anbindung.



Die 92 hochwertigen Eigentumswohnungen, verteilt auf zwei Stiegen, bieten durchdachte Grundrisse, helle Räume und vielfältige Wohnungsgrößen – vom kompakten Studio bis zur großzügigen Vierzimmer-Familienwohnung. Freiflächen wie Loggien, Balkone, Terrassen oder Eigengärten erweitern den Wohnraum ins Freie und bieten private Rückzugsorte mit hoher Lebensqualität. 



BEIM DONAUUFER steht für nachhaltiges Wohnen mit Zukunft. Das Gebäude entspricht der Energieklasse A, gilt damit als Niedrigenergiehaus und wurde DGNB Gold zertifiziert. Die energieeffiziente Bauweise, angenehme Fußbodenheizung mittels Fernwärme, Photovoltaikanlage am Dach sowie langlebige Qualitätsmaterialien aus Österreich sorgen für ein verantwortungsbewusstes Wohnkonzept und langfristige Wertbeständigkeit – attraktiv für Eigennutzer ebenso wie für Anleger.



Projekthighlits im Überblick 



  • Erstbezug - bereits fertiggestellt und sofort bezugsbereit
  • Private Freiflächen mit Wasseranschlüssen (Loggia, Balkon, Terrasse oder Eigengarten)
  • Eichenparkettböden aus österreichischer Produktion
  • Hochwertige Feinsteinfliesen und Markensanitäranlagen (Dornbracht, Laufen "pro")
  • Angenehme Fußbodenheizung mittels Fernwärme
  • Photovoltaikanlage für Allgemeinflächen
  • Außenliegender, elektrischer Sonnenschutz
  • Klimatisierung im Dachgeschoß
  • Videogegensprechanlage
  • Paketboxanlage und digitales Schwarzes Brett
  • Zwei Stiegenhäuser mit moderner Aufzugsanlage
  • Hauseigene Tiefgarage mit 41 PKW-Stellplätzen (inkl. Vorbereitung für E-Ladestationen) sowie Motorradabstellplätzen
  • Großzügiger Gemeinschaftsraum mit Garten, Küche, Spiel- und Freizeitbereichen
  • Kinderwagen- und Fahrradraum, Einlagerungsräume zu jeder Wohnung
  • Nachhaltige Bauweise – Energieklasse A / Niedrigenergiehaus, DGNB Gold zertifiziert
  • Gerne übernehmen wir für Sie die Erst- und auch Folgevermietung




Bei dem angegebenen Kaufpreis handelt es sich um den Anlegerpreis. Diese Wohnung kann als Vorsorgewohnung erworben werden und bietet eine attraktive Möglichkeit, heute schon an morgen zu denken. Investieren Sie in eine zukunftssichere Immobilie in attraktiver Lage und profitieren Sie von unserem sorgenfreien Rundum-Service – von der Beratung und Vermittlung über Finanzierung durch Kooperationspartner bis hin zur Vermietung. So sichern Sie sich nicht nur wertbeständigen Wohnraum, sondern auch laufende Mieteinnahmen von Anfang an.



Gerne können Sie die Wohnung auch zur Selbstnutzung erwerben, der korrespondierende Eigennutzerpreis beträgt EUR 324.300,-.





Bei Interesse oder für die Vereinbarung eines Besichtigungstermins kontaktieren Sie mich jederzeit unter:



Tel: 0664 88271745, Mail: Z.Mazurek@IMMOcontract.at


Wir weisen darauf hin, dass zwischen dem Vermittler und dem zu vermittelnden Dritten ein familiäres oder wirtschaftliches Naheverhältnis besteht.


Der Vermittler ist als Doppelmakler tätig.

Infrastruktur / Entfernungen

Gesundheit
Arzt <500m
Apotheke <500m
Klinik <500m
Krankenhaus <1.500m

Kinder & Schulen
Schule <500m
Kindergarten <500m
Universität <500m
Höhere Schule <500m

Nahversorgung
Supermarkt <500m
Bäckerei <500m
Einkaufszentrum <500m

Sonstige
Geldautomat <500m
Bank <500m
Post <500m
Polizei <1.000m

Verkehr
Bus <500m
U-Bahn <500m
Straßenbahn <500m
Bahnhof <500m
Autobahnanschluss <1.000m

Angaben Entfernung Luftlinie / Quelle: OpenStreetMap

Eckdaten Objektnr. 1939/216559

Art: Wohnung - Etage
Land: Österreich
Baujahr: 2023
Zustand: Erstbezug
Alter: Neubau
Kaufpreis: 295.900,00
Provision: 3% des Kaufpreises zzgl. 20% USt.
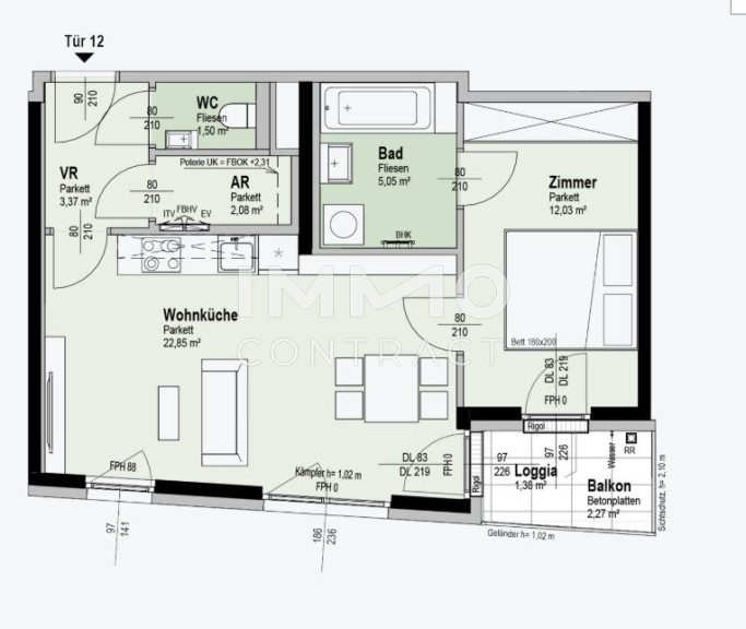
Wohnfläche: 48,25 m²
Nutzfläche: 48,25 m²
Zimmer: 2
Bäder: 1
WC: 1
Balkone: 1
Keller: 1,72 m²
Heizwärmebedarf:  A  22,90 kWh/m²a
fGEE:  A  0,71
Immobilie merken Exposé

Ausstattung

Fliesen, Parkett, Fußbodenheizung, Personenaufzug, Ostbalkon, Badewanne


Immobilie anfragen


Ihre persönliche Beratung

IMMOcontract Immobilien Vermittlung GmbH

Zuzanna Mazurek, MA

IMMOcontract Immobilien Vermittlung GmbH

T +43 664 88271745

H +43 664 88271745