Historisches Ambiente in der Alte Börse | Büro im EG

Büro / Praxis , 1010 Wien


- Schottentor - Ringstraße - Universität - Öffentliche Anbindung: U2; Strassenbahn 71, D, 1; Bus 40A, 3A, 1A

Beschreibung der Immobilie

Historisches Ambiente in der Alte Börse | Büro im EG

Sehr geehrte Damen und Herren,





beziehen Sie Ihren neuen Standort im historischen Gebäude der Alten Börse.



Die Lage mitten in der Stadt ist ideal, beeindruckend ist der repräsentative Eingangsbereich des imposanten Ringstraßenbaus.



Profitieren Sie hier vom breit gefächerten Angebot an Lokalen und Geschäften für die Mittagspause und Afterwork.



Zahlreiche Cafés und Restaurants im Haus und in unmittelbarer Umgebung bieten ein reichhaltiges kulinarisches Angebot für Frühstück, Businesslunch oder Dinner.



Eine gebäudeeigene Garage und Tankstelle sind vorhanden.



Auch die Anbindung an das öffentliche Verkehrsnetz ist erstklassig: Die U-Bahn-Stationen der Linien U2 (Schottentor) und U3 (Herrengasse) sowie zahlreiche Straßenbahn- und Busstationen befinden sich in fußläufiger Entfernung.






Fast Facts:



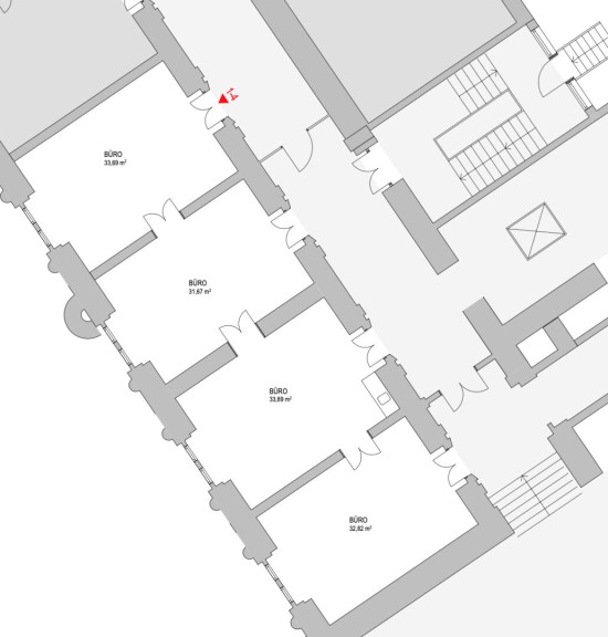
  • 133 m²
  • 4 Büroräume
  • Teeküche vorhanden 
  • Toiletten auf dem Gang



Highlights:



  • prachtvolles Gebäude
  • flexible Nutzungsmöglichkeiten
  • Toplage und Infrastruktur
  • ideale Erreichbarkeit



Kosteninformationen:
Miete: 19,90 EUR /m2 / Monat netto

Betriebskosten: 4,34 EUR /m2 / Monat netto



Kontaktieren Sie uns jederzeit für nähere Informationen oder einen Besichtigungstermin (gerne auch spätabends oder am Wochenende).



Ich freue mich auf Ihre Nachricht!


Wir weisen darauf hin, dass zwischen dem Vermittler und dem zu vermittelnden Dritten ein familiäres oder wirtschaftliches Naheverhältnis besteht.


Der Vermittler ist als Doppelmakler tätig.

Infrastruktur / Entfernungen

Gesundheit
Arzt <500m
Apotheke <500m
Klinik <500m
Krankenhaus <1.500m

Kinder & Schulen
Schule <500m
Kindergarten <500m
Universität <500m
Höhere Schule <1.000m

Nahversorgung
Supermarkt <500m
Bäckerei <500m
Einkaufszentrum <1.500m

Sonstige
Geldautomat <500m
Bank <500m
Post <500m
Polizei <500m

Verkehr
Bus <500m
U-Bahn <500m
Straßenbahn <500m
Bahnhof <500m
Autobahnanschluss <3.000m

Angaben Entfernung Luftlinie / Quelle: OpenStreetMap

Eckdaten Objektnr. 271545358

Art: Büro / Praxis
Land: Österreich
Kaltmiete (netto): 2.646,70 €
Kaltmiete: 3.224,44 €
Betriebskosten: 577,74 €
MwSt Gesamt: 644,89 €
Nutzfläche: 133,00 m²
Zimmer: 4
Heizwärmebedarf:  E  161,10 kWh/m²a
fGEE:  D  1,82
Immobilie merken Exposé

Ausstattung

Parkett, Fernwärme, Personenaufzug, Teeküche


Immobilie anfragen


Ihre persönliche Beratung

Immobiliaris GmbH

Mag. Lukas Suk

Immobiliaris GmbH

T +43 676 7304391