Smart Living im Niedrigenergiehaus – Architekturpreis trifft urbane Zukunft in Meidling | ZELLMANN IMMOBILIEN

Wohnung , 1120 Wien


Beschreibung der Immobilie

Smart Living im Niedrigenergiehaus – Architekturpreis trifft urbane Zukunft in Meidling | ZELLMANN IMMOBILIEN

Ausgezeichnet wohnen im Niedrigenergiehaus – Design, Effizienz und Lebensqualität über den Dächern von Meidling



QUICKREAD: Alles auf einen Blick


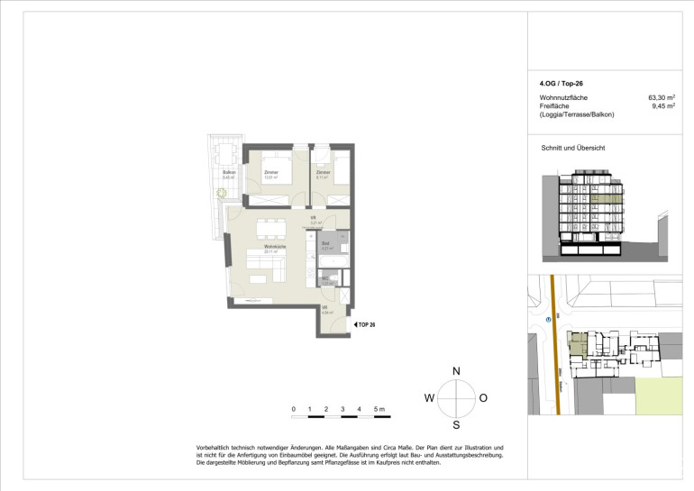
Adresse: 1120 Wien, Zeleborgasse

Objekt: Eigentumswohnung – Top 19

Geschoss: 4. Obergeschoss

Wohnnutzfläche: ca. 63,30 m²

Freifläche: ca. 9,45 m² Balkon

Zimmer: 3

Baujahr: ca. 2018

Heizung: Fernwärme mit Fußbodenheizung

Energiekennzahl: HWB 28,46 kWh/m²a (Klasse B – Niedrigenergiehaus)

fGEE: 0,87

Garagenplatz: optional um € 27.000,– erwerbbar

Bezug: nach Vereinbarung




Niedrigenergie-Standard mit nachhaltigem Mehrwert


Das Gebäude wurde in moderner Niedrigenergiebauweise errichtet und erreicht einen hervorragenden Heizwärmebedarf von lediglich 28,46 kWh/m²a. Diese Energiekennzahl (Klasse B) positioniert das Haus klar im Niedrigenergie-Segment und garantiert langfristig reduzierte Heizkosten, ein ausgeglichenes Raumklima sowie nachhaltige Wertbeständigkeit.



Der sehr gute Gesamtenergieeffizienz-Faktor von 0,87 unterstreicht die hohe bauliche Qualität. Hochwertige Wärmedämmung, 3-fach verglaste Fenster sowie die effiziente Fernwärmeversorgung sorgen für geringe Energieverluste und ein behagliches Wohngefühl zu jeder Jahreszeit.



Die Wärmeabgabe erfolgt über komfortable Fußbodenheizung – unsichtbar, gleichmäßig und besonders angenehm. Die Steuerung über Raumthermostat ermöglicht individuelle Temperaturregelung und optimale Energieeffizienz.




Wohnkomfort mit hochwertiger Ausstattung


Die Innenausstattung überzeugt durch zeitlose Eleganz und Qualität.



In Wohn- und Schlafräumen wurde edles Eichen-Fertigparkett verlegt, das durch seine seidenmatte Oberfläche und robuste Nutzschicht sowohl optisch als auch funktional überzeugt. Die durchgehende Parkettverlegung im Wohnbereich unterstreicht das großzügige Raumgefühl.



Bäder und WC sind mit großformatigen Feinsteinzeugfliesen ausgestattet. Markenkeramik, Hänge-WC mit Unterputzspülkasten sowie hochwertige, verchromte Designarmaturen sorgen für ein modernes Gesamtbild. Die Komfort-Badewanne und die hochwertig ausgeführte Dusche fügen sich harmonisch in das klare Raumkonzept ein.



Holzfenster mit außenliegender Aluminium-Deckschale und 3-Scheiben-Isolierverglasung bieten ausgezeichnete Wärmedämmung und hohen Schallschutz.



Die einbruchhemmende Wohnungseingangstüre mit Mehrfachverriegelung gewährleistet zusätzliche Sicherheit.




Architektur mit Auszeichnung


Das siebengeschossige Wohnhaus mit insgesamt 38 Einheiten steht sinnbildlich für die positive Entwicklung des Grätzels rund um den Meidlinger Markt.



Im Rahmen der Ausstellung „gebaut 2019“ der Stadt Wien – Architektur und Stadtgestaltung – wurde das Projekt mit einem Architekturpreis ausgezeichnet. Eine Anerkennung für architektonische Qualität, urbane Offenheit und nachhaltige Bauweise.



Eine gemeinschaftliche Rooftop-Terrasse mit Blick über Wien sowie eine hauseigene Tiefgarage ergänzen das hochwertige Gesamtkonzept.




Komfortables Parken im Haus


In der hauseigenen Tiefgarage kann ein Stellplatz optional um € 27.000,– erworben werden. Direktes Parken im Gebäude bietet zusätzlichen Komfort, Sicherheit und langfristige Wertstabilität – ein besonders gefragtes Extra in dieser urbanen Lage.




Gefragte Lage nahe Meidlinger Markt


Die unmittelbare Nähe zum Meidlinger Markt prägt das lebendige Umfeld. Kulinarische Vielfalt, kreative Impulse und eine gewachsene Infrastruktur treffen hier auf moderne Stadtentwicklung.



Die U6-Station Niederhofstraße sowie der Bahnhof Meidling sind fußläufig erreichbar und gewährleisten hervorragende Anbindung in alle Richtungen.




Zusammenfassung


Top 26 vereint ausgezeichnete Niedrigenergie-Qualität, architektonische Auszeichnung und hochwertige Ausstattung in einer der spannendsten Entwicklungszonen Wiens.



Eine Immobilie mit Substanz, Nachhaltigkeit und langfristigem Mehrwert – ideal für anspruchsvolle Eigennutzer oder wertorientierte Anleger.



Noch nichts gefunden? Wir informieren Sie über geeignete Immobilienangebote noch vor allen anderen.
Legen Sie jetzt Ihren individuellen Suchagenten unter folgendem Link an. Wir schicken Ihnen passende Immobilien exklusiv vorab zu. 



-> Suchagent anlegen


Der Vermittler ist als Doppelmakler tätig.

Unser Service – Vertrauen. Service. Qualität.

Bei ZELLMANN IMMOBILIEN legen wir größten Wert auf persönliche Beratung, Transparenz und Service auf höchstem Niveau. Jede Besichtigung ist unverbindlich und findet in entspannter Atmosphäre statt. Nach Vertragsabschluss übernehmen wir selbstverständlich sämtliche Formalitäten – von der Übergabedokumentation bis zur Abstimmung mit Hausverwaltung und Energieversorgern. Ihr Anliegen ist bei uns in den besten Händen – auch nach Vertragsabschluss.

Rechtliche Hinweise

Bitte überprüfen Sie nach Übermittlung Ihrer Anfrage auch Ihren SPAM- bzw. WERBE-Ordner, da automatisierte E-Mail-Zustellungen technisch bedingt fallweise dort eingeordnet werden können. Wir bearbeiten Anfragen üblicherweise innerhalb weniger Stunden, auch an Wochenenden. Die Bekanntgabe einer Telefonnummer erfolgt freiwillig; diese kann ausschließlich zur ergänzenden Verständigung (z. B. SMS-Benachrichtigung über die Exposé-Übermittlung) verwendet werden. Dieses Angebot ist unverbindlich und freibleibend. Alle Angaben erfolgen auf Basis von Informationen des Eigentümers und vorliegenden Unterlagen; eine Haftung für Richtigkeit, Vollständigkeit und Aktualität wird nicht übernommen. Änderungen, Irrtümer, Zwischenverkauf sowie Abweichungen bleiben vorbehalten. Flächenangaben sind ca.-Werte. Das Exposé stellt kein verbindliches Angebot dar. Im Erfolgsfall beträgt die Käuferprovision 3 % des Kaufpreises zzgl. 20 % USt gemäß §§ 6 ff MaklerG und Immobilienmaklerverordnung, BGBl. 262/1996 idgF. Bei Mietobjekten gilt das gesetzliche Bestellerprinzip (§ 17a MaklerG): Provision ist von jener Partei zu tragen, die den Makler zuerst beauftragt hat; für Wohnungssuchende fällt grundsätzlich keine Provision an.

Infrastruktur / Entfernungen

Gesundheit
Arzt <500m
Apotheke <500m
Klinik <500m
Krankenhaus <1.500m

Kinder & Schulen
Schule <500m
Kindergarten <500m
Universität <1.000m
Höhere Schule <500m

Nahversorgung
Supermarkt <500m
Bäckerei <500m
Einkaufszentrum <500m

Sonstige
Geldautomat <500m
Bank <500m
Post <500m
Polizei <1.000m

Verkehr
Bus <500m
U-Bahn <500m
Straßenbahn <500m
Bahnhof <500m
Autobahnanschluss <2.500m

Angaben Entfernung Luftlinie / Quelle: OpenStreetMap

Eckdaten Objektnr. 25489

Art: Wohnung
Land: Österreich
Baujahr: 2019
Zustand: Neuwertig
Alter: Neubau
Kaufpreis: 450.000,00
Provision: 3% des Kaufpreises zzgl. 20% USt.
Betriebskosten: 119,93 €
Heizkosten: 72,59 €
MwSt Gesamt: 24,81 €
Wohnfläche: 63,30 m²
Zimmer: 3
Bäder: 1
WC: 1
Balkone: 1
Heizwärmebedarf:  B  28,46 kWh/m²a
fGEE:  B  0,87
Immobilie merken Exposé

Ausstattung

Dielenboden, Steinboden, Fußbodenheizung, Wohnküche / offene Küche, Personenaufzug, Westbalkon, Badewanne, Kabel/Satelliten-TV, Garage, Sauna


Immobilie anfragen


Ihre persönliche Beratung

ZELLMANN IMMOBILIEN GmbH | Vertrauen. Service. Qualität.

Christian Zellmann

ZELLMANN IMMOBILIEN

T +43 699 15 15 22 00

H +43 699 15 15 22 00