Großzügige Büro- oder Praxisfläche in sehr guter Lage - U Bahn Nähe

Büro / Praxis , 1090 Wien


U6 Nußdorfer Straße - Pulverturmstraße

Beschreibung der Immobilie

Großzügige Büro- oder Praxisfläche in sehr guter Lage - U Bahn Nähe

Ärzte und Therapeuten aufgepasst: Gut geeignete Fläche in U-Bahn-Nähe (U6 Nußdorfer Straße)!



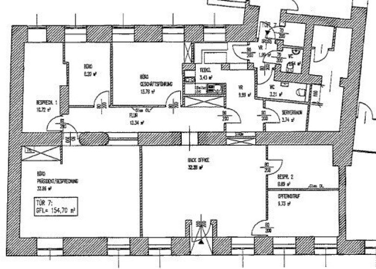
Büro- oder Praxisfläche:

-tolle Raumaufteilung - 9 Zimmer, praktische Teeküche zusätzlich. 

- lange Front zur Nußdorferstraße, ideal für eine gut sichtbare Werbefläche in den Fenstern

- zur Straßenfront große Räume, z.T. räumlich veränderbar, barrierefrei

- 2 Zimmer getrennt in einer eigenen Einheit, nicht barrierefrei, über den Gang erreichbar, ideal für Backoffice

- klimatisierter Serverraum, praktische Stauflächen bereits verbaut, großer Tresor

- getrennte Toiletten

- im Falle einer Praxisnutzung wird ein Brutto für Nettobetrag in der Höhe von 2800€ verrechnet

- Mietverhältnis auf 10 Jahre

- repräsentatives Haus



Haus:
Es handelt sich um ein schönes Stilalthaus (Eckhaus), ein moderner Lift wurde eingebaut.

Das Gebäude befindet sich in sehr gutem Zustand.



Lage:
Die Liegenschaft ist sehr zentral gelegen und für Kunden gut erreichbar.

Die U-Bahnlinie U6 ist in 3 Gehminuten erreicht, die Buslinien 35A, 37A, die Straßenbahnlinien D, 37 und 38 ebenso schnell. 

Die Geschäfte des täglichen Bedarfs, Restaurants, Kaffeehäuser und vieles mehr befinden sich in der unmittelbaren Umgebung.



Vereinbaren Sie sofort Ihren persönlichen Besichtigungstermin und verpassen Sie nicht diese herrliche Immobilie!!!



Für weitere Informationen, oder für die Vereinbarung eines Besichtigungstermines kontaktieren Sie bitte

Peter Köhler telefonisch unter 0699 - 15816228 bzw. per Email an pk@engelreal.at.



Besuchen Sie bitte engelreal.at um sich einen Überblick über uns und unsere Angebote zu verschaffen.


Wir weisen darauf hin, dass zwischen dem Vermittler und dem zu vermittelnden Dritten ein familiäres oder wirtschaftliches Naheverhältnis besteht.

Infrastruktur / Entfernungen

Gesundheit
Arzt <500m
Apotheke <500m
Klinik <500m
Krankenhaus <1.000m

Kinder & Schulen
Schule <500m
Kindergarten <500m
Universität <500m
Höhere Schule <500m

Nahversorgung
Supermarkt <500m
Bäckerei <500m
Einkaufszentrum <2.000m

Sonstige
Geldautomat <500m
Bank <500m
Post <500m
Polizei <1.000m

Verkehr
Bus <500m
U-Bahn <500m
Straßenbahn <500m
Bahnhof <500m
Autobahnanschluss <1.500m

Angaben Entfernung Luftlinie / Quelle: OpenStreetMap

Eckdaten Objektnr. 17267

Art: Büro / Praxis
Land: Österreich
Baujahr: 1902
Zustand: Gepflegt
Alter: Altbau
Kaltmiete (netto): 1.815,85 €
Kaltmiete: 2.156,48 €
Miete / m²: 10,14 €
Provision: 7.763,33 € inkl. 20% USt.
Betriebskosten: 340,63 €
MwSt Gesamt: 431,30 €
Wohnfläche: 179,00 m²
Nutzfläche: 179,00 m²
Zimmer: 9
WC: 2
Heizwärmebedarf: 227,00 kWh/m²a
Immobilie merken Exposé

Ausstattung

Parkett, Fliesen, Laminatboden, Gas, Etagenheizung, Personenaufzug, DV-Verkabelung, Teeküche


Immobilie anfragen


Ihre persönliche Beratung

engelreal immobilien gmbh

Peter Köhler

engelreal immobilien gmbh

T +43 699 1581 6228

H +43 699 1581 6228