2-Zimmer-Wohnung mit Balkon – Erstbezug in Neubauprojekt – zu mieten in 1150 Wien
Wohnung
- Etage,
1150
Wien
,
Linke Wienzeile 216
Durch die Nähe zur Längenfeldgasse (U4 und U6) ist das Objekt bestens an den öffentlichen Verkehr angebunden. Man erreicht die U-Bahn-Station in ca. 2 Minuten Gehweg. Auch die Busse 10A, 12A und 63A sind binnen wenigen Minuten zu Fuß erreichbar. Ein Spar, ein Billa, eine Bankfiliale, eine Tankstelle, einige Fitnessstudios sowie mehrere Lokale und Restaurants befinden sich in unmittelbarer Umgebung. Der Schlosspark Schönbrunn befindet sich nahe und lädt zum Entspannen und Sonne tanken im Grünen ein.
Beschreibung der Immobilie
2-Zimmer-Wohnung mit Balkon – Erstbezug in Neubauprojekt – zu mieten in 1150 Wien
In prominenter Lage an der Linken Wienzeile finden sich am Wienfluss 54 Zwei- und Dreizimmer-Wohnungen zwischen 39 und 73m². Alle Wohnungen verfügen über attraktive Außenflächen.Die Ausstattung ist modern und exklusiv.
Alle Wohnungen sind mit Eichenparkettböden und Feinsteinzeug Fliesen im Format 30x60, die Außenflächen mit Betonsteinplatten im Kiesbett, ausgestattet. Die Fenster- und Fenstertüren sind 3fach Isolierverglast und verfügen je nach Lage, über Außen- oder Innenjalousien. Eine Fußbodenheizung- und Kühlung sorgt je nach Jahreszeit für eine angenehme Temperatur.
Im Erdgeschoß befinden sich zwei Fahrradräume, ein Kinderwagenabstellplatz sowie ein Spielraum. Alle Wohnungen verfügen zusätzlich über einen Einlagerungsraum im Kellergeschoß.
Eckdaten Objektnr. 109258398
| Art: | Wohnung - Etage |
| Land: | Österreich |
| Baujahr: | 2026 |
| Zustand: | Erstbezug |
| Gesamtmiete: | 1.239,00 € |
| Kaltmiete (netto): | 963,67 € |
| Betriebskosten: | 162,69 € |
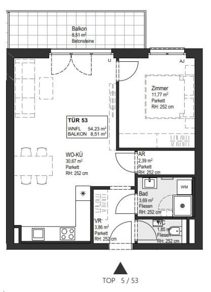
| Wohnfläche: | 54,23 m² |
| Zimmer: | 2 |
| Bäder: | 1 |
| WC: | 1 |
| Balkone: | 1 |
Ausstattung
Fliesen, Parkett, Fußbodenheizung, Einbauküche, Westbalkon, Dusche
Ihre persönliche Beratung
Dieser Makler ist ein offizielles Mitglied des IR – ir.at Mehr Erfahren
