Maisonette mit 2 Balkonen & sonniger Terrasse in Unterpremstätten + Parkplatz

Wohnung - Maisonette, 8141 Premstätten


Die Wohnung befindet sich in ruhiger, grüner Lage in Unterpremstätten – nur wenige Minuten von Graz entfernt. Einkaufsmöglichkeiten, Schulen, Ärzte und öffentliche Verkehrsmittel sind schnell erreichbar. Durch die Nähe zur Autobahnauffahrt sowie den Bahnhof Premstätten ist eine optimale Verkehrsanbindung gegeben – sowohl für Pendler als auch für Familien ideal.

Beschreibung der Immobilie

Maisonette mit 2 Balkonen & sonniger Terrasse in Unterpremstätten + Parkplatz

Willkommen in dieser charmanten Maisonettewohnung, die modernes Wohnen mit Urlaubsflair verbindet. Auf zwei Etagen bietet sie viel Licht, Freiraum und angenehmen Wohnkomfort.



Zwei großzügige Balkone sowie eine sonnige Terrasse laden grundsätzlich zum Entspannen ein – ob beim ersten Kaffee am Morgen oder beim Sonnenuntergang am Abend. Die Terrasse eignet sich ideal zum Grillen, Gärtnern oder einfach zum Abschalten vom Alltag.



Die Wohnung liegt in einer ruhigen Wohngegend in Unterpremstätten, nur wenige Minuten von Graz entfernt. Naturnah und doch stadtnah – ideal für alle, die beides schätzen.



Highlights:



• Wohnen auf zwei Ebenen mit eingebauter Küche

• 2 große Balkone mit viel Sonne

• Sonnige Terrasse – ideal zum Grillen und Entspannen

• Helle Räume mit angenehmem Wohngefühl

• Ruhige Lage mit guter Anbindung nach Graz

• 1 zugeordneter PKW-Abstellplatz

• 1 großer Kellerersatzraum im EG

• Besucherparkplätze vor dem Haus



Hinweis:
Bei der Wohnanlage ist eine Sanierung der Balkone geplant. Während der Bauphase kann es daher vorübergehend zu Einschränkungen bei der Nutzung bzw. beim Zugang zu den Balkonen kommen.



Mietzins: 890€



Hauptmietzins: 602,77€



Betriebskosten: 187,73 inkl. 10% Ust.



Heizkosten: 99,50€ inkl. 20% Ust.



Monatliche Gesamtbelastung: 890€



Interesse geweckt?



Gerne sende ich Ihnen weitere Informationen oder vereinbare einen Besichtigungstermin.



Ich freue mich auf Ihre Anfrage!



Franz Trappel - 06645830680

Noch nichts gefunden? Wir informieren Sie über geeignete Immobilienangebote noch vor allen anderen.
Legen Sie jetzt Ihren individuellen Suchagenten unter folgendem Link an. Wir schicken Ihnen passende Immobilien exklusiv vorab zu.

Suchagent anlegen - https://tpi-traumplatz-immobilien.service.immo/registrieren/de


Der Immobilienmakler erklärt, dass er – entgegen dem in der Immobilienwirtschaft üblichen Geschäftsgebrauch des Doppelmaklers – einseitig nur für den Vermieter tätig ist.

Infrastruktur / Entfernungen

Gesundheit
Arzt <1.500m
Apotheke <1.500m
Klinik <9.000m
Krankenhaus <6.000m

Kinder & Schulen
Schule <1.500m
Kindergarten <1.000m
Universität <9.000m
Höhere Schule <9.500m

Nahversorgung
Supermarkt <500m
Bäckerei <2.000m
Einkaufszentrum <3.500m

Sonstige
Bank <1.500m
Geldautomat <1.500m
Polizei <2.000m
Post <1.500m

Verkehr
Bus <500m
Straßenbahn <5.500m
Autobahnanschluss <1.000m
Bahnhof <1.500m
Flughafen <3.500m

Angaben Entfernung Luftlinie / Quelle: OpenStreetMap

Eckdaten Objektnr. 1728/153

Art: Wohnung - Maisonette
Land: Österreich
Baujahr: 1994
Zustand: Gepflegt
Alter: Neubau
Gesamtmiete: 890,00
Kaltmiete (netto): 602,77 €
Kaltmiete: 773,43 €
Provision: Gemäß Erstauftraggeberprinzip bezahlt der Abgeber die Provision.
Betriebskosten: 170,66 €
Heizkosten: 82,92 €
MwSt Gesamt: 33,65 €
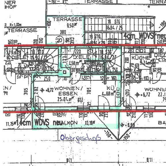
Wohnfläche: 69,00 m²
Zimmer: 3
Bäder: 1
WC: 1
Balkone: 2
Terrassen: 1
Stellplätze: 1
Keller: 5,00 m²
Heizwärmebedarf:  C  68,30 kWh/m²a
fGEE:  C  1,07
Immobilie merken Exposé

Ausstattung

Fliesen, Laminatboden, Gas, Zentralheizung, Einbauküche, Wohnküche / offene Küche, Bad mit Fenster, Badewanne, Kabel/Satelliten-TV, Parkplatz


Immobilie anfragen


Ihre persönliche Beratung

TPI Traumplatz Immobilien GmbH

Franz Trappel

TPI Traumplatz Immobilien GmbH

T +43 664 583 06 80