Atriumreihenhaus mit Wow-Effekt – ein Zuhause zum Ankommen & Wohlfühlen

Haus - Reihenendhaus, 1230 Wien


Beschreibung der Immobilie

Atriumreihenhaus mit Wow-Effekt – ein Zuhause zum Ankommen & Wohlfühlen

Ein Zuhause für Menschen, die das Besondere suchen !



Zum Verkauf steht dieses außergewöhnliche Atriumreihenhaus mit rund 130 m² Wohnfläche und zwei Terrassen. Das Reihenhaus ist Teil einer exklusiven Wohnanlage mit 42 Einheiten, die 1999 vom renommierten Architekten Walter Stelzhammer konzipiert und von BUWOG errichtet wurde und sich in einer ruhigen Privatstraße befindet.



Das durchdachte Architekturkonzept richtet sich ideal an Familien oder Paare mit einem hohen Anspruch an Design, Licht und großzügige Außenflächen.



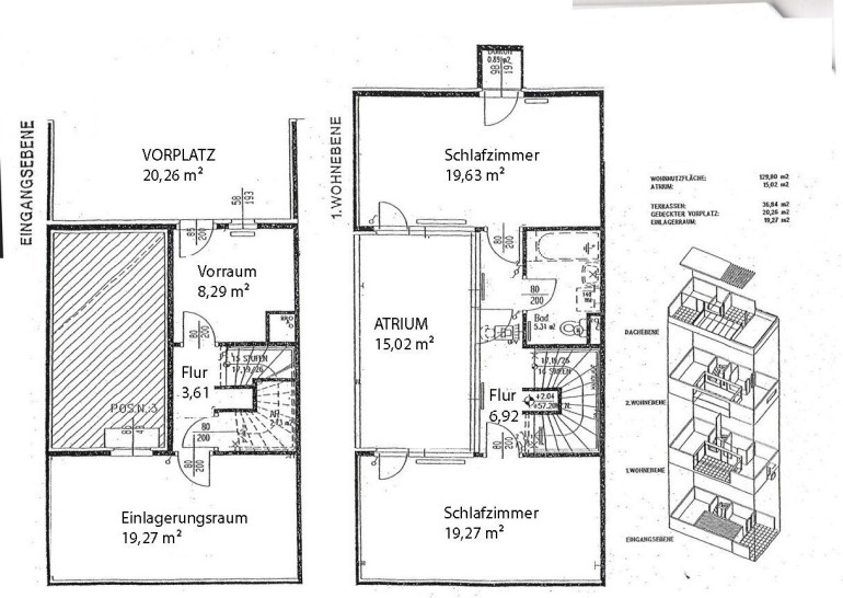
Das absolute Highlight dieser Immobilie ist das verglaste Atrium im Zentrum des Hauses. Es sorgt für eine beeindruckende Lichtstimmung und eröffnet vielfältige Nutzungsmöglichkeiten – ob als grüner Garten, stilvolle Terrasse oder private Ruheoase. Das Atrium ist überdacht, teilweise zu öffnen und zusätzlich mit einer Markise für den Sommer ausgestattet.



Das Haus wurde von den Eigentümern laufend instand gehalten und modernisiert und präsentiert sich in einem sehr gepflegten Zustand. In puncto Ausstattung bleiben hier keine Wünsche offen:



  • Hochwertiger Eichenparkettboden
  • Maßgefertigte Einbauschränke in Nischen auf jeder Etage bieten praktischen Stauraum
  • 2021 Einbau einer hochwertigen DAN-Küche mit Markengeräten von Bauknecht
  • Terrassenmodernisierung 2018: Verlegung von Holz-Terrassendielen, neue Pflanzentröge und eine Markise auf der kleinen Terrasse für optimalen Sonnenschutz
  • Zusätzliche Beschattungsmöglichkeit über das Atriumdach
  • Außenfenster mit Rollläden, Innenfenster mit Jalousien
  • Alle Fenster mit Insektenschutzgittern ausgestattet
  • Sicherheitstür (Widerstandsklasse RC2)
  • Vorbereitung für eine E-Ladestation am Vorplatz vorhanden


Raumaufteilung auf einen Blick



Erdgeschoss



  • Überdachter Vorplatz mit Parkmöglichkeit direkt vor der Wohnungstür
  • Großzügiger Vorraum
  • Zusätzlicher Abstellraum mit ca. 2 m²
  • Ca. 19 m² Einlagerungs- bzw. Kellerraum mit viel Platz für Stauraum, Hobby oder Vorräte


1. Wohnebene



  • Zwei großzügige Schlafzimmer mit jeweils ca. 19 m²
  • Badezimmer in unmittelbarer Nähe zu den Schlafräumen


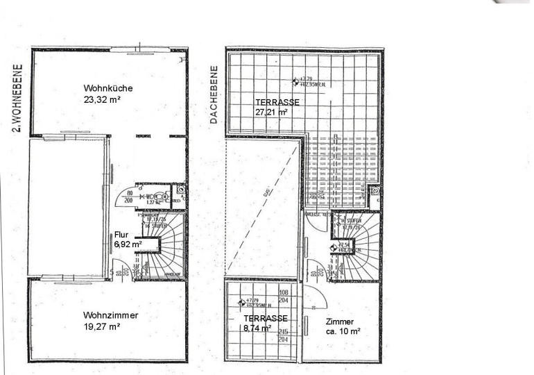
2. Wohnebene



  • Helle Wohnküche mit viel Platz 
  • Separates Wohnzimmer
  • Gäste-Toilette


Dachebene



  • Drittes Schlafzimmer mit flexibler Nutzung, ideal auch als Galerie oder Homeoffice
  • Zwei Terrassen 


Die gepflegte Wohnanlage verfügt über einen kleinen Spielplatz mit Rutsche, Sandkasten und Wippe. Zudem befindet sich im hinteren Bereich eine kleine Wiese, die Kindern viel Platz zum Spielen und Austoben bietet und sich auch ideal für Kindergeburtstage eignet.



Die Hausgemeinschaft ist ausgesprochen harmonisch – ein rücksichtsvolles und freundliches Miteinander wird hier großgeschrieben. Zweimal jährlich organisiert die Hausverwaltung gemeinsame Feste, die das nachbarschaftliche Zusammenleben zusätzlich stärken und fördern.



Umgebung & Anbindung



Die Immobilie besticht durch ihre attraktive und familienfreundliche Lage. Zahlreiche Einkaufsmöglichkeiten für den täglichen Bedarf – darunter BILLA Plus, Hofer, DM, Eurospar, Bipa, Libro, Apotheken und Bäckereien – sind entlang der Breitenfurter Straße und Gatterederstraße bequem fußläufig erreichbar.



Eine sehr gute öffentliche Anbindung ist durch mehrere Buslinien (u. a. 60A, 62A, 64A, 66A, 58A) gegeben. Die U6-Station Alt Erlaa ist in rund 8 Minuten erreichbar, die U4-Station Hietzing in etwa 15 Minuten. Zusätzlich bietet die nahegelegene S-Bahn-Station Atzgersdorf-Mauer eine schnelle Verbindung zum Hauptbahnhof (ca. 12 Minuten). Damit ist eine rasche Anbindung an die Innenstadt und umliegende Bezirke gewährleistet.



Die Umgebung bietet ein vielfältiges Bildungsangebot mit mehreren Volks- und Mittelschulen, dem Gymnasium Anton-Krieger-Gasse sowie dem Bildungscampus Atzgersdorf mit Ganztagsschule und Kindergarten. Weitere Kindergärten befinden sich in der Steinerstraße, Canavesegasse und am Kirchenplatz.



Auch das Freizeitangebot ist hervorragend: Der Stadtpark Atzgersdorf und der Liesingbachweg sind in rund 10 Gehminuten erreichbar. Der Liesingbachweg lädt zu Spaziergängen und Radtouren Richtung Rodaun, Liesing oder Oberlaa ein und ist bestens an das Wiener Radwegenetz angebunden.



Nur etwa 10 Minuten entfernt befindet sich zudem die 2024 eröffnete Fabrik 1230 – ein modernes Grätzlzentrum mit Ärzten, Fitnesscenter, Kletterwand und Veranstaltungshalle, das zahlreiche Freizeit- und Kulturmöglichkeiten bietet.



Ein besonderes Freizeitplus bietet das nahegelegene Höpflerbad, das in den Sommermonaten für Erholung und Abkühlung sorgt.



Lassen Sie sich bei einer persönlichen Besichtigung von diesem einzigartigen Zuhause begeistern. Wir freuen uns auf Ihre Anfrage!




Wir weisen darauf hin, dass zwischen dem Vermittler und dem zu vermittelnden Dritten ein familiäres oder wirtschaftliches Naheverhältnis besteht.


Der Vermittler ist als Doppelmakler tätig.

Infrastruktur / Entfernungen

Gesundheit
Arzt <1.000m
Apotheke <500m
Klinik <500m
Krankenhaus <2.000m

Kinder & Schulen
Schule <500m
Kindergarten <500m
Universität <5.000m
Höhere Schule <4.500m

Nahversorgung
Supermarkt <500m
Bäckerei <500m
Einkaufszentrum <2.000m

Sonstige
Geldautomat <500m
Bank <500m
Post <2.000m
Polizei <1.500m

Verkehr
Bus <500m
U-Bahn <2.000m
Straßenbahn <2.000m
Bahnhof <1.000m
Autobahnanschluss <2.500m

Angaben Entfernung Luftlinie / Quelle: OpenStreetMap

Eckdaten Objektnr. 1575/1120

Art: Haus - Reihenendhaus
Land: Österreich
Baujahr: 1999
Zustand: Gepflegt
Alter: Neubau
Kaufpreis: 698.000,00
Provision: 3% des Kaufpreises zzgl. 20% USt.
Betriebskosten: 153,25 €
MwSt Gesamt: 16,59 €
Wohnfläche: 129,88 m²
Zimmer: 5
Bäder: 1
WC: 2
Terrassen: 2
Stellplätze: 1
Heizwärmebedarf:  C  70,80 kWh/m²a
fGEE:  C  1,22
Immobilie merken Exposé

Ausstattung

Fliesen, Parkett, Fernwärme, Einbauküche, Badewanne


Immobilie anfragen


Ihre persönliche Beratung

Pia Estate GmbH

Pia Schelling

Pia Estate GmbH

T +43 660 508 36 35

H +43 660 508 36 35