Schöne Wohnung mit Variante 3 oder 4 Zimmer mit Terrasse und Balkon

Wohnung , 5300 Esch


Hallwang / Esch

Beschreibung der Immobilie

Schöne Wohnung mit Variante 3 oder 4 Zimmer mit Terrasse und Balkon

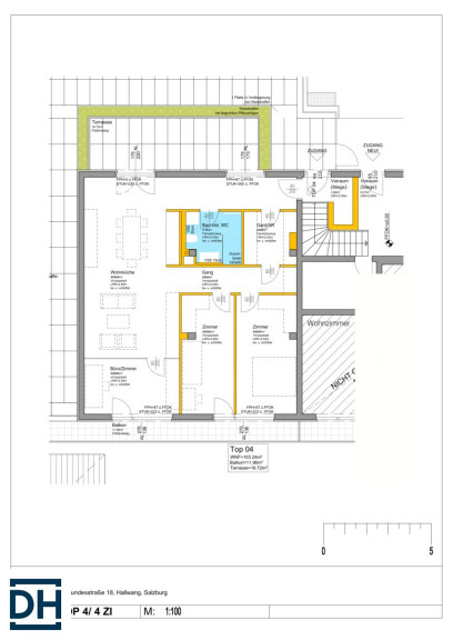
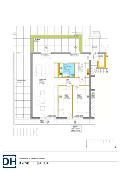
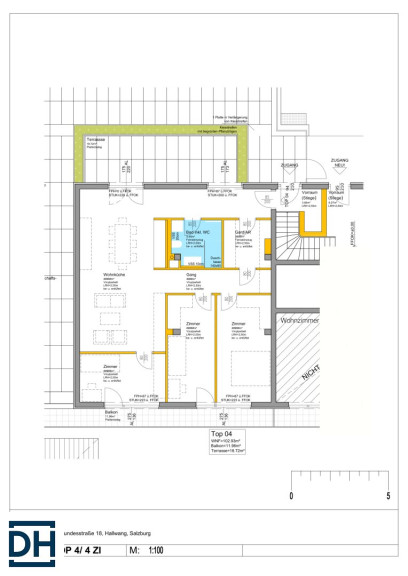
Diese bereits renovierte Wohnung  besteht derzeit aus einem großen Raum mit Küche und Bad. Die Wohnung wird nach Vereinbarung je nach Wunsch des zukünftigen Mieters  auf eine 3 oder 4 Zi. Wohnung umgebaut (  3  Varianten möglich siehe Grundriss-Varianten)  Dauer Umbau bis zu 3 Monaten.  Besonders attraktiv sind die beiden Außenflächen: Eine schöne Terrasse zum ruhigen Innenhof lädt zum Entspannen ein, zusätzlich steht ein Balkon zur Verfügung.



Vor dem Haus befinden sich allgemeine Parkplätze, zudem besteht die Möglichkeit, eine Garage gegen € 65,-/Monat anzumieten.



Details:
- Moderne Wohnung in Ausführung 3 oder 4 Zimmer innerhalb 3 Monaten verfügbar
- ca.103 m² Wfl.

- Balkon 11,96 m² 

- Terrasse 18,72 m² 

- Bad mit Dusche und WC

- offene Küchenzeile

- Mietpreis inkl. BK € 1.950,00,- (inkl. BK und Heizkosten á Konto)



- Kaution 3 BMM 




Für genauere Informationen und Details schicken wir Ihnen gerne ein Exposé.





Irrtum und Änderungen vorbehalten!


Alle Angaben sind ohne Gewähr und basieren ausschließlich auf Informationen, die uns von unserem Auftraggeber bzw. Kooperationspartner übermittelt wurden. 


Wir übernehmen keine Gewähr für die Vollständigkeit, Richtigkeit und Aktualität dieser Angaben. Zwischenverkauf bleibt vorbehalten.


Noch nichts gefunden? Wir informieren Sie über geeignete Immobilienangebote noch vor allen anderen.
Legen Sie jetzt Ihren individuellen Suchagenten unter folgendem Link an. Wir schicken Ihnen passende Immobilien exklusiv vorab zu.

Suchagent anlegen - https://d-h.service.immo/registrieren/de


Der Immobilienmakler erklärt, dass er – entgegen dem in der Immobilienwirtschaft üblichen Geschäftsgebrauch des Doppelmaklers – einseitig nur für den Vermieter tätig ist.

Infrastruktur / Entfernungen

Gesundheit
Arzt <500m
Apotheke <500m
Klinik <4.000m
Krankenhaus <4.500m

Kinder & Schulen
Schule <1.000m
Kindergarten <500m
Universität <4.000m
Höhere Schule <3.000m

Nahversorgung
Supermarkt <500m
Bäckerei <1.500m
Einkaufszentrum <3.500m

Sonstige
Bank <500m
Geldautomat <500m
Post <500m
Polizei <2.500m

Verkehr
Bus <500m
Bahnhof <2.000m
Autobahnanschluss <1.500m
Flughafen <8.000m

Angaben Entfernung Luftlinie / Quelle: OpenStreetMap

Eckdaten Objektnr. 6738/148

Art: Wohnung
Land: Österreich
Zustand: Voll_saniert
Gesamtmiete: 2.150,00
Kaltmiete (netto): 1.685,25 €
Kaltmiete: 1.981,47 €
Provision: Gemäß Erstauftraggeberprinzip bezahlt der Abgeber die Provision.
Betriebskosten: 296,22 €
MwSt Gesamt: 168,53 €
Wohnfläche: 103,00 m²
Zimmer: 4
Bäder: 1
Balkone: 1
Terrassen: 1
Heizwärmebedarf:  C  96,00 kWh/m²a
fGEE: 1,22
Immobilie merken Exposé

Ausstattung

Laminatboden, Gas, Solarenergie, Zentralheizung, Wohnküche / offene Küche, Dusche, Garage, Parkplatz


Immobilie anfragen


Ihre persönliche Beratung

D&H GmbH Immobilien

Alfred Hofer

D&H GmbH

T +43 676 82544808

H 004367682544808