Schnell zugreifen: Wohnbaugeförderte Familienwohnung W 12 inkl. 1 TG-Abstellplatz

Wohnung - Etage, 6425 Haiming


Das Kaufobjekt befindet sich in einer idyllischen Wohnlage im Herzen der Tiroler Alpen. Diese ruhige und naturnahe Umgebung ist ideal für Familien und Naturliebhaber. Spaß und Erholung findet man z.B. im Haiminger Schwimmbad oder auf vielen schönen Waldwegen und das nahegelegene Ötztal-Bahnhof bietet actionreiche Abwechslung mit der Area47. Mit guter Anbindung an lokale Geschäfte, Schulen und Freizeiteinrichtungen vereint dieser Standort Komfort und Lebensqualität auf perfekte Weise. Auch die Nähe zu größeren Städten wie Imst oder Innsbruck sorgt für zusätzliche Flexibilität im Alltag und macht den Standort besonders attraktiv.

Beschreibung der Immobilie

Schnell zugreifen: Wohnbaugeförderte Familienwohnung W 12 inkl. 1 TG-Abstellplatz

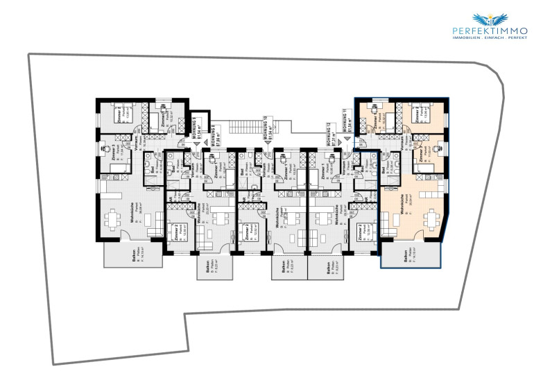
WOHNUNG W 12: 4-Zimmer-Wohnung mit Balkon



In attraktiver Lage von Haiming entsteht ein modernes Wohnprojekt mit durchdacht geplanten Eigentumswohnungen. Die hier angebotene Wohnung W12 befindet sich im Obergeschoß und überzeugt durch eine großzügige Raumaufteilung, helle Wohnbereiche und einen attraktiven Balkon. Der Baubeginn ist voraussichtlich für Sommer 2026 geplant, die Bauzeit beträgt etwa ein Jahr. Damit bietet sich die Möglichkeit, frühzeitig in ein hochwertiges Neubauprojekt zu investieren und sich eine moderne Wohnung in einer beliebten Wohnlage zu sichern.



Die 4-Zimmer-Wohnung verfügt über eine Wohnfläche von rund 87,31 m² und eignet sich ideal für Familien, Paare mit Platzbedarf oder auch für Personen, die Wohnen und Arbeiten unter einem Dach verbinden möchten. Das Herzstück der Wohnung bildet die großzügige Wohnküche mit einer Fläche von etwa 35,54 m². Durch ihre offene Gestaltung entsteht ein moderner Lebensmittelpunkt, der ausreichend Platz für Kochen, Essen und gemütliches Beisammensein bietet. Große Fensterflächen sorgen für eine angenehme Lichtdurchflutung und schaffen eine freundliche Wohnatmosphäre.



Von hier aus gelangt man direkt auf den rund 14,10 m² großen Balkon, der zusätzlichen Wohnraum im Freien bietet. Ob beim Frühstück an der frischen Luft, beim Entspannen nach einem langen Arbeitstag oder beim gemütlichen Zusammensitzen mit Familie und Freunden – der Balkon erweitert den Wohnbereich und bietet eine angenehme Möglichkeit, Zeit im Freien zu verbringen.



Der Eingangsbereich der Wohnung wird durch einen geräumigen Vorraum mit rund 10,38 m² gebildet, der ausreichend Platz für Garderobe und Stauraum bietet und einen angenehmen Empfangsbereich schafft. Von hier aus sind sämtliche Räume zentral erschlossen, wodurch eine praktische und funktionale Wohnstruktur entsteht.



Die Wohnung verfügt über drei separate Zimmer, die vielseitig genutzt werden können. Mit einer Größe von etwa 10,32 m², 13,96 m² und 11,03 m² eignen sich diese ideal als Schlafzimmer, Kinderzimmer, Gästezimmer oder Homeoffice. Die durchdachte Raumaufteilung ermöglicht eine flexible Nutzung und passt sich unterschiedlichen Lebenssituationen optimal an.



Das Badezimmer ist großzügig dimensioniert und als Bad mit WC ausgeführt. Die kompakte und zugleich funktionale Planung bietet ausreichend Platz für eine moderne Badezimmereinrichtung und sorgt für Komfort im Alltag.



Zur Wohnung gehört außerdem ein eigenes Lagerabteil, das zusätzlichen Stauraum für persönliche Gegenstände, Sportequipment oder Haushaltsutensilien bietet. Ein Tiefgaragenplatz ist ebenfalls im Angebot enthalten und sorgt für komfortables und wettergeschütztes Parken direkt im Gebäude.



Das geplante Wohnprojekt überzeugt nicht nur durch moderne Architektur und durchdachte Grundrisse, sondern auch durch seine attraktive Lage in Haiming. Die Gemeinde gilt als lebenswerter Wohnort mit guter Infrastruktur, kurzen Wegen und einer angenehmen Mischung aus ländlicher Ruhe und guter Erreichbarkeit umliegender Orte. Einkaufsmöglichkeiten, Bildungseinrichtungen sowie Freizeitangebote befinden sich in der Umgebung und sind rasch erreichbar.



Ein besonderer Vorteil dieses Projekts besteht zudem in der Möglichkeit, die Wohnbauförderung in Anspruch zu nehmen. Käufer haben die Wahl, diese entweder in Form eines Darlehens oder als einmaligen Scheck zu nutzen, wodurch sich zusätzliche finanzielle Gestaltungsmöglichkeiten beim Wohnungskauf ergeben können.



Diese Wohnung bietet eine ideale Kombination aus moderner Architektur, durchdachter Raumplanung und attraktiver Wohnlage. Dank der großzügigen Wohnküche, der drei zusätzlichen Zimmer sowie des Balkons entsteht ein komfortables Zuhause mit viel Platz für individuelle Wohnbedürfnisse. Gleichzeitig stellt die Wohnung auch eine interessante Investitionsmöglichkeit dar, da Neubauwohnungen in dieser Lage langfristig sehr gefragt sind.



Gerne informieren wir Sie persönlich über weitere Details zum Projekt, zu den verfügbaren Einheiten sowie zu den Möglichkeiten der Wohnbauförderung. Vereinbaren Sie einen Beratungstermin und sichern Sie sich frühzeitig Ihre Eigentumswohnung in diesem attraktiven Neubauprojekt in Haiming.





ECKDATEN:



Stockwerk: Obergeschoß



Zimmer: 4



Wohnfläche: 87,31 m²



Balkonfläche: 14,10 m²



Lager: 1 inkl.



TG-Platz: 1 inkl.





RAUMAUFTEILUNG:



Vorraum: 10,38 m²



Zimmer 1: 10,32 m²



Zimmer 2: 13,96 m²



Zimmer 3: 11,03 m²



Wohnküche: 35,54 m²



Bad/WC: 6,08 m²





KAUFPREIS:



Kaufpreis: € 414.120,00



abzüglich Wohnbauförderung: - € 170.254,50



----------------------------------------------------



Restbetrag: € 243.865,50





Haben wir Ihr Interesse geweckt? Dann zögern Sie nicht und vereinbaren Sie noch heute einen Besichtigungstermin. Lassen Sie sich von der außergewöhnlichen Qualität dieses Neubaus überzeugen und finden Sie Ihr neues Zuhause in Haiming!





IHRE ANSPRECHPARTNERIN:



Frau Barbara Lechleitner

geprüfte Immobilienmaklerin

Mobil: +43 650 9805332

E-Mail: b.lechleitner@perfektimmo.at

www.perfektimmo.at




NEBENKOSTEN:



Maklerhonorar: 3,6 % inkl. USt

Vertragserrichtungskosten: ca. 2 % netto zzgl. USt zzgl. Barauslagen

Grunderwerbsteuer: 3,5 %

Grundbuchseintragung: 1,1 % - Unter Umständen könnte hier eine Befreiung gemäß dem Beschluss der Österreichischen Bundesregierung für die Eintragung des Eigentumsrechts sowie die Eintragung einer eventuellen Pfandurkunde möglich sein.




Alle Angaben nach bestem Wissen. Irrtum und Zwischenverkauf vorbehalten. Dieses Exposé ist eine Vorinformation, als Rechtsgrundlage gilt alleine der abgeschlossene Kaufvertrag. §15 der Maklerverordnung gilt als vereinbart.



Weitere tolle Angebote finden Sie unter: https://www.perfektimmo.at/angebote


Wir weisen darauf hin, dass zwischen dem Vermittler und dem zu vermittelnden Dritten ein familiäres oder wirtschaftliches Naheverhältnis besteht.


Der Vermittler ist als Doppelmakler tätig.

Infrastruktur / Entfernungen

Gesundheit
Arzt <500m
Apotheke <500m

Kinder & Schulen
Schule <500m
Kindergarten <500m
Höhere Schule <8.500m

Nahversorgung
Supermarkt <500m
Bäckerei <500m

Sonstige
Bank <500m
Geldautomat <4.000m
Post <500m
Polizei <4.000m

Verkehr
Bus <500m
Bahnhof <1.000m
Autobahnanschluss <1.500m

Angaben Entfernung Luftlinie / Quelle: OpenStreetMap

Eckdaten Objektnr. 6566/2464

Art: Wohnung - Etage
Land: Österreich
Baujahr: 2026
Zustand: Projektiert
Alter: Neubau
Kaufpreis: 414.120,00
Provision: 3% des Kaufpreises zzgl. 20% USt.
Wohnfläche: 87,31 m²
Zimmer: 4
Bäder: 1
WC: 1
Balkone: 1
Stellplätze: 1
Heizwärmebedarf:  B  43,80 kWh/m²a
fGEE:  A  0,71
Immobilie merken Exposé

Ausstattung

Fliesen, Parkett, Fußbodenheizung, Personenaufzug, Westbalkon, Dusche, Tiefgarage


Immobilie anfragen


Ihre persönliche Beratung

PERFEKT IMMO GmbH

Barbara Lechleitner

PERFEKT IMMO GmbH

T ​+43 650 9805332

H ​+43 650 9805332