3 Zimmer im neu ausgebauten Dachgeschoß, großer gartenseitiger Balkon, Grünblick - zu mieten 1130 Wien
Wohnung
- Dachgeschoß,
1130
Wien
,
Auhofstraße 258
Der Standort der Liegenschaft in der Auhofstraße 258 besticht durch seine attraktive Lage in Hietzing. Die Villa liegt in einer ruhigen Sackgasse neben dem Naturschutzgebiet Lainzer Tiergarten und ist gleichzeitig optimal an das Verkehrsnetz angebunden. Auf einzigartige Weise vereint die Umgebung mehrere Vorzüge wie Freizeit, Natur, Nahversorgung, Parkmöglichkeiten sowie optimale Verkehrsanbindung. In unmittelbarer Nähe finden Sie das Auhofcenter mit zahlreichen Geschäften, Gastronomie und Entertainment. Das St. Josef Spital sowie diverse Schulen ergänzen das infrastrukturelle Angebot. Die öffentliche Anbindung ist durch den fußläufig erreichbaren Bahnhof Hütteldorf gegeben. Der Wiental-Radweg führt direkt an der Liegenschaft vorbei, hier gelangen Sie in ca. 12 km zum Stephansplatz.
Beschreibung der Immobilie
3 Zimmer im neu ausgebauten Dachgeschoß, großer gartenseitiger Balkon, Grünblick - zu mieten 1130 Wien
Villa AuhofEleganter Dachausbau mit 3 Zimmern, Balkon mit Grünblick
Im Westen von Wien, umgeben von der Natur des Lainzer Tiergartens, bietet die Villa Auhof ein geschmackvolles Zuhause.
In der exklusiven Villa trifft historischer Charme der Jahrhundertwende auf modernen Wohnkomfort.
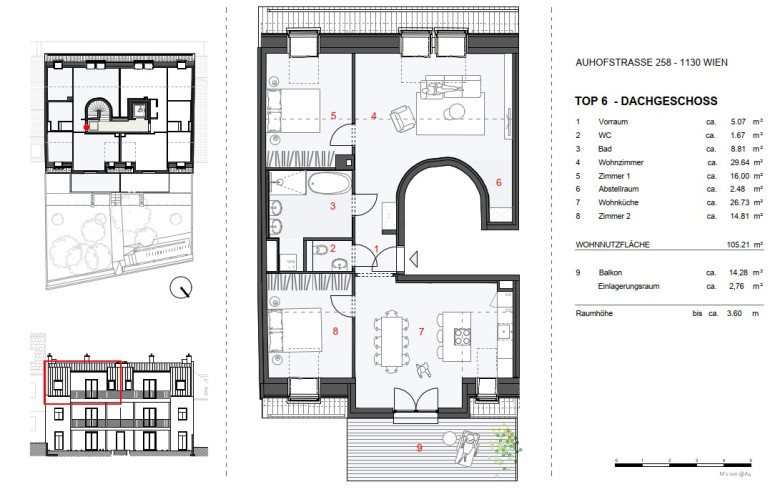
Im neu errichteten Dachgeschoß liegt diese exklusive 3-Zimmer-Wohnung mit zeitgenössisch-hellem Raumkonzept und sensationeller Raumhöhe von 3,6 Meter. Auf einer Wohnfläche von ca. 105 m² finden Sie alle Annehmlichkeiten wie die große Wohnküche mit Balkon, ein Wohnraum, 2 Schlafzimmer, ein Abstellraum, großes Bad mit freistehender Wanne und bodenebener Dusche sowie das Extra-WC. Der gartenseitige, 14 m² Balkon lädt zum Verweilen ein und bietet einen wunderschönen Fern- und Grünblick.
Die Highlights sind die Raumhöhen von ca. 3,6 m, das große Bad mit frei stehender Badewanne, Klimaanlage sowie der gartenseitige Balkon mit Grünblick.
Weitere Pluspunkte sind die ausgezeichnete Infrastruktur und die gute öffentliche Anbindung.
Eckdaten Objektnr. 109261305_12
| Art: | Wohnung - Dachgeschoß |
| Land: | Österreich |
| Baujahr: | 2024 |
| Zustand: | Erstbezug |
| Gesamtmiete: | 2.870,13 € |
| Kaltmiete (netto): | 2.314,62 € |
| Provision: | provisionsfrei für den Mieter |
| Betriebskosten: | 294,59 € |
| Wohnfläche: | 105,21 m² |
| Zimmer: | 3 |
| Bäder: | 1 |
| WC: | 1 |
| Balkone: | 1 |
Ausstattung
Parkett, Fußbodenheizung, Westbalkon, Badewanne, Dusche
Ihre persönliche Beratung
Dieser Makler ist ein offizielles Mitglied des IR – ir.at Mehr Erfahren
