FAMILIENNEST mit GARTEN - *gefördert*4ZI - Reihenhaus mit viel Stauraum und 2Stellplätzen!

Haus - Reihenhaus, 3500 Imbach


Imbach in der Marktgemeinde Senftenberg Eine touristisch erschlossene Gemeinde mit viel Sportmöglichkeiten, Heurigen und dem NUHR Gesundheitszentrum Kindergarten und Volksschule Busverbindung nach Krems ca.15min

Beschreibung der Immobilie

FAMILIENNEST mit GARTEN - *gefördert*4ZI - Reihenhaus mit viel Stauraum und 2Stellplätzen!

Charmantes Familiennest mit Garten – Ihr neues Zuhause zum Wohlfühlen!



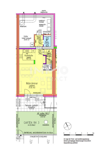
Willkommen in Ihrem neuen Zuhause! Dieses liebevoll gestaltete 4-Zimmer-Reihenhaus bietet mit rund 108,91 m² Wohnnutzfläche ausreichend Raum für Familie, Freunde und gemeinsames Leben.



Im Erdgeschoss erwartet Sie ein großzügiger, lichtdurchfluteter Wohn- und Essbereich mit direktem Zugang zur gedeckten Terrasse – perfekt für gemütliche Familienabende oder entspannte Stunden im Freien. Ein praktischer Außenabstellraum sorgt für zusätzlichen Stauraum.



Der 28 m² große Eigengarten lädt Kinder zum Spielen und Erwachsene zum Entspannen ein – ein echtes Highlight für alle, die Natur und Privatsphäre schätzen.



Im Obergeschoss befinden sich 3 behagliche Schlafräume, die genügend Rückzugsmöglichkeiten für Groß und Klein bieten. Die durchdachte Raumaufteilung schafft ein harmonisches Wohngefühl und lässt keine Wünsche offen.



Highlights auf einen Blick:



ca. 108,91 m² Wohnnutzfläche

4 großzügige Zimmer

Wannen/Duschbad, 2WCs

Schlafzimmer mit Schrankraum

überdachte Terrasse mit Außenabstellraum

22m² Eigengarten und 6m² Vorgarten

familienfreundliche Lage

modernes, gemütliches Ambiente

Technikraum mit Kondenstrockner, Stauraum für Waschmaschine und Co

Wärmepumpe mit Wohnraumbelüftung, Photovoltaik

2Parkplätze



Gesamteingenmittel € 199.801,43



Monatliche Kosten:

WBF Darlehen 31J.Laufz. € 199.801,43 - € 277,26

BK, Instandhaltung, Verwaltung € 264,93

---------------------------------------------------------------

monatlicher Gesamtaufwand: € 542,19





Dieses Reihenhaus vereint Wohnkomfort, Funktionalität und Charme – ideal für Familien, die ein Zuhause mit Herz suchen.

Wir weisen darauf hin, dass zwischen dem Vermittler und dem zu vermittelnden Dritten ein familiäres oder wirtschaftliches Naheverhältnis besteht.


Der Vermittler ist als Doppelmakler tätig.

Infrastruktur / Entfernungen

Gesundheit
Arzt <1.500m
Apotheke <3.500m
Klinik <3.500m
Krankenhaus <4.000m

Kinder & Schulen
Schule <1.500m
Kindergarten <1.500m
Universität <3.500m
Höhere Schule <3.500m

Nahversorgung
Supermarkt <2.000m
Bäckerei <2.500m
Einkaufszentrum <4.000m

Sonstige
Geldautomat <2.500m
Bank <2.500m
Post <2.000m
Polizei <3.500m

Verkehr
Bus <500m
Bahnhof <3.500m
Autobahnanschluss <4.000m
Flughafen <4.000m

Angaben Entfernung Luftlinie / Quelle: OpenStreetMap

Eckdaten Objektnr. 1939/132798

Art: Haus - Reihenhaus
Land: Österreich
Kaufpreis: 393.874,76
Provision: Provision bezahlt der Abgeber.
Wohnfläche: 108,91 m²
Zimmer: 4
Bäder: 1
WC: 2
Terrassen: 1
Stellplätze: 2
Garten: 28,00 m²
Keller: 20,89 m²
Heizwärmebedarf: 24,50 kWh/m²a
fGEE: 0,48
Immobilie merken Exposé

Ausstattung

Fliesen, Laminatboden, Solarenergie, Fußbodenheizung, Wasch/Trockenraum


Immobilie anfragen


Ihre persönliche Beratung

IMMOcontract Immobilien Vermittlung GmbH

Doris Schneider-Hiesberger

IMMOcontract Immobilien Vermittlung GmbH

T Partner der IMMOcontract

H +43 664 81 91 81 5