Exklusive Neubauwohnung in ruhiger Hoflage der Inneren Stadt

Wohnung , 1010 Wien


Beschreibung der Immobilie

Exklusive Neubauwohnung in ruhiger Hoflage der Inneren Stadt

Die wichtigsten Eckdaten dieser Immobilie:



Neubau-Eigentumswohnung in Bestlage der Wiener Innenstadt



+ 2. Liftstock im ruhigen Hoftrakt: Absolute Privatsphäre trotz zentraler Lage



+ Neubau im hinteren Gebäudeteil (Errichtung 2016)



+ Fernwärmeheizung



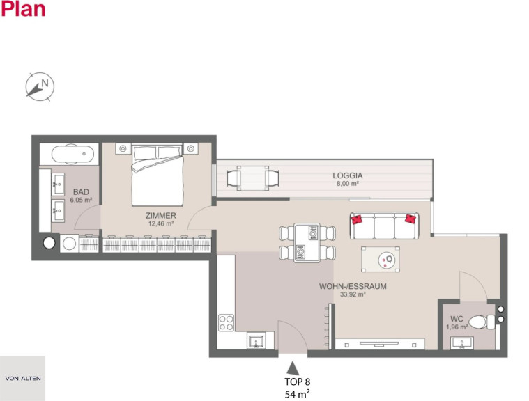
+ Wohnfläche ca. 54 m²: 1 Wohnküche & 1 Schlafzimmer



+ Balkon ca. 8 m²



+ Badezimmer mit Dusche & separates WC



+ hochwertige Ausstattung: Dunkler Eichenparkett, maßgefertigte Tischlereinbauten, edle Materialien



+ Komfortausstattung: Klimatisiert, barrierefrei, Personenaufzug vorhanden



Kellerabteil mit ca. 3 m²







Die Wohnung



Diese stilvolle Neubauwohnung befindet sich im hinteren Teil eines gepflegten Innenstadtgebäudes, einer der charmantesten und historisch gewachsenen Lagen des 1. Wiener Gemeindebezirks. Der im Jahr 2016 errichtete Neubautrakt verbindet modernen Wohnkomfort mit Ruhe und Privatsphäre.



Die ca. 54 m² große Wohnung liegt im 2. Obergeschoss und ist bequem über einen Personenaufzug erreichbar. Dank der Ausrichtung in den begrünten Innenhof genießt man hier eine ruhige Wohnatmosphäre mitten im Herzen Wiens.



Der Wohn-Essbereich bildet das Herzstück der Wohnung. Hochwertiger dunkler Eichenparkett und maßgefertigte Einbaumöbel schaffen ein elegantes, zugleich wohnliches Ambiente. Die moderne Wohnküche ist funktional integriert und hochwertig ausgestattet.



Von hier aus gelangt man direkt auf die ca. 8 m² große Balkon, der als geschützter Außenbereich zum Entspannen, Essen oder Arbeiten im Freien einlädt. Begrünung und Hoflage sorgen für Ruhe und Privatsphäre.



Das Schlafzimmer bietet ausreichend Platz für ein Doppelbett sowie Stauraumlösungen. Auch hier setzt sich die hochwertige Materialwahl konsequent fort.



Das Badezimmer ist modern gestaltet und mit einer großzügigen Dusche ausgestattet. Ein separates WC ergänzt den durchdachten Grundriss. Außenjalousien, Klimatisierung sowie barrierefreier Zugang erhöhen den Wohnkomfort zusätzlich.





Die Lage



Die Wohnung befindet sich in erstklassiger und begehrter Wohnlage im 1. Wiener Gemeindebezirk, der Inneren Stadt. Diese historische Seitengasse unweit des Stephansdoms verbindet urbanes Innenstadtleben mit einer außergewöhnlich hohen Wohn- und Lebensqualität.



Die Infrastruktur ist hervorragend: In unmittelbarer Umgebung stehen zahlreiche Einkaufsmöglichkeiten des täglichen Bedarfs sowie exklusive Boutiquen, Feinkostgeschäfte, Supermärkte, Apotheken und Banken zur Verfügung. Darüber hinaus bietet die Innenstadt eine vielfältige Auswahl an renommierten Cafés, Restaurants und kulturellen Einrichtungen. Schulen, Kindergärten, Universitäten sowie medizinische Versorgungseinrichtungen sind in kurzer Distanz erreichbar.



Das Freizeit- und Erholungsangebot ist ebenso vielseitig. Der nahegelegene Stadtpark sowie der Donaukanal laden zu Spaziergängen, sportlichen Aktivitäten und Erholung im Freien ein. Zahlreiche Museen, Theater und historische Sehenswürdigkeiten befinden sich in fußläufiger Umgebung.



Öffentliche Anbindung




  • U-Bahn-Station:



    • Schwedenplatz: ca. 400 m (U4, U1)
    • Stubentor: ca. 300 m (U3)


  • Straßenbahn-Haltestellen:



    • Schwedenplatz: ca. 550 m (Line 2)


  • Bushaltestelle:



    • Riemergasse: ca. 350 m (Line 3A)


Wir weisen darauf hin, dass zwischen dem Vermittler und dem zu vermittelnden Dritten ein familiäres oder wirtschaftliches Naheverhältnis besteht.


Der Vermittler ist als Doppelmakler tätig.

Infrastruktur / Entfernungen

Gesundheit
Arzt <500m
Apotheke <500m
Klinik <500m
Krankenhaus <1.000m

Kinder & Schulen
Schule <500m
Kindergarten <500m
Universität <500m
Höhere Schule <1.000m

Nahversorgung
Supermarkt <500m
Bäckerei <500m
Einkaufszentrum <1.000m

Sonstige
Geldautomat <500m
Bank <500m
Post <500m
Polizei <500m

Verkehr
Bus <500m
U-Bahn <500m
Straßenbahn <500m
Bahnhof <500m
Autobahnanschluss <3.500m

Angaben Entfernung Luftlinie / Quelle: OpenStreetMap

Eckdaten Objektnr. 8425/172

Art: Wohnung
Land: Österreich
Baujahr: 2016
Alter: Neubau
Kaufpreis: 1.250.000,00
Provision: 3% des Kaufpreises zzgl. 20% USt.
Wohnfläche: 54,00 m²
Zimmer: 2
Bäder: 1
WC: 1
Balkone: 1
Keller: 3,00 m²
Heizwärmebedarf:  C  66,00 kWh/m²a
fGEE: 1,07
Immobilie merken Exposé

Ausstattung

Parkett, Fliesen, Einbauküche, Personenaufzug, Dusche


Immobilie anfragen


Ihre persönliche Beratung

von Alten Immobilientreuhand GmbH

Lucie von Alten

von Alten Immobilientreuhand e.U.

T +4369910816911