Weitblick. Raum. Substanz. - Großzügiges Familienhaus mit Panorama Blick

Haus , 7223 Sieggraben


7223 Sieggraben

Beschreibung der Immobilie

Weitblick. Raum. Substanz. - Großzügiges Familienhaus mit Panorama Blick

Weitblick. Raum. Substanz.



Großzügiges Familienhaus mit Panorama Blick



Es gibt Häuser, die gebaut wurden.

Und es gibt Häuser, die wirken.



Dieses gehört zur zweiten Kategorie.



In erhöhter Lage der Fischergasse in Sieggraben gelegen, öffnet sich der Blick über Dächer, Wiesen und sanfte Hügel. Vom Südbalkon aus reicht die Aussicht weit ins Land – ein Panorama, das bleibt.



Errichtet Anfang der 1980er Jahre in massiver Ziegelbauweise, bietet das Haus rund 194 m² Wohnfläche und insgesamt etwa 386,89 m² Gesamtnutzfläche inklusive Keller und Garagen. Großzügig geplant, klar strukturiert und mit einem Raumgefühl, das man heute selten findet.




Innenräume mit Charakter



Schon der Eingangsbereich vermittelt Großzügigkeit. Breite Flure, eine markante Treppe, klare Linien.



Das Wohnzimmer überzeugt durch seine Dimension und den direkten Zugang zum Balkon. Der Kachelofen setzt einen starken architektonischen Akzent und sorgt für behagliche Atmosphäre.



Die gut geschnittene Küche bietet bereits jetzt ausreichend Platz für gemeinsames Kochen und gesellige Abende. Durch eine einfache Zusammenlegung von Küche und Wohnzimmer lässt sich eine moderne, offene Wohnküche mit rund 41,16 m² Wohnfläche realisieren – ein zeitgemäßes Raumkonzept mit viel Luft und Licht.



Mit 7 Zimmern, zwei Bädern und zwei separaten WCs ist das Haus flexibel nutzbar – ob als klassisches Familienhaus, für Mehrgenerationenwohnen oder in Kombination mit Homeoffice.



Besonders interessant: Erdgeschoss und Obergeschoss verfügen über separate Eingänge – eine Seltenheit mit echtem Mehrwert.




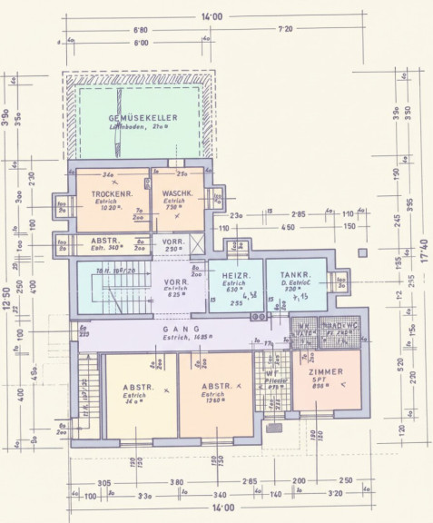
Erdgeschoss



Wohnen:



  • Vorraum: ca. 14,85 m² + Windfang 4,76 m²
  • Zimmer 1: ca. 14,00 m²
  • Zimmer 2: ca. 13,60 m²
  • Zimmer 3: ca. 8,96 m²
  • Bad/WC: ca. 2,85 m² + Vorraum ca. 1,8 m²


Abstell- und Technikräume:



  • Vorraum: ca. 8,75 m²
  • Abstellraum 1: ca. 3,40 m²
  • Trockenraum: ca. 10,20 m²
  • Waschraum: ca. 7,50 m²
  • Heizraum: ca. 6,38 m²
  • Tankraum: ca. 7,13 m²
  • Gemüsekeller: ca. 21 m²
  • Garage: ca. 37,5 m²
  • Gesamt: 162,68 m²



Obergeschoss



Wohnen:



  • Vorraum: ca. 16,50 m² + Windfang ca. 2,75 m²
  • Wohnküche: ca. 18,75 m²
  • Speis: ca. 2,86 m²
  • Esszimmer/Zimmer 4: ca. 22,40 m²
  • Wohnzimmer/Zimmer 5: ca. 22,40 m²
  • Zimmer 6/Schlafzimmer: ca. 28,40 m²
  • Diele: ca. 6,75 m²
  • Badezimmer mit WC: ca. 12,25 m²


Nebenräume und Außenflächen:



  • Balkon: ca. 7,65 m²
  • Garage 2: 24 m²
  • Hobbyraum: 37,5 m²
  • Gesamt: 224,21 m²


Gesamtfläche Erdgeschoss + Oberschoss (inkl. Garagen, Keller, Balkon): 386,89 m²



  • Rohdachbodenfläche: rund 120 m²



1.968 m² Grundstück – echte Fläche, kein Kompromiss



Das Grundstück misst nahezu 2.000 m², davon rund 1.600 m² Gartenfläche.



Hier entsteht kein Engegefühl. Hier entsteht Freiheit.



Ein wesentliches Qualitätsmerkmal im Außenbereich ist die 2019 errichtete Steinschlichtungsmauer entlang der gesamten Grundstücksfront, in die rund EUR 55.200,– investiert wurden. Sie verleiht dem Haus  nicht nur eine hochwertige Außenwirkung, sondern schafft auch klare Struktur und Privatsphäre.




Barrierefreiheit – durchdacht und alltagstauglich



Ein weiterer wesentlicher Vorteil dieser Liegenschaft ist die barrierefreie Erreichbarkeit des gesamten Obergeschosses. Die Wohnebene ist stufenlos zugänglich und somit auch für Personen mit eingeschränkter Mobilität komfortabel nutzbar.



Auch die Sanitärräume wurden entsprechend adaptiert und sind behindertengerecht ausgestattet, wodurch das Haus nicht nur familienfreundlich, sondern auch langfristig nutzbar und zukunftssicher ist.



Diese Ausführung eröffnet zusätzliche Möglichkeiten – sei es für altersgerechtes Wohnen, Mehrgenerationenkonzepte oder die Nutzung durch Personen mit besonderen Anforderungen.




Technik – sinnvoll ergänzt



Beheizt wird das Haus mittels Ölzentralheizung (Tank kürzlich mit 3.000 Litern befüllt) sowie zusätzlicher Holzheizmöglichkeit.



2023 wurde zusätzlich eine Viessmann Warmwasser-Wärmepumpe installiert (Investition ca. EUR 2.700,–) – eine moderne Ergänzung zur bestehenden Heizstruktur und ein klarer Mehrwert im Bestand.



Die technische Basis ist solide und bietet gleichzeitig Potenzial für weitere individuelle Modernisierungsschritte.




Garagen & Stellplätze – außergewöhnlich großzügig



Zwei separate Garagen mit eigenen Zufahrten:




  • ca. 37,5 m²



  • ca. 24 m²




Zusätzlich vier Stellplätze auf Eigengrund entlang der Hauseigenen Zufahrt.



Für Familien mit mehreren Fahrzeugen, Selbstständige oder einfach für Menschen, die Platz zu schätzen wissen.




Lage – grünes Dorfleben mit funktionierender Infrastruktur



Sieggraben ist eine charmante Gemeinde im Bezirk Mattersburg im nördlichen Burgenland, eingebettet zwischen Rosalien- und Ödenburger Gebirge und geprägt von Hügeln, Wald und vielfältiger Natur. Diese naturnahe Lage macht den Ort besonders attraktiv für Menschen, die Ruhe und Lebensqualität suchen – ohne auf eine funktionierende Infrastruktur verzichten zu müssen.



Direkte Nahversorgung im Ort ist gewährleistet:

Ein SPAR-Supermarkt deckt den täglichen Bedarf, ein Arzt für Allgemeinmedizin ist im Ort verfügbar, ein Bankomat erleichtert finanzielle Erledigungen, und mit einem Kindergarten sowie einer Volksschule ist die Basis für Familien bestens vorhanden.



Die Volksschule Sieggraben zählt zu den historischen und architektonisch bemerkenswerten Gebäuden des Ortes und bietet neben regulärem Unterricht auch Naturpark-bezogene Projekte für Kinder an.




Freizeit & Natur direkt vor der Haustür



Die Umgebung von Sieggraben ist ideal für alle, die gerne draußen aktiv sind. Über Kilometer durch Wald, Wiesen und hügelige Landschaft führen Wander-, Rad- und Spazierwege – eingebettet in den Naturpark Rosalia-Kogelberg.



Hier finden Sie Erholungsräume, Aussichtspunkte und naturnahe Erlebnisse, die das Leben in ländlicher Umgebung bereichern.




Verkehr & Erreichbarkeit



Trotz der ruhigen, naturnahen Lage ist Sieggraben gut angebunden:




  • Bushaltestelle nur wenige Schritte entfernt – direkte Verbindungen Richtung Mattersburg, Wiener Neustadt, Eisentadt und Wien - die Bundeshauptstadt kann via Bus in unter 50 Minuten erreicht werden



  • Autobahnanschluss in wenigen Minuten erreichbar



  • Über die S31 rasche Anbindung an die A3 und A2




Damit erreichen Sie per Auto:




  • Mattersburg in ca. 10 Minuten



  • Eisenstadt in ca. 15 Minuten



  • Wiener Neustadt in ca. 15 Minuten



  • Wien Stadtgrenze in rund 40 Minuten




Besonders attraktiv für Pendler:

Über Wiener Neustadt bestehen sehr gute Schnellzug- und Railjet-Verbindungen nach Wien Hauptbahnhof, mit Fahrzeiten ab rund 30 Minuten



Die Kombination aus ländlicher Ruhe und guter Verkehrsanbindung macht die Lage besonders interessant für Familien, Berufspendler und alle, die das Beste aus Stadtnähe und Naturverbundenheit suchen.




Zusammengefasst.



  • Rund 2.000 m² Grundstück.
  • 7 Zimmer.
  • Großzügige Raumwirkung.
  • Solide Substanz.
  • Bereits getätigte Investitionen im Außen- und Technikbereich.


Ein Haus für Menschen, die nicht auf Quadratmeter reduzieren – sondern auf Möglichkeiten erweitern.




Kaufpreis: EUR 338.700,–



Gerne zeigen wir Ihnen dieses Haus persönlich – am besten dort, wo es am meisten überzeugt: auf dem Balkon mit Blick ins Weite.




Hinweis gemäß Energieausweisvorlagegesetz: Ein Energieausweis wurde vom Eigentümer bzw. Verkäufer, nach unserer Aufklärung über die generell geltende Vorlagepflicht, sowie Aufforderung zu seiner Erstellung noch nicht vorgelegt. Daher gilt zumindest eine dem Alter und der Art des Gebäudes entsprechende Gesamtenergieeffizienz als vereinbart. Wir übernehmen keinerlei Gewähr oder Haftung für die tatsächliche Energieeffizienz der angebotenen Immobilie.


Der Vermittler ist als Doppelmakler tätig.

Infrastruktur / Entfernungen

Gesundheit
Arzt <6.500m
Apotheke <7.000m

Kinder & Schulen
Schule <1.500m
Kindergarten <6.500m
Universität <8.000m

Nahversorgung
Supermarkt <6.500m
Bäckerei <6.500m

Sonstige
Bank <3.500m
Geldautomat <3.500m
Post <1.500m
Polizei <6.500m

Verkehr
Bus <500m
Autobahnanschluss <1.000m
Bahnhof <8.000m

Angaben Entfernung Luftlinie / Quelle: OpenStreetMap

Eckdaten Objektnr. 5675/514

Art: Haus
Land: Österreich
Baujahr: 1984
Zustand: Gepflegt
Alter: Neubau
Kaufpreis: 338.700,00
Provision: 3% des Kaufpreises zzgl. 20% USt.
Wohnfläche: 193,88 m²
Nutzfläche: 386,89 m²
Grundstücksfl.: 1.968,00 m²
Zimmer: 7
Bäder: 2
WC: 2
Balkone: 1
Terrassen: 1
Stellplätze: 4
Garten: 1.600,00 m²
Keller: 64,00 m²
Immobilie merken Exposé

Ausstattung

Fliesen, Laminatboden, Elektro, Öl, Kamin, Zentralheizung, Wohnküche / offene Küche, Südbalkon, Dusche, Bad mit Fenster, Badewanne, Garage, Parkplatz, Wasch/Trockenraum


Immobilie anfragen


Ihre persönliche Beratung

VIEMMO Real Estate GmbH

Julia Pauer

VIEMMO Real Estate GmbH

H +43 676 55 33 478