Mietwohnung mit Terrasse und Weitblick

Wohnung , 1090 Wien


Altes AKH

Beschreibung der Immobilie

Mietwohnung mit Terrasse und Weitblick

Direkt beim Alten AKH im 9. Bezirk gelangt eine DG-Mietwohnung, mit ca. 82 qm Wohnfläche und einer Terrasse, in die Vermarktung.



Die Wohnung liegt im 5. Liftstock inkl. Mezzanin eines schönen Altbaus (der oberste Stockt ist nur über das Stiegenhaus erreichabr) und ist wie folgt aufgeteilt.



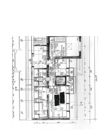
Wohnung:



  • Gang
  • Küche
  • 1 Wohn-/Esszimmer
  • 1 Schlafzimmer 
  • 1 Terrasse 
  • 1 Badezimmer 
  • 2 Räume (ca. 8 und 6 qm)
  • 1 WC


Die genaue Raumaufteilung entnehmen Sie bitte dem beigelegten Grundrissplan. Die Heizung und Warmwasseraufbereitung erfolgt über eine Gastherme. Bitte beachten Sie, dass die Wohnung Dachschrägen aufweist!



Lage und Verkehrsmittel:



Die Anbindung an das öffentliche Verkehrsnetz ist als sehr gut zu bezeichnen. Die Straßenbahnlinien befinden sich direkt vor der Haustür. Somit ist die Innenstadt (Schottentor) und die umliegenden Bezirke schnell und bequem zu erreichen. Die U-Bahnen erreicht man in zwei bis drei Straßenbahnstationen. Weiters befindet sich die Autobuslinie 13A in unmittelbarer Nähe.



  • Straßenbahnlinien 33, 43, 44, 5 
  • U-Bahnen: U6, U2, (U5 Frankhplatz in Errichtung)
  • Autobuslinien: 13A


Nahegelegene Supermärkte, Banken und Geschäfte des täglichen Bedarfs, sowie Restaurants, Bars und Cafés werten den Standort dieser Wohnung zusätzlich enorm auf. Die Alserstraße an sich aber auch das Alte AKH und der 8. und 9. Wiener Gemeindebezirk sind für ihren einzigartigen Flair bekannt.



Sonstiges:



Das Mietverhältnis wird unbefristet abgeschlossen. Die Wohnung steht ab sofort zur Verfügung.



Für weitere Informationen und/oder einen Besichtigungstermin stellen Sie uns bitte ein Anfrage. Wir werden uns dann mit Ihnen in Verbindung setzen.



Die Angaben über das angebotene Objekt erfolgen mit der Sorgfalt eines ordentlichen Immobilienmaklers; für die Richtigkeit solcher Angaben, die auf Informationen der Über das Objekt Verfügungsberechtigten beruhen, wird keine Gewähr geleistet. Die Bilder können vom IST-Zustand abweichen.






Wir weisen darauf hin, dass zwischen dem Vermittler und dem zu vermittelnden Dritten ein familiäres oder wirtschaftliches Naheverhältnis besteht.


Der Immobilienmakler erklärt, dass er – entgegen dem in der Immobilienwirtschaft üblichen Geschäftsgebrauch des Doppelmaklers – einseitig nur für den Vermieter tätig ist.

Eckdaten Objektnr. 2878

Art: Wohnung
Land: Österreich
Gesamtmiete: 1.399,00
Kaltmiete (netto): 1.064,56 €
Kaltmiete: 1.271,81 €
Provision: Gemäß Erstauftraggeberprinzip bezahlt der Abgeber die Provision.
Betriebskosten: 190,86 €
MwSt Gesamt: 127,19 €
Wohnfläche: 81,67 m²
Zimmer: 2,50
Bäder: 1
WC: 1
Terrassen: 1
Immobilie merken Exposé

Immobilie anfragen


Ihre persönliche Beratung

BA Mathias Stockert

Mathias Stockert