Einzigartiges Apartment mit Terrasse in Wiener Neustadt – Ihr neues Zuhause!

Wohnung - Dachgeschoß, 2700 Wiener Neustadt


Diese charmante Dachgeschosswohnung in 2700 Wiener Neustadt besticht durch ihre ideale Lage im Nordwesten. In unmittelbarer Nähe finden Sie alles, was das Herz begehrt: Schulen, Supermärkte, Banken und Geldautomaten sind bequem erreichbar. Die Poststelle und die Polizei sorgen für zusätzliche Sicherheit und Service. Zudem sind öffentliche Verkehrsanbindungen wie Bus und Bahnhof schnell zu erreichen, was die Mobilität enorm erhöht. Genießen Sie urbanes Leben mit ländlichem Flair!

Beschreibung der Immobilie

Einzigartiges Apartment mit Terrasse in Wiener Neustadt – Ihr neues Zuhause!

Willkommen in Ihrem neuen Zuhause – einer charmanten Dachgeschosswohnung in der idyllischen Stadt Wiener Neustadt, im Herzen von Niederösterreich. Diese neuwertige Wohnung im 1. Dachgeschoss bietet Ihnen nicht nur modernen Wohnkomfort, sondern auch einen Lebensstil, der die perfekte Balance zwischen städtischem Flair und ländlicher Ruhe schafft.



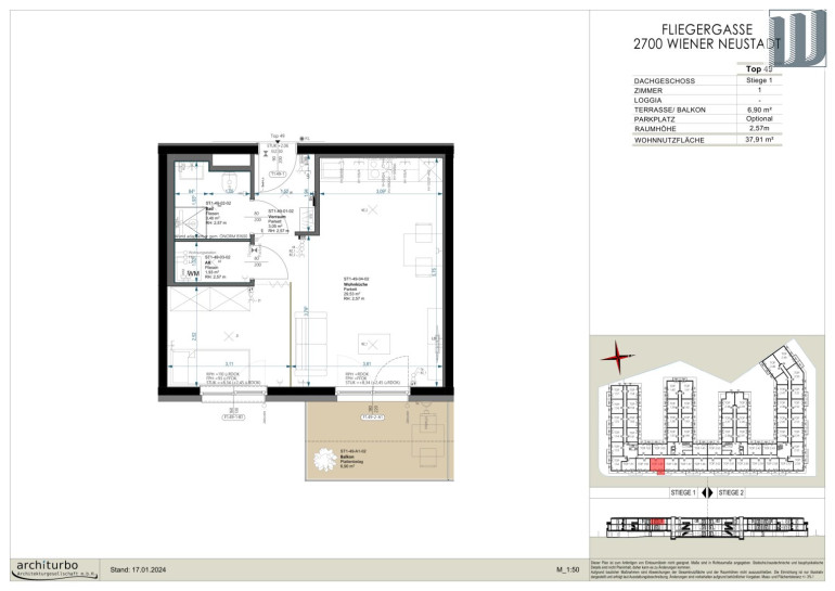
Mit einer großzügigen Fläche ist diese 1-Zimmer-Wohnung ideal für Singles oder Paare, die das Besondere suchen. Der durchdachte Grundriss sorgt dafür, dass Sie jeden Quadratmeter optimal nutzen können. Der lichtdurchflutete Wohnbereich empfängt Sie mit hochwertigen Fliesen und elegantem Parkett, die ein harmonisches Ambiente schaffen.



Besonders hervorzuheben ist die moderne Einbauküche, die nicht nur funktional ist, sondern auch zum Herzstück Ihrer neuen Wohnung wird. Hier können Sie Ihre Kochkünste entfalten und Gäste empfangen, während der Blick auf die umgebende Natur Sie inspiriert. Der Ostbalkon lädt dazu ein, den Tag mit einer Tasse Kaffee zu beginnen und den herrlichen Fernblick sowie den grünen Ausblick zu genießen.



Die Wohnung ist mit einer Fußbodenheizung ausgestattet, die für wohlige Wärme sorgt, während die Fernwärme für eine effiziente und umweltfreundliche Heizlösung steht. Ein Personenaufzug bringt Sie bequem von der Garage direkt zu Ihrer Wohnung – ein unschätzbarer Vorteil, besonders an regnerischen Tagen oder wenn Sie schwerere Einkäufe nach Hause bringen.



Die Lage dieser Immobilie ist unschlagbar. In unmittelbarer Nähe finden Sie Schulen und Supermärkte, sodass Sie alle wichtigen Einrichtungen des täglichen Bedarfs bequem zu Fuß erreichen können. Dank der hervorragenden Verkehrsanbindung sind Sie auch schnell unterwegs: Bus, Bahnhof und der Flughafen sind nur wenige Minuten entfernt, was Ihnen Flexibilität und Mobilität in Ihren täglichen Aktivitäten bietet.



Mieten Sie diese traumhafte Wohnung und genießen Sie ein Leben in modernem Komfort, umgeben von der malerischen Kulisse Niederösterreichs. Lassen Sie sich diese Gelegenheit nicht entgehen – vereinbaren Sie noch heute einen Besichtigungstermin und überzeugen Sie sich selbst von dieser einzigartigen Immobilie!



Sobald Sie uns eine Anfrage senden, erhalten Sie automatisiert ein Exposé zu diesem Apartment und Sie haben die Möglichkeit uns Ihren persönlichen Besichtigungstermin bekanntzugeben, nachdem Sie die Datenschutz-Erklärung bestätigen. Dadurch entstehen für Sie weder Kosten, noch Verpflichtungen!



WICHTIG: Ein Garagenstellplatz um ca. € 90,- brutto muss mit gemietet werden und ist in der angegebenen Miete nicht enthalten!



Ihr neues Zuhause wartet auf Sie.


Wir weisen darauf hin, dass zwischen dem Vermittler und dem zu vermittelnden Dritten ein familiäres oder wirtschaftliches Naheverhältnis besteht.


Der Immobilienmakler erklärt, dass er – entgegen dem in der Immobilienwirtschaft üblichen Geschäftsgebrauch des Doppelmaklers – einseitig nur für den Vermieter tätig ist.

Infrastruktur / Entfernungen

Gesundheit
Arzt <1.500m
Apotheke <1.500m
Klinik <3.000m
Krankenhaus <2.000m

Kinder & Schulen
Schule <500m
Kindergarten <1.500m
Höhere Schule <2.500m
Universität <2.000m

Nahversorgung
Supermarkt <1.000m
Bäckerei <1.500m
Einkaufszentrum <1.500m

Sonstige
Bank <500m
Geldautomat <500m
Post <500m
Polizei <500m

Verkehr
Bus <500m
Autobahnanschluss <3.500m
Bahnhof <1.000m
Flughafen <1.000m

Angaben Entfernung Luftlinie / Quelle: OpenStreetMap

Eckdaten Objektnr. 1991/71

Art: Wohnung - Dachgeschoß
Land: Österreich
Baujahr: 2024
Zustand: Neuwertig
Alter: Neubau
Gesamtmiete: 676,94
Kaltmiete (netto): 500,00 €
Kaltmiete: 612,22 €
Provision: Gemäß Erstauftraggeberprinzip bezahlt der Abgeber die Provision.
Betriebskosten: 73,32 €
MwSt Gesamt: 64,72 €
Wohnfläche: 38,00 m²
Zimmer: 1,50
Bäder: 1
WC: 1
Terrassen: 1
Heizwärmebedarf:  B  36,60 kWh/m²a
fGEE:  A  0,75
Immobilie merken Exposé

Ausstattung

Fliesen, Parkett, Fernwärme, Fußbodenheizung, Einbauküche, Personenaufzug, Ostbalkon, Garage


Immobilie anfragen


Ihre persönliche Beratung

Worresch & Partner Werteconsulting Ges.m.b.H.

Klaus Regensburger

Worresch & Partner Werteconsulting Ges.m.b.H.

T +43 (0)676 / 897 38 12 80

H +43 (0)676 / 897 38 12 80