++NEU++ 50m zum Augarten! Altbau-Charme mit 10 m² Balkon! Traumhafte 3-Zimmer-Wohnung mit große Terrasse und Ausblick!

Wohnung - Etage, 1020 Wien , Kunzgasse 4


Beschreibung der Immobilie

++NEU++ 50m zum Augarten! Altbau-Charme mit 10 m² Balkon! Traumhafte 3-Zimmer-Wohnung mit große Terrasse und Ausblick!

++THE AUGARTEN IS AROUND THE CORNER++



Exklusive 3-Zimmer-Wohnung mit Balkon 10 m²!


(Exklusiv)



Erstbezug nach Sanierung | Lichtdurchflutet | Küche inkl. Geräte | Markenarmaturen im Bad | Großzügige Terrasse | Top-Nahversorgung | Augarten – 50meter!





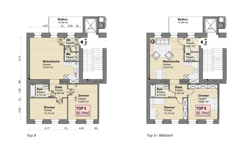
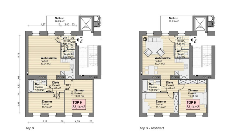
Diese sehr helle 3-Zimmer-Terrassenwohnung mit ca. 83 m² Wohnfläche und einer 10 m² großen Terrasse steht ab sofort zum Verkauf.

Die Wohnung befindet sich im 3. Obergeschoss eines gepflegten Stilaltbaus und ist bequem per Lift (barrierefrei) erreichbar.





Raumaufteilung – ca. 83,15 m² + Terrasse | Raumhöhe ca. 3,10 m



+ einladender Vorraum



+ separates WC mit Handwaschbecken



+ große Wohnküche ca. 33 m² (vollausgestattet) mit Ausgang auf die Terrasse



+ 10 m² Terrasse mit Fernblick



+ zwei separat begehbare Schlafzimmer (ca. 15 m² und 19,64 m²)



+ hochwertiges Badezimmer mit Wanne, Waschtisch und Waschmaschinenanschluss



+ Kellerabteil





Gehobene Ausstattung – Liegenschaft generalsaniert:




  • Vollholz-Parkettboden



  • stilvolle Fliesen



  • Markenarmaturen



  • Gasetagenheizung



  • moderne Einbauküche inkl. aller Geräte



  • optimaler Einbauschrank im Schlafzimmer



  • Innenbeschattung






Top-Lage & perfekte Infrastruktur:



Die Wohnung befindet sich in der Kunzgasse – in wenigen Minuten erreichen Sie die Innenstadt sowie zahlreiche Geschäfte des täglichen Bedarfs.

Im Umkreis von 5 Gehminuten: BILLA, HOFER, LIDL, BIPA, Bäckereien, Apotheken, Banken u. v. m.



Öffentliche Verkehrsmittel:
Straßenbahnlinien 2, 5 sowie Buslinien 5A, 5B befinden sich in unmittelbarer Nähe.



Freizeit & Erholung:
Der grüne Augartenpark ist nur 1 Minute zu Fuß entfernt.

Auch der Donaukanal mit seinen zahlreichen Restaurants und Bars ist rasch mit den Öffis erreichbar.






Vereinbaren Sie noch heute einen Besichtigungstermin!




Kaufpreis: EUR 570.000,-





Kontakt für Informationen & Besichtigungen:




Herr Sadia Alperovits
Telefon: +43 660 380 7232
E-Mail: sa@direktfinanzimmo.at



Firmenname: gb-direkt Finanzberatung & Immobilienhandel GmbH

A-1120 Wien, Aßmayergasse 60/1



Bitte haben Sie Verständnis, dass wir aufgrund der Nachweispflicht gegenüber dem Eigentümer nur Anfragen

mit VOLLSTÄNDIGEN Kontaktdaten (Name, Telefon, Email) beantworten können.




*******************************************

Kaufnebenkosten:
3,5 % Grunderwerbsteuer

1,1 % Grundbucheintragungsgebühr 

1,0 % Vertragserrichtungskosten + 20 % MwSt.

3 %  Vermittlungsprovision + 20 % MwSt.



Alle Angaben beruhen auf Informationen des Eigentümers. Für die Richtigkeit und Vollständigkeit kann keine Haftung übernommen werden.



Maßangaben sind unverbindlich. Änderungen, Irrtümer und Zwischenverkauf vorbehalten.








Wir weisen darauf hin, dass zwischen dem Vermittler und dem zu vermittelnden Dritten ein familiäres oder wirtschaftliches Naheverhältnis besteht.

Infrastruktur / Entfernungen

Gesundheit
Arzt <200m
Apotheke <300m
Klinik <900m
Krankenhaus <900m

Kinder & Schulen
Schule <175m
Kindergarten <550m
Universität <1.100m
Höhere Schule <775m

Nahversorgung
Supermarkt <175m
Bäckerei <300m
Einkaufszentrum <1.050m

Sonstige
Geldautomat <525m
Bank <525m
Post <525m
Polizei <275m

Verkehr
Bus <150m
U-Bahn <700m
Straßenbahn <200m
Bahnhof <700m
Autobahnanschluss <1.650m

Angaben Entfernung Luftlinie / Quelle: OpenStreetMap

Eckdaten Objektnr. 1587/64999

Art: Wohnung - Etage
Land: Österreich
Baujahr: 1900
Zustand: Erstbezug
Alter: Altbau
Kaufpreis: 570.000,00
Provision: 3% des Kaufpreises zzgl. 20% USt.
Betriebskosten: 216,87 €
MwSt Gesamt: 26,65 €
Wohnfläche: 84,00 m²
Zimmer: 3
Bäder: 1
WC: 1
Terrassen: 1
Keller: 2,00 m²
Heizwärmebedarf:  C  90,00 kWh/m²a
Immobilie merken Exposé

Ausstattung

Fliesen, Parkett, Gas, Etagenheizung, Einbauküche, Personenaufzug, Badewanne, DV-Verkabelung


Immobilie anfragen


Ihre persönliche Beratung

“gb-direkt” Finanzberatung & Immobilienhandel GmbH

Sadia Alperovits

“gb-direkt” Finanzberatung & Immobilienhandel GmbH

H +43 660 380 72 32