SMART HOME: Geräumiges Einfamilienhaus mit hochwertiger Ausstattung - RUHELAGE!

Haus , 8081 Empersdorf


Beschreibung der Immobilie

SMART HOME: Geräumiges Einfamilienhaus mit hochwertiger Ausstattung - RUHELAGE!

In herrlich ruhiger Lage, eingebettet in die grüne Hügellandschaft rund um Empersdorf, erwartet Sie dieses neu errichtete Einfamilienhaus – ein Erstbezug mit unglaublich hochwertiger Ausstattung und Smart-Home-Systemmodernster Technik und durchdachter Raumaufteilung. Ideal für Familien, Paare oder alle, die naturnah wohnen und dabei nicht auf modernen Komfort verzichten möchten. Vor allem ideal für jene, die hohen Wert auf geringe monatliche Kosten legen - denn die Kombination aus Luftwärmepumpe und PV-Anlage sowie einem Speicher treibt diese auf ein Minimum.



Trotz der ruhigen Lage genießen Sie eine gute Anbindung an die umliegende Infrastruktur – Einkaufsmöglichkeiten, Schulen und Verkehrsanbindungen sind in wenigen Minuten erreichbar.



Und für alle, die gerne draußen unterwegs sind: Die umliegende Natur bietet zahlreiche Möglichkeiten zum Spazieren, Radfahren oder einfach zum Durchatmen– direkt vor der Haustür.





 <<< Moderner Wohnkomfort auf rund 123 m² Wohnfläche  >>>



Das Haus ist gänzlich in Massivbauweise errichtet und überzeugt mit einer klaren, zeitgemäßen Architektur. Große Fensterflächen sorgen für helle Räume, während die offene Raumgestaltung ein luftiges und zugleich wohnliches Raumgefühl schafft.



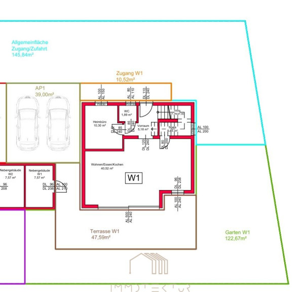
Das Herzstück des Hauses ist der großzügige Wohn-, Ess- und Kochbereich mit direktem Zugang zur sonnigen Südterrasse und in den privaten Garten – perfekt für entspannte Stunden mit Familie oder Freunden. Die ansprechende Tischlerküche ist im Kaufpreis inkludiert und mit hochwertigen E-Geräten ausgestattet. Eine praktische Speis sorgt für zusätzlichen Stauraum im Küchenbereich.



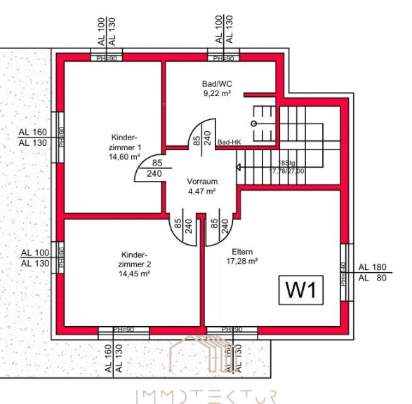
Insgesamt stehen 5 Zimmer zur Verfügung – darunter 3 geräumige Schlafzimmer im oberen Geschoß sowie ein Zimmer im Erdgeschoß, welches auch als Büro oder als Gästezimmer genutzt werden kann.



Zwei moderne Badezimmer mit Fenster sowie 2 WCs runden das Raumangebot funktional ab.





Hochwertige Ausstattung trifft auf nachhaltige Technik:



Für höchsten Wohnkomfort wurde bei der Ausstattung dieses Hauses besonderer Wert auf Qualität, Effizienz und Zukunftssicherheit gelegt.



Die Kombination aus einer energieeffizienten Luftwärmepumpe und angenehmer Fußbodenheizung schafft zu jeder Jahreszeit ein behagliches Raumklima – ganz ohne fossile Energieträger und mit niedrigen laufenden Kosten. Ergänzt wird das Energiekonzept durch eine moderne Photovoltaikanlage, die umweltfreundlichen Strom produziert und einen weiteren Schritt in Richtung Energieunabhängigkeit ermöglicht. 



Auch im Innenbereich überzeugt das Haus durch seine hochwertigen Bodenbeläge, modernste Beleuchtung und schwarze Steckdosen und Schalter, und eine stilvolle Sanitärausstattung, die Funktionalität und Ästhetik perfekt verbinden.



Im Außenbereich erwartet Sie ein sonniger Eigengarten mit idealer Süd-Ausrichtung – ein Ort zum Entspannen, Spielen oder Garteln, je nach Lebensstil und Jahreszeit.





Weitere Ausstattungshighlights:



- hochwertige Kunststoff-Alu-Fenster (dreifach verglast)



- elektrisch betriebene Raffstores und Rollos - per Smart-Home-System auch zentral steuerbar 



- Klimaanlage



- Anschluss für E-Lade-Station



- EDV- sowie SAT-Anschlüsse vorbereitet (in allen Räumen)





Ein Doppelstellplatz direkt beim Haus sorgt zusätzlich für Komfort im Alltag und rundet das Gesamtpaket harmonisch ab.





Hinweis: Alle Angaben ohne Gewähr. Irrtümer, Tippfehler und Zwischenverkauf vorbehalten.

Noch nichts gefunden? Wir informieren Sie über geeignete Immobilienangebote noch vor allen anderen.
Legen Sie jetzt Ihren individuellen Suchagenten unter folgendem Link an. Wir schicken Ihnen passende Immobilien exklusiv vorab zu.

Suchagent anlegen - https://nuic-immobilien.service.immo/registrieren/de


Der Vermittler ist als Doppelmakler tätig.

Infrastruktur / Entfernungen

Gesundheit
Arzt <1.500m
Apotheke <3.000m

Kinder & Schulen
Schule <2.500m
Kindergarten <6.000m

Nahversorgung
Supermarkt <2.000m
Bäckerei <3.000m

Sonstige
Geldautomat <2.000m
Bank <2.500m
Post <2.500m
Polizei <6.500m

Verkehr
Bus <500m
Autobahnanschluss <9.000m
Bahnhof <9.000m

Angaben Entfernung Luftlinie / Quelle: OpenStreetMap

Eckdaten Objektnr. 8374/168

Art: Haus
Land: Österreich
Baujahr: 2022
Zustand: Erstbezug
Alter: Neubau
Kaufpreis: 549.000,00
Provision: 3% des Kaufpreises zzgl. 20% USt.
Wohnfläche: 123,76 m²
Zimmer: 5
Bäder: 2
WC: 2
Terrassen: 1
Stellplätze: 2
Garten: 122,67 m²
Heizwärmebedarf:  B  49,10 kWh/m²a
fGEE:  A+  0,62
Immobilie merken Exposé

Ausstattung

Parkett, Fliesen, Solarenergie, Fußbodenheizung, Wohnküche / offene Küche, Südbalkon, Bad mit Fenster, Dusche, Carport


Immobilie anfragen


Ihre persönliche Beratung

Immotektur e.U.

Dipl.-Ing. Anela Nuic

immotektur e.U.

T +43 660 63 63 464

H +43 660 63 63 464