Galerie Wieden - Geschäftsflächen mit guter Sichtbarkeit

Einzelhandel , 1040 Wien


Beschreibung der Immobilie

Galerie Wieden - Geschäftsflächen mit guter Sichtbarkeit

In einem attraktiven Büro- und Geschäftsgebäude mit 2 Stiegenhäusern nahe der Wirtschaftskammer Österreich werden neben mehrere Büroflächen auch Einzelhandelsflächen angeboten.



Die Galerie Wieden wurde zuletzt durch die Eröffnung einer Postfiliale deutlich attraktiver gestaltet - Neben der Postfiliale sorgen weitere Branchen aus dem Gesundheitsbereich für einen ausgewogenen Branchenmix. In unmittelbarer Nachbarschaft ergänzen zahlreiche weitere Einzelhändler und Lokale die optimale Nahversorgung.



Die Einzelhandelsflächen werden eigentümerseits saniert. Die Sanierung umfasst die Erneuerung aller Oberflächen, mieterspezifische Wünsche wie auch eine Adaptierung des Grundrisses können im Rahmen der Sanierung berücksichtigt werden. 



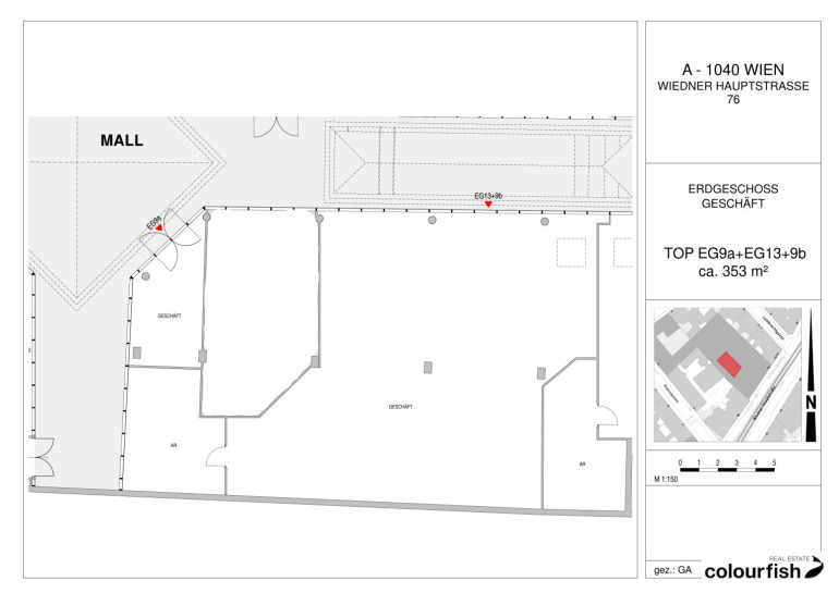
Verfügbare Geschäftsflächen:
EG, Top 07, ca. 122 m²

EG, Top 11, ca. 305 m²

EG, Top 13 + 9b, ca. 353 m² 

Kombination Top 11 + Top 13 + 9b, ca. 658 m²



Nettomiete/m²/Monat: € 15,00

Betriebskostenakonto/Netto/m²/Monat: dzt. ca. € 4,62



Im Haus befinden sich Tiefgaragenstellplätze, die bei Bedarf optional angemietet werden können.



Öffentliche Verkehrsanbindung:
Straßenbahn: 1,62, Lokalbahn Wien Baden

U-Bahn: U1 Taubstummengasse fußläufig erreichbar



Individualverkehr:
Autobahnanbindung A4, A23 St. Marx

Straßenanbindung B1, B221


Wir weisen darauf hin, dass zwischen dem Vermittler und dem zu vermittelnden Dritten ein familiäres oder wirtschaftliches Naheverhältnis besteht.

Infrastruktur / Entfernungen

Gesundheit
Arzt <500m
Apotheke <500m
Klinik <1.000m
Krankenhaus <500m

Kinder & Schulen
Schule <500m
Kindergarten <500m
Universität <500m
Höhere Schule <500m

Nahversorgung
Supermarkt <500m
Bäckerei <500m
Einkaufszentrum <500m

Sonstige
Geldautomat <500m
Bank <500m
Post <500m
Polizei <1.000m

Verkehr
Bus <500m
U-Bahn <1.000m
Straßenbahn <500m
Bahnhof <1.000m
Autobahnanschluss <3.000m

Angaben Entfernung Luftlinie / Quelle: OpenStreetMap

Eckdaten Objektnr. 7469

Art: Einzelhandel
Land: Österreich
Alter: Neubau
Kaltmiete (netto): 9.870,00 €
Kaltmiete: 9.870,00 €
Miete / m²: 15,00 €
MwSt Gesamt: 1.974,00 €
Nutzfläche: 658,00 m²
Heizwärmebedarf: 37,70 kWh/m²a
fGEE: 1,26
Immobilie merken Exposé

Ausstattung

Tiefgarage


Immobilie anfragen


Ihre persönliche Beratung

Colourfish Real Estate Immobilienmakler GmbH

Sophie Schmück

Colourfish Real Estate Immobilienmakler GmbH

T +43 1 535 1111

H +43 664 356 46 56