Der Traum vom Eigenheim mit eigenem Brunnen im wunderschönen Sulz in Wienerwald

Haus , 2392 Dornbach


Wohnen im Grünen – perfekt angebunden Durch die hervorragende Verkehrsanbindung erreichen Sie die Autobahn in kürzester Zeit – und genießen dennoch die Ruhe und Idylle des Grünen. Hier verbinden sich Mobilität und Natur auf ideale Weise: morgens schnell ins Büro, abends entspannt durch Wiesen und Wälder spazieren. Ein Zuhause, das urbanen Komfort mit naturnahem Wohnen vereint – ein wahr gewordener Traum für jeden Naturliebhaber.

Beschreibung der Immobilie

Der Traum vom Eigenheim mit eigenem Brunnen im wunderschönen Sulz in Wienerwald

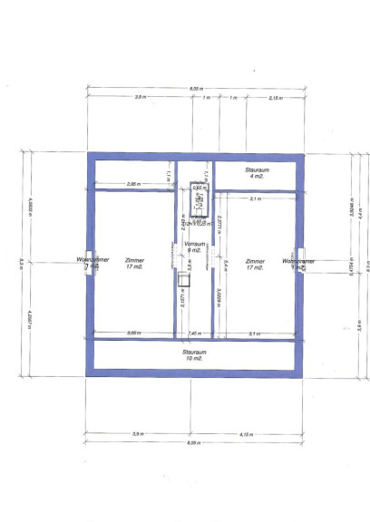
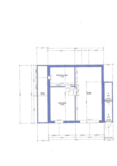
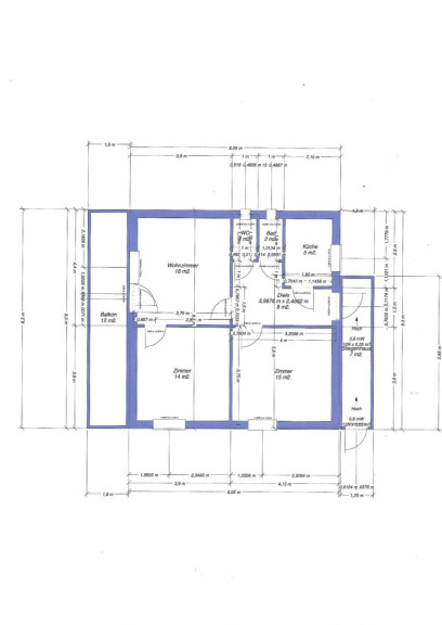
Auf einem großzügigen Grundstück mit 795 m² erwartet Sie ein gepflegtes Haus, das durch durchdachten Komfort und liebevolle Details überzeugt. Auf ca. 87 m² Wohnfläche bietet sich Ihnen hier ein wahres Wohlfühlparadies zum Kaufpreis von € 469.000,–.



Dieses charmante Massivhaus besticht durch seine helle und freundliche Atmosphäre. Die Einbauküche fügt sich harmonisch in den Wohnbereich ein und bietet ausreichend Platz für kulinarische Entfaltung. 



Das Badezimmer verfügt über ein Fenster sowie eine Dusche – ideal für einen entspannten Start in den Tag. Beheizt wird das Haus mittels effizienter und umweltfreundlicher Pelletsheizung, die für wohlige Wärme sorgt.



An sonnigen Tagen genießen Sie den herrlichen Südbalkon sowie die großzügige Terrasse mit traumhaftem Grünblick. Der liebevoll angelegte Garten lädt zum Entspannen, Spielen oder gemütlichen Beisammensein mit Familie und Freunden ein.



Ein praktischer Abstellraum bietet Platz für Fahrräder, Gartengeräte oder zusätzlichen Stauraum.



Die Lage überzeugt durch gute Verkehrsanbindung mit Busverbindungen sowie durch eine angenehme Infrastruktur. Arzt und Supermarkt befinden sich in unmittelbarer Nähe und erleichtern den Alltag.



Dieses Haus eignet sich ideal für Paare, Singles oder eine kleine Familie, die naturnah wohnen und gleichzeitig nicht auf eine gute Infrastruktur verzichten möchten. Zudem bietet sich bei entsprechendem Ausbau des Dachbodens weiteres Potenzial zur individuellen Gestaltung.



Überzeugen Sie sich selbst von diesem besonderen Angebot und lassen Sie sich von der harmonischen Kombination aus Komfort, Lage und idyllischem Ausblick begeistern.

Ihr neues Zuhause wartet auf Sie!


Hinweis gemäß Energieausweisvorlagegesetz: Ein Energieausweis wurde vom Eigentümer bzw. Verkäufer, nach unserer Aufklärung über die generell geltende Vorlagepflicht, sowie Aufforderung zu seiner Erstellung noch nicht vorgelegt. Daher gilt zumindest eine dem Alter und der Art des Gebäudes entsprechende Gesamtenergieeffizienz als vereinbart. Wir übernehmen keinerlei Gewähr oder Haftung für die tatsächliche Energieeffizienz der angebotenen Immobilie.


Wir weisen darauf hin, dass zwischen dem Vermittler und dem zu vermittelnden Dritten ein familiäres oder wirtschaftliches Naheverhältnis besteht.


Der Vermittler ist als Doppelmakler tätig.

Infrastruktur / Entfernungen

Gesundheit
Arzt <1.000m
Apotheke <5.500m
Klinik <6.500m
Krankenhaus <9.000m

Kinder & Schulen
Schule <3.000m
Kindergarten <3.000m
Höhere Schule <4.500m
Universität <4.500m

Nahversorgung
Supermarkt <1.000m
Bäckerei <6.500m

Sonstige
Bank <1.000m
Geldautomat <1.000m
Post <4.500m
Polizei <6.500m

Verkehr
Bus <500m
Autobahnanschluss <4.000m

Angaben Entfernung Luftlinie / Quelle: OpenStreetMap

Eckdaten Objektnr. 1967/80

Art: Haus
Land: Österreich
Zustand: Gepflegt
Alter: Altbau
Kaufpreis: 469.000,00
Provision: 3% des Kaufpreises zzgl. 20% USt.
Wohnfläche: 87,00 m²
Grundstücksfl.: 795,00 m²
Bäder: 1
WC: 1
Balkone: 1
Terrassen: 1
Garten: 708,00 m²
Immobilie merken Exposé

Ausstattung

Einbauküche, Südbalkon, Bad mit Fenster, Dusche


Immobilie anfragen


Ihre persönliche Beratung

Emanuel Vasile Szkopecz

Die Immobilien Meisterei GmbH

T +43 676 6344164

H +43 676 6344164