Einfamilienhaus mit Pool und großem Garten in Köstendorf

Haus - Einfamilienhaus, 5203 Köstendorf


Köstendorf liegt etwa 20 Autominuten nordöstlich von Salzburg und bietet eine hervorragende Verbindung zur Stadt – sei es mit dem PKW, dem Bus oder der S-Bahn, deren Haltestelle nur wenige Minuten entfernt ist. Der Ort verbindet ländliche Ruhe mit urbaner Nähe. Einkaufsmöglichkeiten für den täglichen Bedarf, eine Bäckerei, Kindergarten und Volksschule sind im Ortskern zu finden. Für größere Besorgungen bietet sich das nahegelegene Straßwalchen oder Seekirchen an. Sporteinrichtungen, Spazierwege und zahlreiche Freizeitmöglichkeiten in der umliegenden Natur bieten ideale Bedingungen für aktive Familien. Der Wallersee, einer der größten Seen im Salzburger Land, liegt nur etwa 10 Minuten entfernt und bietet ideale Bedingungen zum Schwimmen und Erholen. Auch der Obertrumer See, der Grabensee, sowie der Mattsee sind mit dem Auto in rund 20 Minuten erreichbar und laden zu entspannten Ausflügen ein.

Beschreibung der Immobilie

Einfamilienhaus mit Pool und großem Garten in Köstendorf

Dieses wunderschöne Einfamilienhaus in sonniger Lage bietet nicht nur ein durchdachtes Raumkonzept, sondern auch ein hohes Maß an Wohnkomfort und Energieeffizienz.

Mit einer Wohnfläche von über 200 m², verteilt auf Erd- und Obergeschoß mit 6 Zimmern und mehreren Nebenräumen, überzeugt das Haus mit einem stilvollen Ambiente für die ganze Familie. 

 



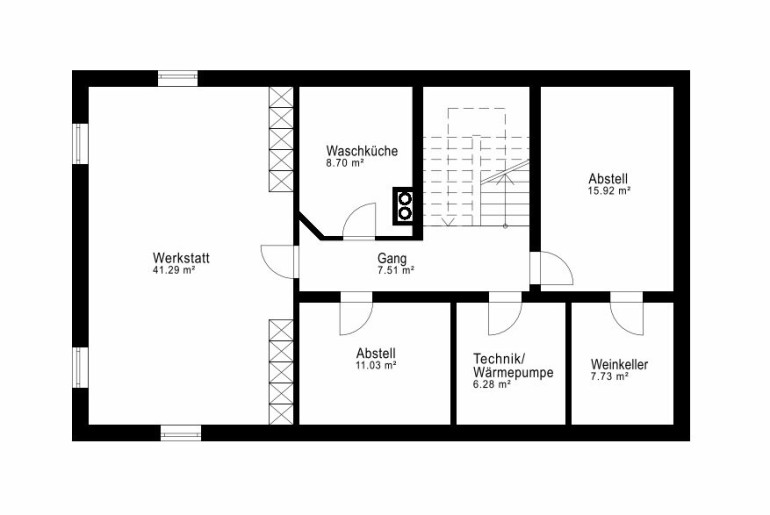
Das Gebäude ist voll unterkellert und bietet im Untergeschoß zahlreiche Nutzungsmöglichkeiten:

Neben Lager- und Abstellräumen stehen eine Waschküche mit Wäscheschacht und eine geräumige Werkstatt zur Verfügung. 

Beheizt wird das Haus über eine energieeffiziente Tiefenwärmenpumpe in Kombination mit komfortabler Fußbodenheizung und Einzelraumsteuerung in allen Räumen.



Eine moderne Photovoltaikanlage mit Speicher und eine Solaranlage für Warmwasser sorgen zusätzlich für eine nachhaltige und kostenschonende Versorgung.

Die Fenster sind mit Fliegengitter und elektrischen Jalousien ausgestattet, die mit einer Zentralfernbedienung steuerbar sind. 



Abgerundet wird das 1.062 m² große Grundstück durch einen gepflegten Garten mit viel Platz zum Entspannen und Genießen. Ein eleganter Pool mit Überdachung verspricht sommerliche Erfischung und kann für kältere Tage durch eine eigene Solaranlage beheizt werden.



Neben einer großzügigen Doppelgarage steht Ihnen auch noch eine separate, großzügige Wohnmobilgarage (BJ 2017) zu Verfügung,  die sich ideal auch als Werkstatt oder Hobbyraum eignet.




Auf einen Blick:



Wohnen: 



  • 6 Zimmer + mehrere Nebenräume
  • Wohn/Essbereich mit 55,65 m²
  • Küche mit Miele-Geräte
  • Speisekammer im Erdgeschoß + Weinkeller
  • Garderobenraum
  • 2 Bäder
  • 3 Toiletten
  • Elternschlafzimmer mit Ankleideraum und Zugang zum Hauptbadezimmer
  • Waschküche mit Wäscheschacht
  • Wärmekabine
  • Kamin





Ausstattung: 



  • Beheizung mittels Tiefenwärmepumpe und Solaranlage
  • Photovoltaikanlage mit Speicher
  • Versperrbare Fenster mit zweifacher Isolierverglasung
  • Elektrische Rollos + Insektenschutz
  • Laminat- und Fliesenböden




Outdoor: 



  • Outdoorpool (L 8 x B 4 x T 1,50 Meter) mit Schiebe-Überdachung und Solarheizung
  • 50 m² große Holzterrasse mit Süd/Westausrichtung
  • Gartenhütte
  • Doppelgarage + Parkmöglichkeiten vor dem Haus
  • Wohnmobilgarage
  • Gartenhütte




Features:



  • Infrarotkabine
  • Kamin
  • Zentral-Staubsaugeranlage
  • 2.000 Liter Regenwasserzisterne
  • BWT-Anlage für Wasseraufbereitung
  • Fingerprint-Schließanlage



Diese Immobilie eignet sich perfekt für Familien, die Platz, Komfort und eine grüne Umgebung schätzen.



Vereinbaren Sie gleich einen Besichtigungstermin und überzeugen Sie sich selbst von den Vorzügen dieser Immobilie.

Gerne sende ich Ihnen auf Anfrage das vollständige und detaillierte Exposé zu. 




Infrastruktur / Entfernungen

Gesundheit
Arzt <1.000m
Apotheke <2.000m
Klinik <8.500m

Kinder & Schulen
Schule <1.000m
Kindergarten <1.000m
Universität <8.000m

Nahversorgung
Supermarkt <1.000m
Bäckerei <1.000m

Sonstige
Bank <500m
Geldautomat <500m
Post <2.000m
Polizei <2.000m

Verkehr
Bus <500m
Bahnhof <1.500m

Angaben Entfernung Luftlinie / Quelle: OpenStreetMap

Eckdaten Objektnr. 7954/100

Art: Haus - Einfamilienhaus
Land: Österreich
Baujahr: 2007
Zustand: Neuwertig
Alter: Neubau
Kaufpreis: 1.390.000,00
Provision: 3% des Kaufpreises zzgl. 20% USt.
Heizkosten: 289,10 €
MwSt Gesamt: 70,95 €
Wohnfläche: 205,63 m²
Grundstücksfl.: 1.062,00 m²
Zimmer: 6
Bäder: 2
WC: 3
Terrassen: 1
Garten: 814,00 m²
Keller: 101,06 m²
Heizwärmebedarf:  B  45,00 kWh/m²a
fGEE:  A  0,82
Immobilie merken Exposé

Ausstattung

Fliesen, Parkett, Erdwärme, Fußbodenheizung, Einbauküche, Garage, Swimmingpool, Wasch/Trockenraum


Immobilie anfragen


Ihre persönliche Beratung

raumhochzwei Immobilien GmbH

Gerhard Ebner

raumhochzwei Immobilien GmbH

T +43 664 512 0929