HISTORISCHES STADTHAUS AM HAUPTPLATZ

Zinshaus Renditeobjekt - Wohn- und Geschäftshaus, 4190 Bad Leonfelden


Beschreibung der Immobilie

HISTORISCHES STADTHAUS AM HAUPTPLATZ

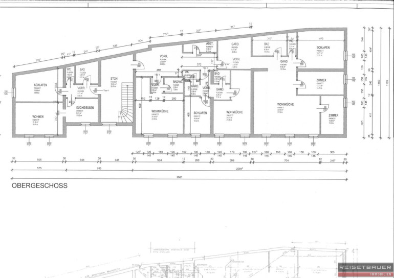
Das im Jahr 1982 erbaute Wohn- und Geschäftshaus wurde in Anlehnung an die historische Fassadengestaltung des vorherigen Gebäudes neu errichtet. Mit einer Gesamtwohnfläche der Wohneinheiten von ca. 243 Quadratmetern, einer Gewerbefläche von ca. 214 Quadratmetern und einem großzügigen Grundstück von ca. 516 Quadratmetern bietet dieses Objekt eine ideale Basis für Investoren. Es verfügt über eine Gewerbeeinheit im Erdgeschoss sowie vier vermietete Wohneinheiten im ersten Obergeschoss, die regelmäßige Einnahmen generieren. Im Laufe der Jahre wurden kontinuierlich Renovierungen durchgeführt, sodass sich das Gebäude in einem guten Zustand befindet.



Geschäft: ca. 214 m²

TOP 1: ca. 115 m²

TOP 2: ca. 45 m²

TOP 3: ca. 29 m²

TOP 4: ca. 53 m²



Das Stadthaus befindet sich in zentraler Lage am malerischen Stadtplatz von Bad Leonfelden. Die geografische Lage von Bad Leonfelden bietet eine Mischung aus ländlicher Schönheit und urbaner Bequemlichkeit. Die Stadt ist ein attraktiver Ort für Menschen, die eine hohe Lebensqualität in einer sehr gut erreichbaren Region suchen und die naturnahe Erholungsmöglichkeiten genießen. Bad Leonfelden liegt ca. 30 km von Linz entfernt.



Nähere Informationen erhalten Sie sehr gerne auf Anfrage.



Wir werden als Immobilienmakler kraft bestehenden Geschäftsgebrauchs als Doppelmakler tätig und haben somit beide Seiten des Vertrages zu unterstützen. Wir weisen darauf hin, dass zwischen dem Vermittler und dem Auftraggeber ein familiäres oder wirtschaftliches Naheverhältnis besteht. Irrtum und Änderungen vorbehalten.  


Wir weisen darauf hin, dass zwischen dem Vermittler und dem zu vermittelnden Dritten ein familiäres oder wirtschaftliches Naheverhältnis besteht.


Der Vermittler ist als Doppelmakler tätig.

Infrastruktur / Entfernungen

Gesundheit
Arzt <6.500m
Apotheke <500m

Kinder & Schulen
Schule <500m
Kindergarten <500m

Nahversorgung
Supermarkt <500m
Bäckerei <500m

Sonstige
Bank <500m
Geldautomat <500m
Post <500m
Polizei <500m

Verkehr
Bus <500m
Flughafen <8.500m

Angaben Entfernung Luftlinie / Quelle: OpenStreetMap

Eckdaten Objektnr. 5738/2581

Art: Zinshaus Renditeobjekt - Wohn- und Geschäftshaus
Land: Österreich
Baujahr: 1983
Provision: 3% des Kaufpreises zzgl. 20% USt.
Wohnfläche: 242,63 m²
Nutzfläche: 496,21 m²
Grundstücksfl.: 516,00 m²
Verkaufsfläche: 214,00 m²
Heizwärmebedarf:  D  132,00 kWh/m²a
fGEE:  C  1,26
Immobilie merken Exposé

Ausstattung

Öl


Immobilie anfragen


Ihre persönliche Beratung

Reisetbauer Immobilien GmbH

Nathalie Kapl

Reisetbauer Immobilien GmbH

T +43 732 66 51 80

H +43 664 461 54 45