Einzigartiges Öko- Haus mit Traum-Wintergarten und Dachterrasse

Haus - Einfamilienhaus, 6844 Altach


Das Einfamilienhaus befindet sich in der Gemeinde Altach in Vorarlberg. Es liegt in einer ruhigen Wohngegend und ist nach Süden ausgerichtet, was für viel Sonnenlicht und eine angenehme Helligkeit im Haus sorgt. In unmittelbarer Nähe befinden sich verschiedene wichtige Einrichtungen, wie zum Beispiel ein Arzt, eine Apotheke, eine Schule, ein Kindergarten, ein Supermarkt, eine Bäckerei, eine Bank und ein Geldautomat.

Beschreibung der Immobilie

Einzigartiges Öko- Haus mit Traum-Wintergarten und Dachterrasse

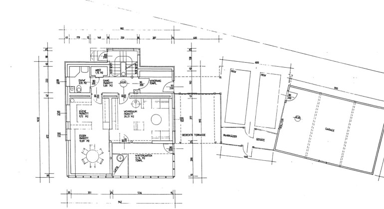
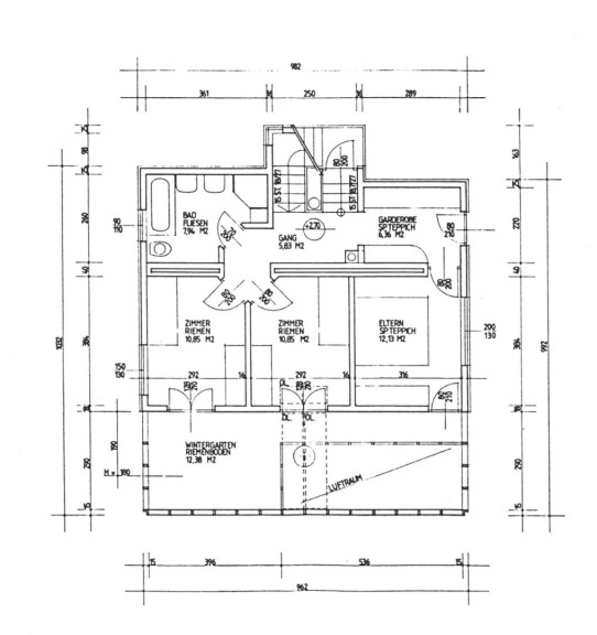
Herzlich willkommen in Ihrem neuen Zuhause in Altach, Vorarlberg! Dieses traumhafte Einfamilienhaus, das vom bekannten Architekten Sture Larson als Öko-Solarhaus entworfen wurde, wird Sie mit seiner Lage, Ausstattung und Größe begeistern. Mit einem Kaufpreis von 799.000,00 € bietet es Ihnen 128,5 m² Wohnfläche, 5 geräumige Zimmer und zahlreiche Extras, die Ihren Wohnkomfort auf ein neues Level heben.



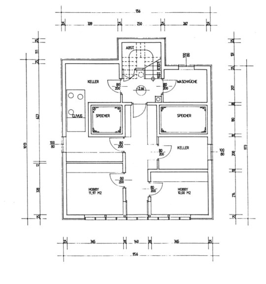
Die Haustechnik überzeugt durch ein alternatives Solar-Air-System, mit dem effizient geheizt wird, sowie durch eine kontrollierte Be- und Entlüftung mit Wärmerückgewinnung. Zudem ist das Haus vollständig unterkellert, was Ihnen zusätzlichen Stauraum und vielseitige Nutzungsmöglichkeiten bietet.



Schon beim Betreten des Hauses werden Sie von der gepflegten Atmosphäre empfangen. Der offene Grundriss der Wohnküche lädt zu gemütlichen Stunden mit Familie und Freunden ein und bietet genügend Platz für gemeinsame Kochabende.



Ein besonderes Highlight des Hauses ist der Gartenbereich. Hier können Sie die warmen Sommerabende auf der Terrasse genießen und den Blick auf die umliegende Natur schweifen lassen. Das begehbare Dach, das als Dachterrasse genutzt werden kann, bietet zudem zusätzlichen Raum für Erholung im Freien. Auch für Ihre Fahrzeuge ist gesorgt, denn das Haus verfügt über 2 Stellplätze.



Die Verkehrsanbindung ist optimal; sowohl der Bus als auch der Autobahnanschluss sind in wenigen Minuten zu erreichen. Auch für die alltäglichen Besorgungen ist die Lage perfekt, denn in der Nähe finden Sie alles, was Sie brauchen. Von Ärzten und Apotheken über Schulen und Kindergärten bis hin zu Supermärkten und Bäckereien ist alles in kurzer Entfernung vorhanden.



Nutzen Sie die Chance und werden Sie Teil der idyllischen Gemeinde Altach. Dieses Einfamilienhaus bietet Ihnen alles, was Sie sich für Ihr neues Zuhause wünschen können. Vereinbaren Sie noch heute einen Besichtigungstermin und lassen Sie sich von diesem Haus begeistern!

Infrastruktur / Entfernungen

Gesundheit
Arzt <500m
Apotheke <1.000m
Krankenhaus <3.500m

Kinder & Schulen
Schule <500m
Kindergarten <500m
Universität <10.000m
Höhere Schule <1.500m

Nahversorgung
Supermarkt <1.000m
Bäckerei <1.000m
Einkaufszentrum <4.000m

Sonstige
Bank <1.000m
Geldautomat <1.000m
Post <2.000m
Polizei <1.000m

Verkehr
Bus <500m
Autobahnanschluss <1.000m
Bahnhof <1.500m
Flughafen <6.000m

Angaben Entfernung Luftlinie / Quelle: OpenStreetMap

Eckdaten Objektnr. 5360/1375

Art: Haus - Einfamilienhaus
Land: Österreich
Baujahr: 1993
Zustand: Gepflegt
Kaufpreis: 799.000,00
Provision: 3% des Kaufpreises zzgl. 20% USt.
Wohnfläche: 128,50 m²
Grundstücksfl.: 607,00 m²
Zimmer: 5
Bäder: 2
WC: 2
Terrassen: 1
Stellplätze: 2
Garten: 493,00 m²
Heizwärmebedarf:  C  71,00 kWh/m²a
fGEE:  A+  0,63
Immobilie merken Exposé

Ausstattung

Fliesen, Parkett, Alternativ, Heizofen, Zentralheizung, Einbauküche, Wohnküche / offene Küche, Südbalkon, Bad mit Fenster, Badewanne, Dusche, Carport


Immobilie anfragen


Ihre persönliche Beratung

Breuss & Partner GmbH

Mag. iur. Johannes Breuss

Breuss & Partner GmbH

T +43 650 3243 996