Ideale Pärchen- und Familienwohnung im rundum sanierten Haus mit hochwertiger Ausstattung & effizienter Luftwärmepumpe*** Überzeugen Sie sich selbst!

Wohnung - Etage, 1170 Wien , Mayssengasse


Die Etagenwohnung in der Mayssengasse 1170 Wien überzeugt durch ihre zentrale Lage. In unmittelbarer Nähe finden Sie alles für den täglichen Bedarf: Ärzte, Apotheken und Kliniken sorgen für Ihre Gesundheit, während Schulen und Kindergärten die ideale Bildung für Ihre Kinder bieten. Supermärkte und eine Bäckerei sind schnell erreichbar, ebenso wie ein Einkaufszentrum für ausgedehnte Shoppingtouren. Die Anbindung an öffentliche Verkehrsmittel mit Bus, U-Bahn und Straßenbahn macht die Erreichbarkeit perfekt. Hier wohnen Sie komfortabel und vernetzt!

Beschreibung der Immobilie

Ideale Pärchen- und Familienwohnung im rundum sanierten Haus mit hochwertiger Ausstattung & effizienter Luftwärmepumpe*** Überzeugen Sie sich selbst!

Wohnen mit Charakter & Komfort – stilvoll revitalisiertes Altbauhaus



Willkommen in Ihrem neuen Zuhause!

Das gesamte Gebäude wird hochwertig revitalisiert und technisch auf den neuesten Stand gebracht. Im Jahr 2025 wurde das Dachgeschoss neu errichtet und erweitert.



Insgesamt entstehen 10 exklusive Wohneinheiten mit Wohnflächen zwischen ca. 36 m² und 82 m² mit attraktiven Außenflächen, die zusätzlichen Freiraum bieten.



Hochwertiger Eichenholzparkettboden sowie Fußbodenheizung in allen Räumen sorgen für ein behagliches Wohngefühl.



Jede Wohnung ist mit einer effizienten Luftwärmepumpe ausgestattet, die nachhaltiges und energieeffizientes Heizen ermöglicht. In den Dachgeschosswohnungen sorgen zusätzlich Klimaanlagen für angenehme Temperaturen an warmen Sommertagen. Elektrische Außenbeschattungen bieten zusätzlichen Komfort und Privatsphäre.



Das Haus verfügt über Kellerabteile und ein Personenlift wird errichtet, der einen barrierefreien Zugang zu allen Wohnungen ermöglicht.



Highlights




  • Fußbodenheizung für behaglichen Wohnkomfort



  • Nachhaltige Luftwärmepumpe – umweltfreundlich & effizient



  • Hochwertiger Eichenholzparkett für zeitlose Eleganz



  • Modernes Badezimmer mit Dusche



  • Hofseitiger Balkon 






Aktuell werden 10 Wohnungen hochwertig und liebevoll saniert.

Hier finden Sie Wohnflächen von 36-82 m² + Außenflächen.



Jetzt Besichtigungstermin vereinbaren – wir freuen uns auf Ihre Anfrage!





Kaufpreis: 479.000- €



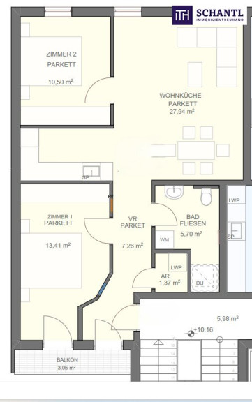
Wohnfläche: 66,18 m² + 3,05 m² Balkon



Bei den Bildern handelt es sich teilweise um Visualisierungen um die Wohnung bezugsfertig darzustellen - wir weisen darauf hin , dass es hier zu kleinen Abweichungen kommen kann



Unser Service für Sie: Wenn Sie sich für diese Immobilie entschieden haben, begleiten wir Sie gerne vom Kaufanbot weg inkl. Klärung von Sonderwünschen und der Vertragsunterzeichnung über die Wohnungsübergabe bis hin zu diversen Ummeldungen wie Strom und Gas. Entsprechende Formulare oder auch Meldezettel stellen wir Ihnen sehr gerne zur Verfügung.



Gerne unterstützen wir Sie auch bei der Finanzierung Ihres Traumobjekts und finden mit unseren langjährigen Partnern die besten Konditionen für Sie.



Vereinbaren Sie noch heute einen Termin, wir beraten Sie gerne!



www.schantl-ith.at


Wir weisen darauf hin, dass zwischen dem Vermittler und dem zu vermittelnden Dritten ein familiäres oder wirtschaftliches Naheverhältnis besteht.


Der Vermittler ist als Doppelmakler tätig.

Infrastruktur / Entfernungen

Gesundheit
Arzt <500m
Apotheke <500m
Klinik <500m
Krankenhaus <1.250m

Kinder & Schulen
Schule <500m
Kindergarten <250m
Universität <1.500m
Höhere Schule <1.000m

Nahversorgung
Supermarkt <500m
Bäckerei <250m
Einkaufszentrum <750m

Sonstige
Geldautomat <500m
Bank <500m
Post <500m
Polizei <500m

Verkehr
Bus <250m
U-Bahn <1.000m
Straßenbahn <250m
Bahnhof <1.250m
Autobahnanschluss <4.000m

Angaben Entfernung Luftlinie / Quelle: OpenStreetMap

Eckdaten Objektnr. 295428

Art: Wohnung - Etage
Land: Österreich
Baujahr: 2024
Zustand: Voll_saniert
Alter: Neubau
Kaufpreis: 479.000,00
Provision: 3% des Kaufpreises zzgl. 20% USt.
Wohnfläche: 66,18 m²
Zimmer: 3
Bäder: 1
WC: 1
Balkone: 1
Heizwärmebedarf:  C  66,30 kWh/m²a
fGEE:  A+  0,57
Immobilie merken Exposé

Ausstattung

Fliesen, Parkett, Fußbodenheizung, Wohnküche / offene Küche, Personenaufzug, Südbalkon, Dusche


Immobilie anfragen


Ihre persönliche Beratung

Schantl ITH Immobilientreuhand GmbH

Marlies Sprinzl

Schantl ITH Immobilientreuhand GmbH

T +43 664 30 7000 9

H +436609094554