Modernes 2-Zimmerbüro in der Lederfabrik

Büro / Praxis , 4040 Linz , Leonfeldner Straße 328


Diese attraktive Büro- oder Praxisfläche befindet sich in bester Lage an der Leonfeldner Straße in Linz, Oberösterreich.

Beschreibung der Immobilie

Modernes 2-Zimmerbüro in der Lederfabrik

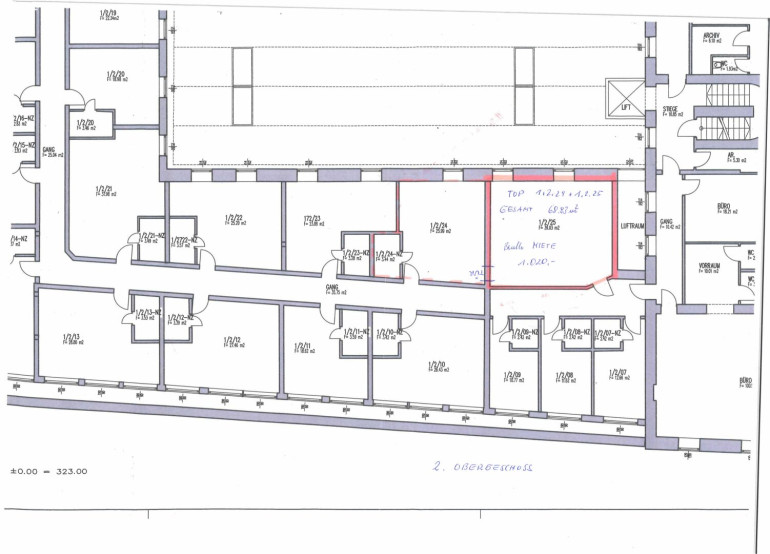
Diese charmante Büro- oder Praxisfläche in der 2. Etage eines historischen Fabrikgebäudes.



Das Büro überzeugt durch eine geräumige Zimmeraufteilung und ein freundliches Ambiente, also ideale Voraussetzungen um Kunden zu empfangen.



Die Heiz-und Stromkosten werden vom Vermieter bzw. der Hausverwaltung vorgeschrieben und abgerechnet. Es sind ausreichend Parkplätze für Sie und Ihre Kunden vorhanden. 



Dieses Objekt bietet die Möglichkeit an einem einzigartigen Standort Fuß zu fassen und sich im Linzer Geschäftsraum zu etablieren




Wir weisen darauf hin, dass zwischen dem Vermittler und dem zu vermittelnden Dritten ein familiäres oder wirtschaftliches Naheverhältnis besteht.


Der Vermittler ist als Doppelmakler tätig.

Infrastruktur / Entfernungen

Gesundheit
Arzt <25m
Apotheke <2.400m
Krankenhaus <5.575m
Klinik <3.875m

Kinder & Schulen
Schule <2.250m
Kindergarten <1.600m
Universität <2.975m
Höhere Schule <2.775m

Nahversorgung
Supermarkt <2.275m
Bäckerei <2.050m
Einkaufszentrum <3.575m

Sonstige
Bank <2.325m
Geldautomat <2.325m
Post <2.525m
Polizei <3.275m

Verkehr
Bus <525m
Straßenbahn <2.375m
Bahnhof <3.450m
Autobahnanschluss <3.400m
Flughafen <7.175m

Angaben Entfernung Luftlinie / Quelle: OpenStreetMap

Eckdaten Objektnr. 1937/7646027

Art: Büro / Praxis
Land: Österreich
Kaltmiete (netto): 850,00 €
Kaltmiete: 1.063,68 €
Provision: 3 Bruttomonatsmieten zzgl. 20% USt.
Betriebskosten: 213,68 €
MwSt Gesamt: 170,00 €
Nutzfläche: 68,93 m²
Zimmer: 2
Immobilie merken Exposé

Immobilie anfragen


Ihre persönliche Beratung

Michaela Hochreiter

AREV Immobilien GmbH

T +43 732 605533 364

H +43 664 8185330