Eckjuwel mit Erker - Sonnendurchflutet und perfekt angebunden! Entzückende Altbauwohnung + Traumhaft schönes Haus + Perfekte Infrastruktur und Anbindung + Neue Einbauküche! Jetzt zugreifen!

Wohnung , 1200 Wien , Klosterneuburger Straße


Urbaner Lifestyle trifft grüne Auszeit - Hier zu wohnen heißt: In wenigen Minuten in der City, am Donaukanal oder im Augarten. U4 & Straßenbahn befinden sich ums Eck, Cafés, Shops & alles fürs tägliche Leben in Reichweite. Zentral, lebendig und trotzdem entspannt! Was diese Adresse so besonders macht: + Zentral und doch wohnlich - Stadtleben ohne Stress. + Mobil sein leicht gemacht - ob U4, Straßenbahn oder zu Fuß bzw. mit dem Rad, Sie sind optimal angebunden! + Lebensqualität pur - Donaukanal & Augarten als Ihre private Naturkulisse. + Rundum versorgt! Öffis: + U-Bahn: U4 Friedensbrücke + Bus: 5B + Straßenbahn: 1, 2, 5, 31, 33, O

Beschreibung der Immobilie

Eckjuwel mit Erker - Sonnendurchflutet und perfekt angebunden! Entzückende Altbauwohnung + Traumhaft schönes Haus + Perfekte Infrastruktur und Anbindung + Neue Einbauküche! Jetzt zugreifen!

Alte Mauern, neues Glück!



Eckjuwel mit Erker - Sonnendurchflutet und perfekt angebunden! Entzückende Altbauwohnung + Traumhaft schönes Haus + Perfekte Infrastruktur und Anbindung + Neue Einbauküche! Jetzt zugreifen!



Worauf warten Sie?





Hier wohnt der gute Geschmack schon länger!



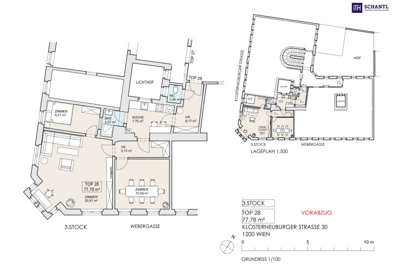
Ihre neue Wohnung wird Sie restlos begeistern und teilt sich in einen Vorraum mit Platz für eine Garderobe, eine separate und voll ausgestattete Küche, ein Badezimmer mit Dusche, einen weiteren Vorraum mit Stauraum, 2 getrennt begehbare Schlafzimmer, sowie das Herzstück der Wohnung, das lichtdurchflutete Wohn-Esszimmer - ein herrliches Eckzimmer mit charmantem Erker und viel Licht.



Schauen Sie sich dieses perfekte Raumkonzept sowie das schöne Altbauhaus an und überzeugen Sie sich selbst!



Ein Lift wird noch vetraglich gesichert und auf Kosten des Verkäufers bis 2028 eingebaut!





Wohnfläche: ca. 77,78m² + Kellerabteil



Kaufpreis: € 399.000.-



Bezug: ab sofort



Diese Wohnungen haben bereits glückliche, neue Eigentümer: TOP 14, TOP 31-32, TOP 9-10





Worauf warten Sie noch? Vereinbaren Sie noch, vereinbaren Sie heute noch einen Termin!





www.schantl-ith.at





Bei konkretem Interesse senden wir Ihnen sehr gerne weiterführende Dokumente zu, wie:



o Grundbuchauszug



o Wohnungseigentumsvertrag



o Nutzwertgutachten



o Eigentümerversammlungsprotokoll (Falls vorhanden) etc...





Unser Service für Sie: Wenn Sie sich für diese Immobilie entschieden haben, begleiten wir Sie gerne vom Kaufanbot weg inkl. Klärung von Sonderwünschen und der Vertragsunterzeichnung über die Wohnungsübergabe bis hin zu diversen Ummeldungen wie Strom und Gas. Entsprechende Formulare oder auch Meldezettel stellen wir Ihnen sehr gerne zur Verfügung.



Gerne unterstützen wir Sie auch bei der Finanzierung Ihres Traumobjekts und finden mit unseren langjährigen Partnern die besten Konditionen für Sie.



Vereinbaren Sie noch heute einen Termin, wir beraten Sie gerne!


Wir weisen darauf hin, dass zwischen dem Vermittler und dem zu vermittelnden Dritten ein familiäres oder wirtschaftliches Naheverhältnis besteht.


Der Vermittler ist als Doppelmakler tätig.

Infrastruktur / Entfernungen

Gesundheit
Arzt <250m
Apotheke <250m
Klinik <1.000m
Krankenhaus <1.500m

Kinder & Schulen
Schule <250m
Kindergarten <250m
Universität <750m
Höhere Schule <1.000m

Nahversorgung
Supermarkt <250m
Bäckerei <250m
Einkaufszentrum <1.250m

Sonstige
Geldautomat <250m
Bank <250m
Post <500m
Polizei <500m

Verkehr
Bus <250m
U-Bahn <500m
Straßenbahn <250m
Bahnhof <500m
Autobahnanschluss <1.250m

Angaben Entfernung Luftlinie / Quelle: OpenStreetMap

Eckdaten Objektnr. 295270

Art: Wohnung
Land: Österreich
Baujahr: 1900
Zustand: Erstbezug
Alter: Altbau
Kaufpreis: 399.000,00
Kaufpreis / m²: 5.129,85 €
Provision: 3% des Kaufpreises zzgl. 20% USt.
Betriebskosten: 156,12 €
MwSt Gesamt: 15,61 €
Wohnfläche: 77,78 m²
Nutzfläche: 77,78 m²
Zimmer: 3
Bäder: 1
WC: 1
Keller: 1,50 m²
Heizwärmebedarf:  D  120,80 kWh/m²a
fGEE:  F  3,76
Immobilie merken Exposé

Ausstattung

Fliesen, Parkett, Gas, Etagenheizung, Einbauküche, Dusche, Kabel/Satelliten-TV


Immobilie anfragen


Ihre persönliche Beratung

Schantl ITH Immobilientreuhand GmbH

Samir Agha-Schantl

Schantl ITH Immobilientreuhand GmbH

T 0043 664 3070009

H 0043 660 4701793