106m² unrenovierte Altbaufläche! Florianigasse - Bennoplatz

Wohnung , 1080 Wien


Beschreibung der Immobilie

106m² unrenovierte Altbaufläche! Florianigasse - Bennoplatz

Quick facts: Bennoplatz I ca. 106 qm I Sanierungsbedürftig



Willkommen in Ihrem neuen Zuhause beim Bennoplatz! 

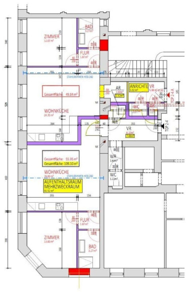
Zum Verkauf gelangt eine ca. 106m² große unrenovierte Altbaufläche, welche 2 in 2 Wohnungen umgebaut werden kann. Hierzu gibt es bereits eine Entwurfsplanung und die ursprüngliche Bürofläche wurde zwischenzeitlich bereits zu Wohnzwecken umgewidmet. Die leicht über dem Erdgeschoss gelegene Fläche verfügt über hohe Räume sowie große Fensterflächen und garantieren eine gute Belichtung.



Lage und Umgebung
Die Josefstadt bietet eine perfekte Mischung aus historischem Flair und modernem Lebensstil. Die Nähe zur Innenstadt sowie zu zahlreichen kulturellen und sozialen Einrichtungen macht diese Lage besonders attraktiv. Genießen Sie Spaziergänge im nahegelegenen Schönbornpark oder besuchen Sie die vielen kleinen Boutiquen und Märkte in der Umgebung. Die Lage bietet ebenfalls eine hervorragende Anbindung durch nahegelegene U-Bahn-, Straßenbahn- und Buslinien. 



Ich freue mich auf Ihren Anruf

Paul Kleindl 0699 1188 7600 oder 01 526 26 36








Wir weisen darauf hin, dass zwischen dem Vermittler und dem zu vermittelnden Dritten ein familiäres oder wirtschaftliches Naheverhältnis besteht.


Der Vermittler ist als Doppelmakler tätig.

Eckdaten Objektnr. 1760/873

Art: Wohnung
Land: Österreich
Baujahr: 1900
Zustand: Sanierungsbeduerftig
Alter: Altbau
Kaufpreis: 500.000,00
Provision: 3% des Kaufpreises zzgl. 20% USt.
Wohnfläche: 106,00 m²
Nutzfläche: 106,00 m²
Zimmer: 4
WC: 1
Heizwärmebedarf:  D  125,70 kWh/m²a
fGEE:  C  1,44
Immobilie merken Exposé

Ausstattung

Gas, Etagenheizung


Immobilie anfragen


Ihre persönliche Beratung

Lind Immobilien

Paul Kleindl

Lind Immobilien

T +43 1 526 26 36 14

H +43 699 1188 7600