Generalsanierte 3-Zimmer-Wohnung in 1090 Wien – ideal für Ärzt:innen, Studierende oder WGs!

Wohnung - Etage, 1090 Wien,Alsergrund


Beschreibung der Immobilie

Generalsanierte 3-Zimmer-Wohnung in 1090 Wien – ideal für Ärzt:innen, Studierende oder WGs!

Diese außergewöhnlich hochwertig sanierte 3-Zimmer-Altbauwohnung befindet sich in einer der gefragtesten Lagen des 9. Bezirks – zentral gelegen zwischen Volksoper und AKH. Die Wohnung ist ideal geeignet für eine Wohngemeinschaft, Ärzte, Studierende oder Universitätsangehörige, die die unmittelbare Nähe zum AKH, zur FH Wien der WKW oder zur U6 Station schätzen.



Mit einer Wohnfläche von rund 89 m² liegt die Wohnung im 2. Stock eines klassischen Wiener Altbauhauses und verbindet historischen Charme mit modernstem Wohnkomfort. Die umfassende, hochwertige Sanierung Ende 2025 / Anfang 2026 verleiht dem Objekt ein exklusives Wohngefühl: Ein edler Vollholz-Fischgrätparkett, ein modern gestaltetes Badezimmer sowie stilvolle Materialien ziehen sich durch die gesamte Wohnung.



Ein Zuhause für alle, die urbanes Leben, Qualität und eine erstklassige Lage miteinander verbinden möchten.



 



Sanierung & Ausstattung:




  • 2026 frisch und umfassend generalsaniert – die Wohnung präsentiert sich in neuwertigem Zustand



  • Modernes, hochwertiges Badezimmer mit bodenebener Dusche und zeitlosem Design



  • Separates WC ebenfalls neu errichtet und stilvoll ausgeführt



  • Erneuerte Küchenanschlüsse – optimale Grundlage für individuelle Küchengestaltung



  • Edler Vollholz-Parkettboden – hochwertig, langlebig und wohnlich



  • Neue, elegante Flügeltüren – klassischer Altbaucharme kombiniert mit moderner Qualität



  • Komplett erneuerte Heizungsverrohrung – effizient und zukunftssicher



  • Neue Stromleitungen in der gesamten Wohnung – technisch auf dem neuesten Stand



  • Frisch ausgemalte Wände – helle, gepflegte Optik für sofortigen Einzug




 



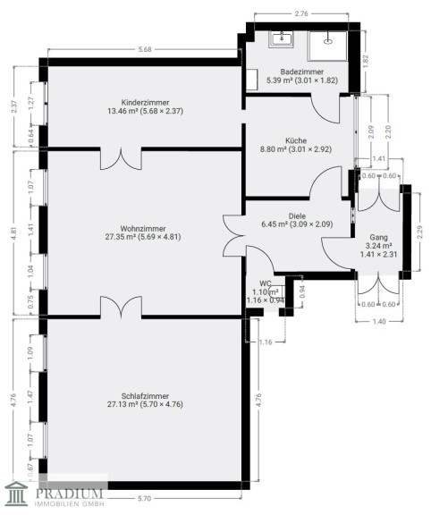
Raumaufteilung & Wohngefühl:



Die Wohnung ist über einen separaten Eingangsbereich erreichbar, der sich lediglich zwei Wohneinheiten teilt und dadurch ein besonders ruhiges und privates Wohngefühl vermittelt. Von dort gelangt man in die Wohnung selbst, wo ein großzügiger, einladender Vorraum den ersten Eindruck bestimmt.



Vom Vorraum aus erschließt sich der optimal angeordnete Küchenbereich, der funktional und harmonisch in das Wohnkonzept integriert ist. Direkt anschließend befindet sich das hochwertig sanierte Badezimmer, modern gestaltet und mit exklusiven Materialien ausgestattet. Ein separates WC ist ebenfalls bequem vom Vorraum aus zugänglich.



Der anschließende Wohnbereich bildet das Herzstück der Wohnung und überzeugt durch seine großzügige Gestaltung. Dieser ist in zwei große Zimmer sowie ein weiteres, kleineres Zimmer gegliedert, die durch neu eingebaute, äußerst hochwertige Flügeltüren voneinander getrennt sind. Dadurch entsteht ein flexibles Raumkonzept – ideal sowohl für gemeinsames Wohnen als auch für Rückzugsmöglichkeiten.



Kurz gesagt: Diese Wohnung bietet ein rundum stimmiges Gesamtpaket für Menschen, die Wert auf stilvolles Wohnen, hochwertige Ausstattung und eine durchdachte Raumaufteilung legen.



 



Lage:



Die Wohnung befindet sich in einer der begehrtesten Wohnlagen des 9. Wiener Gemeindebezirks, eingebettet zwischen der Volksoper und dem AKH Wien. Diese Lage überzeugt durch ihre perfekte Kombination aus urbanem Leben, exzellenter Infrastruktur und hervorragender Erreichbarkeit.



Die U6-Station Alser Straße ist in wenigen Gehminuten erreichbar und bietet eine schnelle Verbindung in alle Teile der Stadt. Ergänzt wird das öffentliche Verkehrsangebot durch mehrere Straßenbahnlinien, die eine komfortable und flexible Mobilität gewährleisten.



Die Nahversorgung ist ausgezeichnet: Zahlreiche Apotheken, Supermärkte, Bäckereien, Cafés sowie vielfältige Geschäfte des täglichen Bedarfs befinden sich in unmittelbarer Umgebung. Auch kulinarisch lässt die Gegend mit Restaurants und Lokalen keine Wünsche offen.



Besonders attraktiv ist die Lage für Studierende und Akademiker: Die FH Wien der WKW sowie weitere universitäre Einrichtungen liegen nur wenige Minuten entfernt und sind bequem zu Fuß erreichbar.



Diese Wohnlage bietet somit ideale Voraussetzungen für Wohngemeinschaften, medizinisches Fachpersonal, Studierende oder alle, die das urbane Wiener Leben mit bester Infrastruktur schätzen.



 



Rechtliches:



!Achtung: Einige der Bilder wurden zur Veranschaulichung mithilfe einer KI erstellt!



Hinweis: Die im Plan dargestellten Maße können von den tatsächlichen Gegebenheiten abweichen. Für die Richtigkeit und Vollständigkeit der Angaben wird keine Gewähr übernommen.



Bitte beachten Sie, dass wir aufgrund der gesetzlichen Nachweispflicht gegenüber dem Eigentümer Anfragen nur mit vollständigen Angaben (Name, Adresse, Telefon und Mail Adresse) bearbeiten können. Wir sind als Doppelmakler tätig! Hinweis zu Widerrufsrecht, Rücktrittsrecht bei Fern- und Auswärtsgeschäften: Gem. §11 FAGG (Fern- und Auswärtsgeschäftegesetz) kann der Interessent innerhalb von 14 Tagen vom Vertrag zurücktreten. Wünscht der Interessent mit der Kontaktaufnahme ein vorzeitiges Tätigwerden (Namhaftmachung und Adresse der Immobilie) des Immobilienbüros PRADIUM Immobilien innerhalb der offenen Rücktrittsfrist, nimmt er damit zur Kenntnis, das Rücktrittsrecht vom Maklervertrag gem. §11 FAGG zu verlieren. Grundsätzlich sei erwähnt, dass die Maklerprovision nur bei Zustandekommen eines Willensübereinkommens zwischen Verkäufer und Käufer (Kaufvertrag) gem. Makler Gesetz verrechnet wird. Bloße Besichtigungen sind absolut kostenlos.

Noch nichts gefunden? Wir informieren Sie über geeignete Immobilienangebote noch vor allen anderen.
Legen Sie jetzt Ihren individuellen Suchagenten unter folgendem Link an. Wir schicken Ihnen passende Immobilien exklusiv vorab zu.

Suchagent anlegen - https://pradium-immobilien.service.immo/registrieren/de


Wir weisen darauf hin, dass zwischen dem Vermittler und dem zu vermittelnden Dritten ein familiäres oder wirtschaftliches Naheverhältnis besteht.


Der Vermittler ist als Doppelmakler tätig.

Infrastruktur / Entfernungen

Gesundheit
Arzt <500m
Apotheke <500m
Klinik <500m
Krankenhaus <500m

Kinder & Schulen
Schule <500m
Kindergarten <500m
Universität <500m
Höhere Schule <500m

Nahversorgung
Supermarkt <500m
Bäckerei <500m
Einkaufszentrum <1.500m

Sonstige
Geldautomat <500m
Bank <500m
Post <500m
Polizei <1.000m

Verkehr
Bus <500m
U-Bahn <500m
Straßenbahn <500m
Bahnhof <500m
Autobahnanschluss <2.500m

Angaben Entfernung Luftlinie / Quelle: OpenStreetMap

Eckdaten Objektnr. 8230/176

Art: Wohnung - Etage
Land: Österreich
Baujahr: 1897
Zustand: Voll_saniert
Alter: Altbau
Kaufpreis: 529.000,00
Provision: 3% des Kaufpreises zzgl. 20% USt.
Betriebskosten: 208,00 €
MwSt Gesamt: 20,80 €
Wohnfläche: 88,89 m²
Zimmer: 3
Bäder: 1
WC: 1
Keller: 4,87 m²
Heizwärmebedarf:  D  100,70 kWh/m²a
fGEE:  D  1,79
Immobilie merken Exposé

Ausstattung

Fliesen, Parkett, Gas, Etagenheizung, Dusche


Immobilie anfragen


Ihre persönliche Beratung

PRADIUM Immobilien GmbH & Co KG

Liam Lewis-Weber

PRADIUM Immobilien GmbH & Co KG

T +436648662666

H +436648662666