Moderne 2 Zi -Wohnung mit Balkon - nahe Milleniumcity (provisionsfrei!)

Wohnung , 1200 Wien , Dresdner Straße


Öffentliche Verkehrsmittel: - Straßenbahnstation Höchstädtplatz (Linien 1, 2, 30, 31, 33) - wenige Gehminuten entfernt - Busstation Höchstädtplatz 37A - U6-Station Dresdner Straße - rasch erreichbar - Bahnhof Handelskai - Verbindung zur S-Bahn und Regionalzügen Einkaufen & Nahversorgung: - Billa im eigenen Haus - Millennium City mit zahlreichen Geschäften, Supermarkt, Gastronomie & Kino - Brigitta-Passage mit weiteren Einkaufsmöglichkeiten direkt in der Nähe

Beschreibung der Immobilie

Moderne 2 Zi -Wohnung mit Balkon - nahe Milleniumcity (provisionsfrei!)

Sehr geehrte Damen und Herren,



zur Vermietung gelangt eine 2-Zimmer-Wohnung in urbaner Lage. Die Einheit befindet sich im 1. Obergeschoss eines modernen Neubaus und bietet eine durchdachte Raumaufteilung sowie eine qualitative Ausstattung.



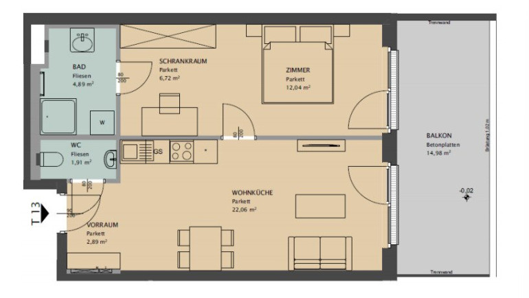
Die Wohnung verfügt über ca. 51m² Nutzfläche und einem BalkonDie Wohnräume sind mit Parkettboden, die Nassräume mit Fliesen ausgestattet. 3-fach-verglaste Fenster mit elektrischer Außenbeschattung sorgen für angenehmes Raumklima.



Ein Kellerabteil ist ebenfalls vorhanden. Bei Bedarf kann ein Tiefgaragenstellplatz im Haus um monatlich EUR 105,– angemietet werden.





Highlights



  • Balkon
  • moderne Einbauküche mit Elektrogeräten
  • elektrische Außenbeschattung
  • 3-fach-Verglasung
  • Parkett- und Fliesenböden
  • Kellerabteil
  • Tiefgarage im Haus (optional)




Kosteninformation



Monatliche Gesamtmiete (inkl. Betriebskosten und Heizkosten): EUR 1.299,00



Die abgebildeten Fotos dienen als Beispiel. Die Wohnung wird derzeit noch bewohnt, entspricht jedoch in Ausstattung und Stil den gezeigten Bildern.



Kontaktieren Sie uns gerne für nähere Informationen oder zur Vereinbarung eines Besichtigungstermins.




Ich freue mich auf Ihre Nachricht!




Wir weisen darauf hin, dass zwischen dem Vermittler und dem zu vermittelnden Dritten ein familiäres oder wirtschaftliches Naheverhältnis besteht.


Der Immobilienmakler erklärt, dass er – entgegen dem in der Immobilienwirtschaft üblichen Geschäftsgebrauch des Doppelmaklers – einseitig nur für den Vermieter tätig ist.

Infrastruktur / Entfernungen

Gesundheit
Arzt <250m
Apotheke <250m
Klinik <500m
Krankenhaus <750m

Kinder & Schulen
Schule <500m
Kindergarten <250m
Universität <250m
Höhere Schule <1.000m

Nahversorgung
Supermarkt <250m
Bäckerei <250m
Einkaufszentrum <250m

Sonstige
Geldautomat <500m
Bank <500m
Post <500m
Polizei <500m

Verkehr
Bus <250m
U-Bahn <500m
Straßenbahn <250m
Bahnhof <500m
Autobahnanschluss <1.000m

Angaben Entfernung Luftlinie / Quelle: OpenStreetMap

Eckdaten Objektnr. 271545229

Art: Wohnung
Land: Österreich
Zustand: Neuwertig
Alter: Neubau
Gesamtmiete: 1.235,96
Kaltmiete (netto): 991,76 €
Kaltmiete: 1.123,60 €
Provision: Gemäß Erstauftraggeberprinzip bezahlt der Abgeber die Provision.
Betriebskosten: 131,84 €
MwSt Gesamt: 112,36 €
Nutzfläche: 50,51 m²
Zimmer: 2
Bäder: 1
WC: 1
Balkone: 1
Heizwärmebedarf:  A  21,20 kWh/m²a
fGEE:  A  0,79
Immobilie merken Exposé

Ausstattung

Fliesen, Parkett, Fernwärme, Fußbodenheizung, Einbauküche, Wohnküche / offene Küche, Personenaufzug, Dusche, Garage, Tiefgarage


Immobilie anfragen


Ihre persönliche Beratung

Team Miete

Immobiliaris GmbH

T +43 664 1607111