renovierungsbedürftige Wohnung mitten im Altstadtzentrum von Klagenfurt zu kaufen

Wohnung , 9020 Klagenfurt am Wörthersee


Beschreibung der Immobilie

renovierungsbedürftige Wohnung mitten im Altstadtzentrum von Klagenfurt zu kaufen

Barrierefreie Eigentumswohnung direkt am Alten Platz in Klagenfurt zu kaufen!
 



Zum Verkauf gelangt ein schöne Wohnung direkt am Alten Platz, im historischen Zentrum von Klagenfurt Stadt.



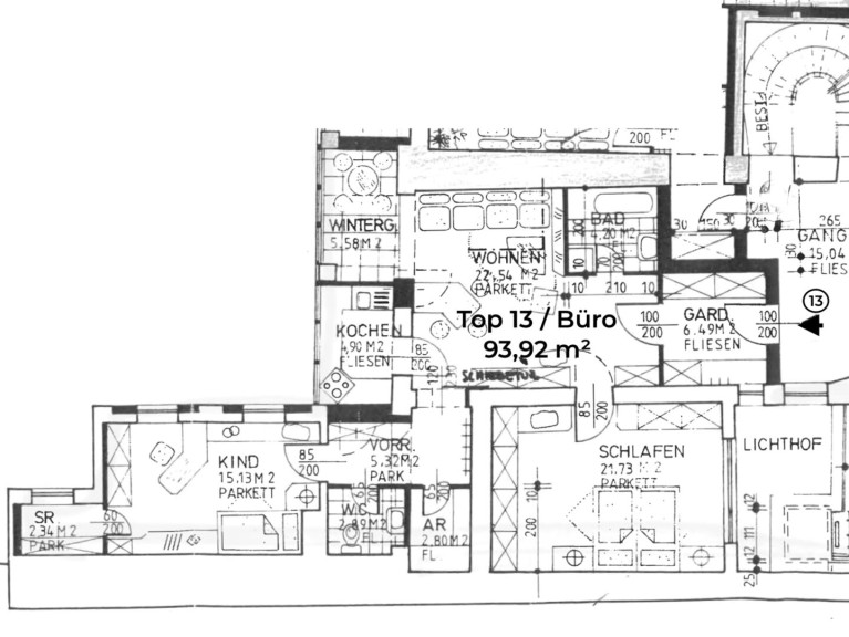
Es handelt sich hierbei um eine Einheit im 1. Dachgeschoss eines wunderschönen und gepflegten Gründerzeit-Zinshauses aus dem Jahr 1900, das im Zuge eines Um- und Zubaus 1995 um die Dachgeschossobjekte erweitert wurde. Die Gesamtnutzfläche dieses Verkaufsobjektes beträgt ca. 95m².



Sollten Sie Interesse an einer weiteren Fläche haben, könnte man auch das gegenüberliegende Büro TOP 14 dazu erwerben !



TOP 13: GNF 93,92 m² 



Diese als Wohnung gewidmete Fläche wurde von Beginn an als Büro genutzt und weißt weder Küche noch Badezimmer auf. WC ist natürlich vorhanden und auch die Küchen- und Badezimmeranschlüsse sind jederzeit möglich. Der Umbau in eine Wohnung ist grundsätzlich möglich. Sie können sich damit mitten in der Klagenfurter Innenstadt ein wunderschönes zu Hause oder ein in bester Lage gelegenes Feriendomizil schaffen.  



 



mögliches Anlageobjekt gegenüber zu erwerben Büro TOP 14: GNF 99,67 m² - aktuelle monatliche Nettomiete € 1.186,04 





Fakten & Daten



  • Historisches Gründerzeithaus aus dem Jahre 1900
  • Frequentierte Toplage in Fußgängerzone
  • Personenaufzug
  • Barrierefreiheit
  • Stabile, langfristige Mieterträge
  • Unbefristet vermietet


Lage und Infrastruktur



Klagenfurt bietet als charmante Landeshauptstadt, direkt am beliebten Wörthersee gelegen, eine Vielzahl von Möglichkeiten und Annehmlichkeiten für ein ausgeglichenes Stadtleben. Die Mikrolage der zum Verkauf stehenden Liegenschaft, inmitten der Fußgängerzone am Alten Platz, ist äußerst attraktiv und bietet eine gelungene Kombination aus urbanem Leben, ausgezeichneten Einkaufsmöglichkeiten sowie einem regen Geschäftsleben. Restaurants, Cafés sowie zahlreiche weitere infrastrukturelle Einrichtungen sind schnell und einfach erreichbar, ebenso das beliebte Naherholungsgebiet am wunderschönen Wörthersee.

Die Infrastruktur ist unbestritten hervorragend - sämtliche Geschäfte und Einrichtungen des täglichen Bedarfs befinden sich fußläufig in unmittelbarer Nähe.



Verkehrsanbindung



Hervorragende Verkehrsanbindung - in wenigen Fahrminuten erreicht man Hauptbahnhof sowie Flughafen.

Perfekte Anbindung an das österreichische Autobahnnetz mittels A2-Südautobahn.





Möchten Sie sich gerne ein persönliches Bild machen? Ich freue mich auf eine Besichtigung mit Ihnen! 



Für weitere Informationen und Besichtigungstermine wenden Sie sich bitte an:



Mag. Ulrike Brunner



********************************************************************************************



 




Mag. Ulrike Brunner

Immobilienmaklerin




ULLI IMMO / Lebensräume die passen.



Alter Platz 25 | A-9020 Klagenfurt am Wörthersee



+43 (0) 463 203120 | +43 (0) 676 4680409



www.ulli-immo.at | office@ulli-immo.at








Sonstiges:



Wir ersuchen um Verständnis, dass wir aufgrund unserer Nachweispflicht gegenüber dem Eigentümer / der Eigentümerin nur Anfragen mit vollständigen Kontaktdaten (Name, Adresse, Telefonnummer, E-Mail) bearbeiten können.



Sämtliche Angaben zum beschriebenen Mietobjekt sind ohne Gewähr und basieren auf Informationen und Unterlagen, die vom Eigentümer der Liegenschaft bzw. Dritten zur Verfügung gestellt wurden. Für Vollständigkeit, Richtigkeit und Aktualität aller Angaben und Abmessungen wird keine Gewähr übernommen. Allfällige Änderungen, Irrtümer, Satz- und Druckfehler vorbehalten.



Provision:



Im Falle eines Vertragsabschlusses beträgt unser Honorar lt. Maklerverordnung für Immobilienmakler (IMV), BGBl. 297/1996 idgF BGBl. II Nr. 268/2010, sowie Maklergesetz, BGB. Nr. 262/1996 idF BGBl. I Nr. 58/2010, 3 % des Kaufpreises zzgl. 20 % USt.




Wir weisen darauf hin, dass zwischen dem Vermittler und dem zu vermittelnden Dritten ein familiäres oder wirtschaftliches Naheverhältnis besteht.


Der Vermittler ist als Doppelmakler tätig.

Infrastruktur / Entfernungen

Gesundheit
Arzt <500m
Apotheke <500m
Krankenhaus <1.000m
Klinik <1.000m

Kinder & Schulen
Schule <500m
Kindergarten <500m
Universität <1.000m
Höhere Schule <1.000m

Nahversorgung
Supermarkt <500m
Bäckerei <500m
Einkaufszentrum <500m

Sonstige
Bank <500m
Geldautomat <500m
Post <500m
Polizei <500m

Verkehr
Bus <500m
Autobahnanschluss <3.500m
Bahnhof <1.500m
Flughafen <3.500m

Angaben Entfernung Luftlinie / Quelle: OpenStreetMap

Eckdaten Objektnr. 1630/371

Art: Wohnung
Land: Österreich
Baujahr: 1900
Zustand: Teil_vollrenoviert
Möbliert: Teil
Alter: Altbau
Kaufpreis: 260.000,00
Provision: 3% des Kaufpreises zzgl. 20% USt.
Betriebskosten: 138,22 €
Heizkosten: 5,32 €
MwSt Gesamt: 34,00 €
Wohnfläche: 93,92 m²
Nutzfläche: 93,92 m²
Zimmer: 3,50
WC: 1
Heizwärmebedarf:  E  151,00 kWh/m²a
fGEE:  E  2,54
Immobilie merken Exposé

Ausstattung

Fernwärme, Personenaufzug


Immobilie anfragen


Ihre persönliche Beratung

Ulli IMMO - Eine Marke der Gerhard Hudej Unternehmensgruppe

Ulrike Brunner

Gerhard Hudej GmbH

T 0676/4680409